
Dom wolnostojący - Nowe Bielice, nowoczesny design
DOM NA SPRZEDAŻ Nowe Bielice, Nowe Bielice Las
Nowoczesny dom drewniany w stanie szkieletowym - Nowe Bielice- Przedmieścia Koszalina
Na sprzedaż wyjątkowy dom jednorodzinny zrealizowany w nowoczesnej technologii szkieletu drewnianego - co zapewnia energooszczędność, niesamowitą architekturą i dużą elastyczność w aranżacji wnętrz.
Stan deweloperski plus - parter w pełni wykończony!
Gotowe tynki wewnętrzne
Podłogi wykończone
Łazienka w pełni urządzona
Piętro domu: tynki, na podłogach panele
działka zagospodarowana- zasiana piękna, gęsta trawa, która tworzy zieloną, przyjemną przestrzeń wokół domuLokalizacja: Nowe Bielice - Przedmieścia Koszalina
Nieruchomość położona jest w Nowych Bielicach na kameralnym osiedlu domów jednorodzinnych, tuż pod Koszalinem. Dojazd drogą publiczną utwardzoną.
W pobliżu sklep, szkoła podstawowa, przedszkole, tereny zielone. Szybki dojazd do Koszalina- ok 5 min autem. Ogromnym atutem jest też bliskość drogi ekspresowej S, co zapewnia szybki i wygodny dojazd w każdym kierunku.
O domu:
Dom zaprojektowano z myślą o nowoczesnym stylu życia - zachwyca już z zewnątrz swoją futurystyczną bryłą i olbrzymimi przeszkleniami, które doskonale doświetlają wnętrze i nadają mu lekkości. To idealna propozycja dla osób ceniących design, przestrzeń i funkcjonalność.
Dom jest oferowany w stanie deweloperskim plus, co daje możliwość dowolnej, indywidualnej aranżacji wnętrz według własnego gustu.
Istnieje również możliwość wykończenia domu `pod klucz` przez firmę budowlaną - co pozwala przyszłemu właścicielowi uniknąć wielu formalności i zaoszczędzić czas.
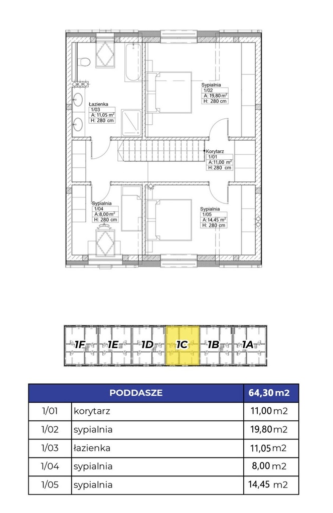
Rozkład pomieszczeń:
Parter:
Przestronny salon z aneksem kuchennym - z dużymi przeszkleniami wychodzącymi na ogród,
Kotłownia (pomieszczenie gospodarcze),
Łazienka z miejscem na prysznic lub wannę,
Dodatkowy pokój/sypialnia - idealna jako sypialnia rodziców lub gabinet do pracy zdalnej.Piętro:
Dwa duże, jasne pokoje - z miejscem na garderoby lub strefy relaksu,
Druga łazienka - komfort dla całej rodziny.
Dane techniczne:
technologia szkieletu drewnianego - energooszczędny i ciepły
dach z blachy na rąbek- trwałość i nowoczesny wygląd
nowoczesna elewacja
izolacja z wełny mineralnej
posadowienie na płycie żelbetowej w szalunku traconym
To dom, który łączy w sobie nowoczesność, komfort i możliwość personalizacji - idealny dla rodzin, par lub wszystkich, którzy chcą zamieszkać w wyjątkowym miejscu!
Zadzwoń i umów się na prezentację - zobacz, jak może wyglądać Twój nowy dom!
699 000 PLN
4
114,00 m2 Zobacz ofertę