SZCZECIN MIESZKANIE SPRZEDAŻ za cenę 608 828 zł - DobryAdres.pl - ogłoszenia nieruchomości Szczecin. Sprzedaż mieszkań, domów, działek i lokali użytkowych.

‹ Wróć do listy ofert

Warszewo, 60m2 z ogródkiem przy stawie

Mieszkanie na sprzedaż - Szczecin, Warszewo

oferta była przeglądana 138 razy

608 828 PLN notatnik

cena za m2 10 100 PLN

  • ZDJĘCIA
Warszewo, 60m2 z ogródkiem przy stawie (1)Warszewo, 60m2 z ogródkiem przy stawie (2)Warszewo, 60m2 z ogródkiem przy stawie (3)Warszewo, 60m2 z ogródkiem przy stawie (4)Warszewo, 60m2 z ogródkiem przy stawie (5)Warszewo, 60m2 z ogródkiem przy stawie (6)Warszewo, 60m2 z ogródkiem przy stawie (7)
Iwona Wąs
(Diversity Nieruchomości)
nr licencji: 26660

tel.: 537400092
email: [email protected]
informacje ogólne
Symbol
DIV20552
Rodzaj rynku
PIERWOTNY
Liczba pokoi
3
Powierzchnia całkowita
60, 28 m²
Parter
Ilość pięter
2
Standard
DO WYKOŃCZENIA
Ogrzewanie
C.O. Z SIECI MIEJSKIEJ
Rodzaj budynku
NISKI BLOK
Rok budowy
2024
Materiał ścian
MIESZANY
Ogródek
Garaż
Cena za m2
10 100, 00 PLN
Cena cena w innych walutach
608 828, 00 PLN
wyposażenie
Internet
Telewizja kablowa
informacje dodatkowe
Forma własności
WŁASNOŚĆ
Liczba WC
1
Typ kuchni
OTWARTA
Domofon
Rodzaj okien
PCV
Źródło c.w.
SIEĆ MIEJSKA
Czynsz administracyjny
250, 00 PLN
Opis oferty
Na sprzedaż mieszkanie z dużym (124,10 m2) ogródkiem i widokiem na staw.
Termin zakończenia inwestycji: Czerwiec 2024r.

Nieruchomość położona w Szczecinie, dzielnica Warszewo. Lokalizacja gwarantuje dogodną komunikację z centrum miasta. W bezpośrednim sąsiedztwie są przepiękne tereny leśne Puszczy Wkrzańskiej. Osiedle charakteryzują kameralne, oddalone od siebie budynki wielorodzinne, otoczone zielenią przydomowych ogródków. Malowniczego charakteru dodaje znajdujący się na terenie osiedla prywatny staw.

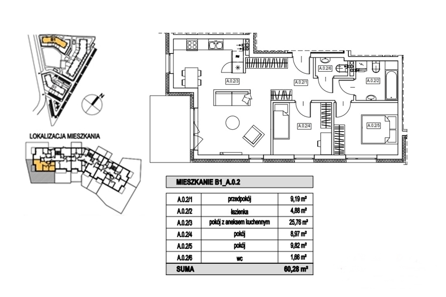
Mieszkanie 3 pokojowe o powierzchni 60,28 m2 mieści się na parterze niskiego, dwupiętrowego bloku z ekspozycją południowy wschód, oraz południowy zachód.
Do mieszkania przynależy ogródek 124,10 m2.

Spis pomieszczeń:
1. Przedpokój 9,19 m2
2. Łazienka 4,88 m2
3. Salon + aneks kuchenny 25,76 m2
4. Sypialnia 9,82 m2
5. Sypialnia 8,97 m2
6. WC 1,66 m2

Drzwi wejściowe antywłamaniowe. Wejście na klatkę schodową zabezpieczone wideofonem.
Wszystkie instalacje doprowadzone.
Ogrzewanie i ciepła woda z sieci miejskiej.

Istnieje możliwość zakupienia komórki lokatorskiej o powierzchni od 2,5m2 do 5,5m2 w cenie 5500 PLN za m2.
Na terenie osiedla znajdują się ogólnodostępne (bezpłatne) miejsca parkingowe.

Podana cena jest ceną brutto. Przy transakcji brak opłaty 2% PCC.

Polecam i zapraszam po więcej informacji oraz na prezentację nieruchomości.
Biuro Nieruchomości oferuje kompleksową obsługę transakcji, a także pomoc w uzyskaniu najkorzystniejszego kredytu.




Oferta wysłana z programu dla biur nieruchomości ASARI CRM (asaricrm.com)

Iwona Wąs
(Diversity Nieruchomości)
nr licencji: 26660

537400 (pokaż)
[email protected]

telefon

email

nie wypełniaj

zapytanie

Podobne oferty

notatnik
SARBINOWO
613 205 PLN 42 m2
Sarbinowo apartamenty winda balkon taras, m.post
MIESZKANIE NA SPRZEDAŻ SARBINOWO,
Nowe miejsce na mapie Sarbinowa, każdy kto tu zawita zakocha się w tym miejscu na długie lata! Na sprzedaż prestiżowe apartamenty blisko morza zapewniające bezpośredni kontakt z otaczającą naturą jak również komfort zamieszkania dzięki przemyślanym rozwiązaniom i jakości użytych materiałów. Kolorystyka oraz wykończenia części wspólnych będą nawiązywać do odcieni morza, plaży oraz roślinności nadmorskiej. Każdy z klientów znajdzie apartament szyty na jego miarę. W naszej inwestycji znajdziesz zarówno mały apartament jak również apartamenty dla klientów poszukujących większej życiowej przestrzeni. I Etap inwestycji obejmuje blisko 100 kameralnych apartamentów od 1 do 3 pokoi (od 26 do 60 m2) w trzech budynkach wielomieszkaniowych, oddalonych 3 minuty spacerem od morza i pięknych szerokich piaszczystych plaż. Istnieje możliwość powiększenia przestrzeni i połączenia kilku lokali. Część lokali mających status lokali mieszkalnych! Każde ze sprzedawanych apartamentów ma balkon/taras oraz przestronne okna dzięki którym można korzystać z naturalnego światła jak również podziwiać zieloną przestrzeń. Garaż z miejscami postojowymi zlokalizowany pod budynkiem do którego zjeżdżamy windą (72 miejsca), komórki lokatorskie (54 komórki) a mieszkania na parterze dodatkowo ogródki przydomowe. Teren osiedla zamknięty. Apartamenty sprzedawane w standardzie deweloperskim - istnieje możliwość wykończenia apartamentów "pod klucz". Ogrzewanie całoroczne - podłogowe (istnieje też możliwość montażu klimatyzacji). Prezentowana oferta dotyczy apartamentu, o powierzchni 42,15 m2, który składa się z: - salonu z aneksem kuchennym o pow. ok 21 m2 z wyjściem na taras 6,5 m2, - sypialnia 11,66 m2, - łazienki o pow. 4,74 m2, - komunikacja o pow. 4,4 m2. Cena apartamentu wynosi: 613 205 zł netto/754 242 zł brutto (23 % VAT). Inwestycja gotowa do zakupu! Istnieje możliwość zakupu apartamentu wraz z miejscem postojowym w garażu podziemnym oraz komórki lokatorskiej (dodatkowo płatne). Uwolnij się od zatłoczonego miasta i zadbaj o Swój spokój! Sarbinowo to miejscowość z przepięknymi, piaszczystymi i szerokimi plażami oraz nowoczesną promenadą. Idealna miejscowość do zamieszkania, relaks i wypoczynek nad polskim morzem. KUPUJ BEZ DODATKOWYCH OPŁAT - 0% PROWIZJI ! Serdecznie polecam i zapraszam na prezentacje! KUPUJEMY MIESZKANIA Z OBCIĄŻENIAMI I DŁUGAMI ZA GOTÓWKĘ ZADZWOŃ 91 8171717 Nasi Eksperci bezpłatnie pomagają w uzyskaniu kredytu. Powyższe ogłoszenie ma wyłącznie charakter informacyjny. Nie stanowi ono oferty w myśl art. 66 i n. ustawy z dnia 23.04.1964r. Kodeks cywilny (Dz.U. 1964r. Nr 16, poz. 93, ze zm.). Oferta wysłana z programu dla biur nieruchomości ASARI CRM (asaricrm.com)
613 205 PLN
2 42,15 m2 Parter/3 Zobacz ofertę
notatnik
ŚWINOUJŚCIE
615 967 PLN 24 m2
Umeblowany apartament nad morzem blisko plaży
MIESZKANIE NA SPRZEDAŻ ŚWINOUJŚCIE,
Na sprzedaż 1-pokojowy apartament o powierzchni 24,44 m2 zlokalizowany w Świnoujściu, tuż przy głównej promenadzie. Bardzo atrakcyjna lokalizacja, zaledwie 100 metrów od szerokiej piaszczystej plaży. O NIERUCHOMOŚCI: Przedmiotem sprzedaży jest apartament o powierzchni 24,44 m2 usytuowany na II piętrze. Na całkowitą powierzchnię składają się: - pokój z aneksem kuchennym, - łazienka. Oferowany lokal sprzedawany jest w stanie wykończonym pod klucz. Standard wykończenia i wyposażenia apartamentu: - Pokój: posadzka - drewniana, ściany - malowane i częściowo tapetowane, sufity - malowane, grzejniki - płytowe, klimatyzator. - Aneks kuchenny: posadzka - drewniana, ściany - glazura, zabudowa kuchenna, blat granitowy, wyposażenie: lodówka podblatowa, zlewozmywak, bateria kuchenna, elektryczna płyta grzewcza (2 pola), okap podszafkowy, zmywarka, kosz na śmieci wysuwany. - Przedpokój: posadzka - drewniana, ściany i sufit - malowane. - Łazienka: posadzka - gres, ściany - glazura, grzejniki - drabinkowe, wyposażenie: umywalka z szafką, bateria umywalkowa, lustro, stelaż podtynkowy z miską wc , deska wolnoopadająca, odpływ liniowy, szklana kabina prysznicowa (typu walk-in), zestaw prysznicowy z deszczownicą. - Wszystkie pomieszczenia - zabudowy meblowe, osprzęt elektryczny kompletny, gniazdka oraz oprawy oświetleniowe, drzwi wewnętrzne z ościeżnicą opaskową. O BUDYNKU: Kameralny pięciokondygnacyjny budynek obejmuje łącznie 37 apartamentów o powierzchni od 21 do 46 m2 wykończonych w podwyższonym standardzie pod klucz. Komunikację zapewnia nowoczesna cichobieżna winda. Dodatkowym atutem obiektu jest strefa spa z sauną oraz siłownia dedykowana wyłącznie dla mieszkańców. Obiekt idealnie komponuje się z nadmorskim otoczeniem, łącząc tradycję z nowoczesnością. LOKALIZACJA: Świnoujście to jedno z najatrakcyjniejszych miast polskiego wybrzeża i z racji swojego położenia posiada bardzo wysoki potencjał rozwojowy dla działalności rekreacyjno-turystyczno-usługowej. Budynek w którym znajduje się przedmiotowy lokal, usytuowany jest w dzielnicy nadmorskiej, tuż przy głównej promenadzie. Teren atrakcyjny ze względu na prestiżową lokalizację oraz bliskość morza - do plaży około 100 m. Położenie w nadmorskiej dzielnicy tworzy wyjątkowe sąsiedztwo: najszerszej polskiej plaży, historycznego Parku Zdrojowego oraz promenady, przy której znajdują się liczne kawiarnie i restauracje. Podana cena ofertowa jest ceną netto (należy doliczyć 23 % Vat) Cena brutto: 721 468,80 zł W ofercie posiadam również inne oferty z tej inwestycji. Zapraszam do kontaktu! Tworzymy Twój Świat Nieruchomości - bezpiecznie i skutecznie.
615 967 PLN
1 24,44 m2 2/5 Zobacz ofertę