SZCZECIN DOM SPRZEDAŻ za cenę 830 000 zł - DobryAdres.pl - ogłoszenia nieruchomości Szczecin. Sprzedaż mieszkań, domów, działek i lokali użytkowych.

‹ Wróć do listy ofert

Nowy dom bliźniak Osów 4 pokojowy

Dom na sprzedaż - Szczecin, Osów

oferta była przeglądana 8 razy

830 000 PLN notatnik

cena za m2 10 236 PLN

  • ZDJĘCIA
Nowy dom bliźniak Osów 4 pokojowy (1)Nowy dom bliźniak Osów 4 pokojowy (2)Nowy dom bliźniak Osów 4 pokojowy (3)Nowy dom bliźniak Osów 4 pokojowy (4)Nowy dom bliźniak Osów 4 pokojowy (5)Nowy dom bliźniak Osów 4 pokojowy (6)
Adriana Karnicka
(Elite Nieruchomości)
nr licencji: 27239

tel.: +48 505 234 995
email: [email protected]
informacje ogólne
Symbol
ELT34383
Rodzaj rynku
PIERWOTNY
Rodzaj domu
BLIŹNIACZY
Liczba pokoi
4
Powierzchnia całkowita
81, 09 m²
Powierzchnia użytkowa
81, 09 m²
Powierzchnia działki
110, 00 m²
Rok budowy
2026
Ilość pięter
1
Standard
DO WYKOŃCZENIA
Materiał ścian
SILIKAT
Rodzaj okien
PCV
Cena za m2
10 235, 54 PLN
Cena cena w innych walutach
830 000, 00 PLN
informacje dodatkowe
Typ kuchni
ANEKS KUCHENNY
Liczba łazienek
1
Liczba WC
1
Droga dojazdowa
UTWARDZONA
Źródło c.w.
POMPA CIEPŁA
Ogrzewanie
POMPA CIEPŁA
Garaż
instalacje
Energia elektryczna
Podłączony wodociąg
Podłączona kanalizacja
Opis oferty
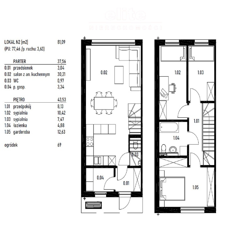
Na sprzedaż nowoczesny bliźniak w stanie deweloperskim, położony na kameralnym i spokojnym osiedlu, w otoczeniu ciszy i zieleni.

Dom o funkcjonalnym układzie 4 pokoi, zapewnia wygodę codziennego życia.

Na parterze znajduje się przedsionek (3,04m2), pomieszczenie gospodarcze (3,34m2), oddzielne WC (0,97m2), oraz przestronna strefa dzienna, na którą składa się salon z aneksem kuchennym (30,21m2) i wyjściem do ogródka (63m2).

Na piętrze natomiast mamy duży przedpokój (8,13m2), trzy sypialnie o wymiarach - 10,42m2, 7,47m2 i 12,63m3, oraz łazienkę (4,88m2).
Dodatkowym atutem jest spora powierzchnia strychowa, idealna do przechowywania.

Nieruchomość została wyposażona w nowoczesne i energooszczędne rozwiązania:
pompę ciepła, rekuperację, oraz ogrzewanie podłogowe w każdym pomieszczeniu.
Bezpieczeństwo zapewniają drzwi antywłamaniowe, a możliwość podłączenia światłowodu, gwarantuje szybki internet do pracy i rozrywki.

Przed budynkiem znajdują się dwa prywatne miejsca postojowe.

To idealna propozycja dla osób ceniących nowoczesny design, komfort oraz spokojne otoczenie z szybkim dostępem do infrastruktury miejskiej.
W ofercie posiadamy jeszcze inne - podobne lokale.



KUPUJEMY MIESZKANIA Z OBCIĄŻENIAMI I DŁUGAMI ZA GOTÓWKĘ ZADZWOŃ 91 8171717
Nasi Eksperci bezpłatnie pomagają w uzyskaniu kredytu.

Powyższe ogłoszenie ma wyłącznie charakter informacyjny. Nie stanowi ono oferty w myśl art. 66 i n. ustawy z dnia 23.04.1964r. Kodeks cywilny (Dz.U. 1964r. Nr 16, poz. 93, ze zm.).

Oferta wysłana z programu dla biur nieruchomości ASARI CRM (asaricrm.com)

Adriana Karnicka
(Elite Nieruchomości)
nr licencji: 27239

+48 505 234 (pokaż)
[email protected]

telefon

email

nie wypełniaj

zapytanie

Podobne oferty

notatnik
WARNICE
820 000 PLN 120 m2
Warnice - Nowa cena domu w zabudowie parterowej
DOM NA SPRZEDAŻ WARNICE,
Na sprzedaż dom w miejscowości Warnice na trasie Stargard - Pyrzyce, woj Zachodniopomorskie. Dom w zabudowie parterowej o powierzchni 120 m2 jest usytuowany na działce o powierzchni 749 m2 w cichej i spokojnej okolicy. Budynek pokryty dachówką jest wybudowany z bardzo dobrych materiałów. W budynku znajdują się: - duży salon z wyjściem na taras i ogród - trzy sypialnie - oddzielna i widna kuchnia - łazienka - toaleta - obszerny przedpokój - pomieszczenie gospodarcze/kotłownia Obok budynku jest usytuowany murowany garaż, zadaszony taras oraz część warzywna ogrodu. Budynek wyposażony jest w centralny odkurzacz, ekologiczną oczyszczalnię, elektryczny bojler oraz piec na ekogroszek. Nieruchomość jest w bardzo dobrym stanie i godna Państwa uwagi. Zapraszam osoby zainteresowane na prezentację. Działamy na terenie całego województwa zachodniopomorskiego. Posiadamy oddziały - w Szczecinie, Stargardzie i Szczecinku. Nasi Doradcy bezpłatnie dojeżdżają do Klientów. W naszym biurze możesz skorzystać z następujących usług: - pośrednictwo w kupnie i najmie nieruchomości, - pośrednictwo w sprzedaży i wynajmie nieruchomości, - doradztwo finansowe, - zarządzanie najmem, - skup nieruchomości - kompleksowa obsługa deweloperów. Jesteś zainteresowany naszą ofertą? Zadzwoń do nas już dziś lub odwiedź naszą stronę www.hestianieruchomosci.pl Treść niniejszego ogłoszenia nie stanowi oferty handlowej w rozumieniu Kodeksu Cywilnego. Treść ma charakter informacyjny i zalecamy ich osobistą weryfikację. Kontaktując się z biurem Klient wyraża zgodę na przetwarzanie danych osobowych zgodnie z przepisami ustawy z dnia 29 sierpnia 1997 roku o ochronie danych osobowych / Dz.U.Nr. 133 poz. 883/. Klientowi przysługuje prawo do wglądu do swoich danych osobowych i ich aktualizacji. Oferta wysłana z programu dla biur nieruchomości ASARI CRM (asaricrm.com)
820 000 PLN
4 120,00 m2 Zobacz ofertę
notatnik
KOBYLANKA
840 000 PLN 109 m2
Nowoczesny bliźniak w Kobylance.
DOM NA SPRZEDAŻ KOBYLANKA,
Wyjątkowy Bliźniak w Kobylance - Twój Nowy Adres na Osiedlu Zielonym Z ogromną przyjemnością prezentuję Państwu ofertę sprzedaży nowoczesnego domu w zabudowie bliźniaczej, zlokalizowanego w malowniczej i doskonale skomunikowanej miejscowości Kobylanka (powiat stargardzki). To idealna propozycja dla osób szukających balansu między spokojem natury a szybkim dostępem do infrastruktury miejskiej. Kluczowe Informacje o Nieruchomości Nieruchomość sprzedawana jest w stanie deweloperskim, co daje nowym właścicielom pełną swobodę w aranżacji wnętrz według własnego gustu. * Lokalizacja: Kobylanka, Osiedle Zielone. * Powierzchnia użytkowa lokalu: ok. 108,7 m2. * Powierzchnia działki (całość): 1834 m2 (sprzedaż w formie własności z udziałem w działce). * Standard wykończenia: Budynek wzniesiony z solidnego materiału (Silka), z pełnym zakresem instalacji i ogrzewaniem. * Termin oddania: Pierwszy bliźniak będzie gotowy do przekazania do maja/czerwca 2026 roku. Funkcjonalny Rozkład Pomieszczeń Dom został zaprojektowany z myślą o maksymalnym komforcie mieszkańców. Przemyślany układ dzieli przestrzeń na strefę dzienną (parter) oraz prywatną (poddasze). Parter (Strefa Dzienna): * Przestronny salon (20,8 m2) z wyjściem na taras. * Funkcjonalna kuchnia połączona z korytarzem (14,6 m2). * Dodatkowy pokój/gabinet (9,7 m2) idealny do pracy zdalnej. * Toaleta, wiatrołap oraz praktyczne pomieszczenie gospodarcze. Poddasze (Strefa Sypialniana): * Trzy ustawne sypialnie: jedna o powierzchni 13,8 m2 oraz 10,2m oraz 11,2 m. * Duża, komfortowa łazienka (9,1 m2). * Komunikacja z miejscem na schody. Co Wyróżnia Tę Ofertę? Największym atutem nieruchomości jest kompleksowo zagospodarowany teren zewnętrzny. Deweloper zadbał o wysoką jakość materiałów kamiennych, z których wykonano: * Estetyczne podjazdy i ścieżki. * Solidne ogrodzenie posesji. * Wydzielone miejsce do grillowania oraz eleganckie krawężniki oddzielające zieleń. Lokalizacja i Otoczenie Kobylanka to miejsce, które łączy prestiż z wygodą codziennego życia. Dzięki strategicznemu położeniu zyskują Państwo: * 10 minut do Stargardu. * 15 minut do prawobrzeżnej części Szczecina. * 3 minuty do kluczowych punktów: Biedronka, Żabka, apteka, restauracje. * 5 minut do szkoły i placówki pocztowej. Warunki Finansowe * Cena: 840 000 zł. * Bonus: Dla pierwszego klienta przewidziany jest wysoki rabat oraz niespodzianka!. * Istnieje możliwość indywidualnego uzgodnienia sposobu rozliczania i harmonogramu wpłat. Zapraszam do kontaktu w celu umówienia się na prezentację tej wyjątkowej nieruchomości! Oferta wysłana z programu dla biur nieruchomości ASARI CRM (asaricrm.com)
840 000 PLN
5 108,70 m2 Zobacz ofertę
notatnik
SZCZECIN, OSÓW
830 000 PLN 81 m2
Na sprzedaż - bliźniak Osów - 4 pokoje
DOM NA SPRZEDAŻ SZCZECIN, OSÓW
Na sprzedaż nowoczesny bliźniak w stanie deweloperskim, położony na kameralnym i spokojnym osiedlu, w otoczeniu ciszy i zieleni. Dom o funkcjonalnym układzie 4 pokoi, zapewnia wygodę codziennego życia. Na parterze znajduje się przedsionek (3,04m2), pomieszczenie gospodarcze (3,34m2), oddzielne WC (0,97m2), oraz przestronna strefa dzienna, na którą składa się salon z aneksem kuchennym i wyjściem do ogródka. Na piętrze natomiast mamy duży przedpokój (8,13m2), trzy sypialnie o wymiarach - 10,42m2, 7,47m2 i 12,63m3, oraz łazienkę (4,88m2). Dodatkowym atutem jest spora powierzchnia strychowa, idealna do przechowywania. Ogród od południowego-zachodu to ogromny plus tego lokalu. Nieruchomość została wyposażona w nowoczesne i energooszczędne rozwiązania: pompę ciepła, rekuperację, oraz ogrzewanie podłogowe w każdym pomieszczeniu. Bezpieczeństwo zapewniają drzwi antywłamaniowe, a możliwość podłączenia światłowodu, gwarantuje szybki internet do pracy i rozrywki. Przed budynkiem znajdują się dwa prywatne miejsca postojowe. To idealna propozycja dla osób ceniących nowoczesny design, komfort oraz spokojne otoczenie z szybkim dostępem do infrastruktury miejskiej. W ofercie posiadamy jeszcze inne - podobne lokale. Przedstawiona oferta cenowa ma charakter informacyjny i nie jest ofertą handlową w rozumieniu artykułu 66 par. 1 Kodeksu Cywilnego. Oferta została sporządzona na podstawie oświadczenia oraz przedłożonych dokumentów przez Właściciela. Najlepsze oferty! Najlepsze ceny! Oferta wysłana z programu dla biur nieruchomości ASARI CRM (asaricrm.com)
830 000 PLN
4 81,09 m2 Zobacz ofertę