SZCZECIN DOM SPRZEDAŻ za cenę 830 000 zł - DobryAdres.pl - ogłoszenia nieruchomości Szczecin. Sprzedaż mieszkań, domów, działek i lokali użytkowych.

‹ Wróć do listy ofert

Na sprzedaż - bliźniak Osów - 4 pokoje

Dom na sprzedaż - Szczecin, Osów

oferta była przeglądana 23 razy

830 000 PLN notatnik

cena za m2 10 235 PLN

  • ZDJĘCIA
Na sprzedaż - bliźniak Osów - 4 pokoje (1)Na sprzedaż - bliźniak Osów - 4 pokoje (2)Na sprzedaż - bliźniak Osów - 4 pokoje (3)Na sprzedaż - bliźniak Osów - 4 pokoje (4)Na sprzedaż - bliźniak Osów - 4 pokoje (5)
Dorota Nyczka
(NYCZKA NIERUCHOMOŚCI Dorota Nyczka)

tel.: +48664928484
email: [email protected]
informacje ogólne
Symbol
NYC21432
Rodzaj rynku
PIERWOTNY
Rodzaj domu
BLIŹNIACZY
Liczba pokoi
4
Powierzchnia całkowita
81, 09 m²
Powierzchnia użytkowa
81, 09 m²
Powierzchnia działki
100, 00 m²
Rok budowy
2027
Ilość pięter
1
Standard
DO WYKOŃCZENIA
Materiał ścian
SILIKAT
Rodzaj okien
PCV
Cena za m2
10 235, 00 PLN
Cena cena w innych walutach
830 000, 00 PLN
wyposażenie
Umeblowanie
NIE
informacje dodatkowe
Typ kuchni
ANEKS KUCHENNY
Liczba łazienek
1
Liczba WC
1
Droga dojazdowa
UTWARDZONA
Źródło c.w.
POMPA CIEPŁA
Ogrzewanie
POMPA CIEPŁA
Garaż
instalacje
Energia elektryczna
Podłączony wodociąg
Podłączona kanalizacja
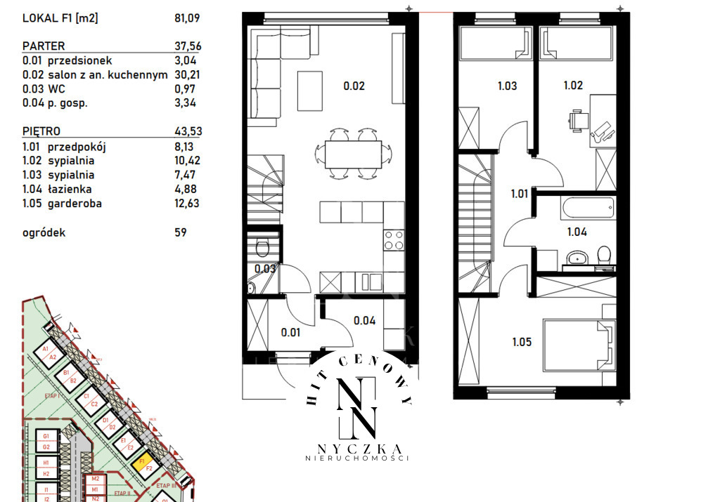
Opis oferty
Na sprzedaż nowoczesny bliźniak w stanie deweloperskim, położony na kameralnym i spokojnym osiedlu, w otoczeniu ciszy i zieleni.

Dom o funkcjonalnym układzie 4 pokoi, zapewnia wygodę codziennego życia.
Na parterze znajduje się przedsionek (3,04m2), pomieszczenie gospodarcze (3,34m2), oddzielne WC (0,97m2), oraz przestronna strefa dzienna, na którą składa się salon z aneksem kuchennym i wyjściem do ogródka. Na piętrze natomiast mamy duży przedpokój (8,13m2), trzy sypialnie o wymiarach - 10,42m2, 7,47m2 i 12,63m3, oraz łazienkę (4,88m2).
Dodatkowym atutem jest spora powierzchnia strychowa, idealna do przechowywania.
Ogród od południowego-zachodu to ogromny plus tego lokalu.

Nieruchomość została wyposażona w nowoczesne i energooszczędne rozwiązania:
pompę ciepła, rekuperację, oraz ogrzewanie podłogowe w każdym pomieszczeniu.
Bezpieczeństwo zapewniają drzwi antywłamaniowe, a możliwość podłączenia światłowodu, gwarantuje szybki internet do pracy i rozrywki.

Przed budynkiem znajdują się dwa prywatne miejsca postojowe.

To idealna propozycja dla osób ceniących nowoczesny design, komfort oraz spokojne otoczenie z szybkim dostępem do infrastruktury miejskiej.
W ofercie posiadamy jeszcze inne - podobne lokale.



Przedstawiona oferta cenowa ma charakter informacyjny i nie jest ofertą handlową w rozumieniu artykułu 66 par. 1 Kodeksu Cywilnego.
Oferta została sporządzona na podstawie oświadczenia oraz przedłożonych dokumentów przez Właściciela.
Najlepsze oferty!
Najlepsze ceny!

Oferta wysłana z programu dla biur nieruchomości ASARI CRM (asaricrm.com)

Dorota Nyczka
(NYCZKA NIERUCHOMOŚCI Dorota Nyczka)

+48664928 (pokaż)
[email protected]

telefon

email

nie wypełniaj

zapytanie

Podobne oferty

notatnik
Wąwelnica
835 000 PLN 125 m2
5 pokojowy bliźniak z garażem, trawa, ogrodzenie.
DOM NA SPRZEDAŻ Wąwelnica,
----Oferta na wyłączność---- Na sprzedaż komfortowy 5 pokojowy budynek mieszkalny jednorodzinnym w zabudowie bliźniaczej z garażem w bryle budynku, na działce o powierzchni 454 m2, zlokalizowany w atrakcyjnej części Wąwelnicy na miłym i kameralnym zamkniętym osiedlu domów w zabudowie bliźniaczej w sąsiedztwie terenów zielonych. Dom sprzedawany z w pełni zagospodarowanych i ogrodzonym terenem (tarasy, czarnoziem, trawa-siana). Droga dojazdowa prywatna, wyłożona kostką brukową. Cały teren ogrodzony, zamknięty (wjazd na teren przez szlaban) dzięki czemu mamy miłe, spokojne i kameralne osiedle złożone z 6 domów jednorodzinnych w zabudowie bliźniaczej. Droga dojazdowa prywatna, utwardzona, a dojazd i podjazdy będą wyłożone polbrukiem. Cały teren inwestycji będzie wyrównany i ogrodzony. Ogrody zagospodarowane (czarnoziem, trawa). Ceny budynków różnią się w zależności od metrażu działki: -Budynek 1 - działka o powierzchni 443 m2. - 835 000 zł. -Budynek 2 - działka o powierzchni 454 m2 - 870 000 zł. -Budynek 3 - działka o powierzchni 465 m2. - 875 000 zł. -Budynek 4 - działka o powierzchni 476 m2. - 881 000 zł. -Budynek 5 - działka o powierzchni 487 m2. - 887 000 zł. -Budynek 6 - działka o powierzchni 552 m2. - 928 000 zł. Układ pomieszczeń: Parter 59,95m2 (60,53m2) : -wiatrołap 4,26m2, -hall 5,22m2, -łazienka 2,21m2 (2,79m2), -salon + jadalnia 23,09, -kuchnia 6,77m2, -garaż 18,40m2. Poddasze 61,09m2 (64,71m2): -schody 4,46m2, -hol 6,04m2, -pokój 9,49m2 (10,40m2), -pokój 13,46m2 (14,36m2), -łazienka 6,39m2, -pokój 12,45m2 (13,35m2), -pokój 8,80m2 (9,71m2). Niskie koszty utrzymania. Opłaty za zużycie mediów. Do każdego budynku doprowadzenie zewnętrznych instalacji: woda, kanalizacja sanitarna, kanalizacja deszczowa ze szczelnym zbiornikiem retencyjnym, gaz, energia elektryczna. Informacje dodatkowe: - podwójna ściana między budynkami, - ogrzewanie podłogowe w całym domu (kocioł gazowy) wraz ze sterowaniem strefowym w każdym pokoju. - ściany nośne - pustak ceramiczny porotherm, bloczki silikatowe lub ytong bloczek komórkowy, - ściany działowe - bloczki silikatowe, - okna trzyszybowe, tarasowe przesuwne, drzwi zewnętrzne oraz brama garażowa firmy Krispol, - dachówka ceramiczna Creaton, - ocieplenie 20cm styropian, termoorganika lamda 0,33 grafit, - media: gaz miejski, kanalizacja miejska, woda miejska. Sprzedawane na podstawie umowy deweloperskiej, w stanie deweloperskim, bez podatku 2% PCC. Zapraszam na prezentację. Pośrednik odpowiedzialny zawodowo za wykonanie umowy pośrednictwa: Ewa Tobolska (licencja nr: ) -------------------------- POMAGAMY W UZYSKANIU KREDYTU NA ZAKUP NIERUCHOMOŚCI - POSIADAMY OFERTĘ KILKUNASTU BANKÓW W JEDNYM MIEJSCU. NASZ INDYWIDUALNY DORADCA W PROFESJONALNY SPOSÓB POMOŻE WYBRAĆ NAJLEPSZĄ OPCJĘ DLA CIEBIE *Powyższa oferta ma charakter jedynie informacyjny i została utworzona na podstawie oświadczeń właściciela nieruchomości, niniejsza oferta nie stanowi oferty handlowej w rozumieniu art. 66 §1 kodeksu cywilnego oraz innych właściwych przepisów prawnych. Oferta wysłana z systemu Galactica Virgo
835 000 PLN
5 125,24 m2 Zobacz ofertę
notatnik
Wolin, obrzeża
835 000 PLN 380 m2
Chcesz otworzyć pensjonat, restaurację, czy zamies
DOM NA SPRZEDAŻ Wolin, obrzeża
Dom w stanie surowym zamkniętym na dużej 3200m2 działce. Sześć pokoi, dwie łazienki, duży taras z możliwością rozbudowy. Instalacja elektryczna częściowo położona. Woda i prąd w budynku. Okna trzyszybowe antywłamaniowe. Ważny dziennik budowy. Możliwość uzyskania dopłat unijnych na zakończenie prac budowlanych w przypadku zmiany przeznaczenia nieruchomości na pensjonat lub restaurację ( gotowy projekt). nieruchomość na obrzeżach Wolina. Blisko Zalew Szczeciński i rzeka Dziwna. Zadzwoń, tel.: 530855099. "Opis nieruchomości zawarty w niniejszej ofercie został sporządzony na podstawie informacji przekazanych nam przez stronę sprzedającą. Zwracamy uwagę, że mogą one zawierać błędy lub nieścisłości. W przypadku zainteresowania ofertą zalecamy osobistą weryfikację tych informacji. Oferta ta nie stanowi oferty w rozumieniu przepisu art. 66 i nast. kodeksu cywilnego." ------------------------------------------ Mikulski Nieruchomości - licencjonowana sieć biur nieruchomości. Baza sprawdzonych nieruchomości. Nasza firma posiada 7 oddziałów. Pracujemy w systemach wymiany ofert z biurami nieruchomości na terenie całej Polski. Posiadamy polisę OC. Obsługujemy teren całego województwa zachodniopomorskiego. Nasz skład liczy blisko 40 osób. Dobierzemy dla Państwa najtańszy kredyt na zakup każdej nieruchomości. Nie musisz kupować z nami nieruchomości, by otrzymać świetny kredyt! W ofercie mamy ponad 20 banków! Zadzwoń po kredyt hipoteczny już dziś: +48 790 588 531 CENTRALA FIRMY: +48 530 855 003 [email protected] Nasze oddziały: Oddział GOLENIÓW ul. M. Konopnickiej 76 72-100 Goleniów Tel. +48 91 418 56 57 Oddział STARGARD ul. Mikołaja Reja 8/1 73-110 Stargard Tel. +48 91 577 07 57 Oddział NOWOGARD ul. Bankowa 3B/1 72-200 Nowogard Tel. +48 91 307 66 87 Oddział SZCZECIN ul. Łaziebna 1, U1/1 70-557 Szczecin Tel. +48 91 307 91 64 Oddział ŚWINOUJŚCIE ul. Gen. J. Bema 7/2 (I piętro) 72-600 Świnoujście Tel. +48 91 307 89 01 Oddział KOŁOBRZEG ul. Mariacka 38/2 78-100 Kołobrzeg Tel. +48 94 700 00 23 Zapraszamy do naszych oddziałów! www.mikulski-nieruchomosci.pl :: Oferta wysłana z programu mediaRent (media-rent.eu) ::
835 000 PLN
6 380,00 m2 Zobacz ofertę
notatnik
MASZEWO
830 000 PLN 190 m2
DOM NA SPRZEDAŻ MASZEWO,
Na sprzedaż dom po generalnym remoncie w centrum Maszewa - gotowy do wprowadzenia! Oferuję wyjątkowy dom poniemiecki położony w samym sercu Maszewa. Nieruchomość przeszła generalny remont w 2025 roku, dzięki czemu łączy w sobie klimat historycznej zabudowy z nowoczesnym standardem wykończenia. Dach został wymieniony w 2017 roku. Dom pod ochroną konserwatora zabytków. - Układ pomieszczeń Parter: przestronna kuchnia, łazienka, długi hol pełniący funkcję komunikacyjną oraz wypoczynkową, salon z wyjściem na piękny zadaszony taras. Piętro: 3 jasne pokoje, w tym jeden z garderobą. Poddasze/strych: możliwość adaptacji - dodatkowa przestrzeń na pokój, biuro lub pracownię. Dom jest częściowo podpiwniczony, co zapewnia dodatkowe miejsce na przechowywanie. - Ogrzewanie Na zewnątrz znajduje się praktyczna kotłownia przystosowana do ogrzewania węglem oraz drewnem. - Działka i teren Teren wokół domu jest estetycznie zagospodarowany. Do dyspozycji przyszłych właścicieli: zadaszony taras 35 m2 - idealny do relaksu przez cały rok, basen stelażowy z pompą ciepła - świetne rozwiązanie na letnie dni, wygodna przestrzeń ogrodowa dająca prywatność i komfort. - Wykończenie Dom urządzony w nowoczesnym stylu, dopracowany w detalach - nie wymaga nakładów finansowych. Meble do uzgodnienia. Już 18 lat Spełniamy Państwa Marzenia " Szulc Nieruchomości" Najlepsze Oferty Nieruchomości Kredytów Bezpłatnie pomożemy uzyskać Kredyt - Pożyczkę - Leasing Kupujemy nieruchomości za gotówkę Oferta wysłana z programu dla biur nieruchomości ASARI CRM (asaricrm.com)
830 000 PLN
5 190,00 m2 Zobacz ofertę