SZCZECIN DOM SPRZEDAŻ za cenę 850 000 zł - DobryAdres.pl - ogłoszenia nieruchomości Szczecin. Sprzedaż mieszkań, domów, działek i lokali użytkowych.

‹ Wróć do listy ofert

Na sprzedaż - bliźniak Warszewo/Osów - 4-5 pokoi

Dom na sprzedaż - Szczecin, Osów

oferta była przeglądana 29 razy

850 000 PLN notatnik

cena za m2 10 482 PLN

  • ZDJĘCIA
Na sprzedaż - bliźniak Warszewo/Osów - 4-5 pokoi (1)Na sprzedaż - bliźniak Warszewo/Osów - 4-5 pokoi (2)Na sprzedaż - bliźniak Warszewo/Osów - 4-5 pokoi (3)Na sprzedaż - bliźniak Warszewo/Osów - 4-5 pokoi (4)Na sprzedaż - bliźniak Warszewo/Osów - 4-5 pokoi (5)
Stella Stefanowicz
(NYCZKA NIERUCHOMOŚCI Dorota Nyczka)

tel.: +48 514 986 579
email: [email protected]
informacje ogólne
Symbol
NYC21431
Rodzaj rynku
PIERWOTNY
Rodzaj domu
BLIŹNIACZY
Liczba pokoi
4
Powierzchnia całkowita
81, 09 m²
Powierzchnia użytkowa
81, 09 m²
Powierzchnia działki
110, 00 m²
Rok budowy
2026
Ilość pięter
1
Standard
DO WYKOŃCZENIA
Materiał ścian
SILIKAT
Rodzaj okien
PCV
Cena za m2
10 482, 18 PLN
Cena cena w innych walutach
850 000, 00 PLN
wyposażenie
Umeblowanie
NIE
informacje dodatkowe
Typ kuchni
ANEKS KUCHENNY
Liczba łazienek
1
Liczba WC
1
Droga dojazdowa
UTWARDZONA
Źródło c.w.
POMPA CIEPŁA
Ogrzewanie
POMPA CIEPŁA
Garaż
instalacje
Energia elektryczna
Podłączony wodociąg
Podłączona kanalizacja
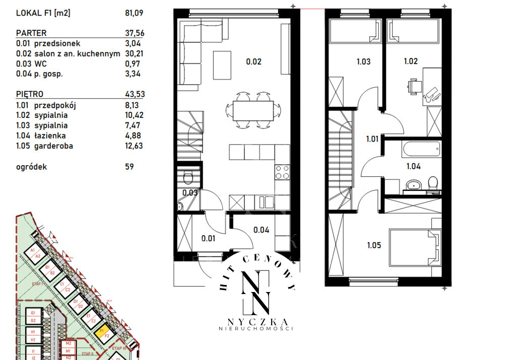
Opis oferty
Na sprzedaż nowoczesny bliźniak w stanie deweloperskim, położony na kameralnym i spokojnym osiedlu, w otoczeniu ciszy i zieleni.

Dom o funkcjonalnym układzie 4 pokoi, zapewnia wygodę codziennego życia.
Na parterze znajduje się przedsionek (3,04m2), pomieszczenie gospodarcze (3,34m2), oddzielne WC (0,97m2), oraz przestronna strefa dzienna, na którą składa się salon z aneksem kuchennym (30,21m2) i wyjściem do ogródka (59m2). Na piętrze natomiast mamy duży przedpokój (8,13m2), trzy sypialnie o wymiarach - 10,42m2, 7,47m2 i 12,63m3, oraz łazienkę (4,88m2).
Dodatkowym atutem jest spora powierzchnia strychowa, idealna do przechowywania.
Ogród od południowego-zachodu to ogromny plus tego lokalu.

Nieruchomość została wyposażona w nowoczesne i energooszczędne rozwiązania:
pompę ciepła, rekuperację, oraz ogrzewanie podłogowe w każdym pomieszczeniu.
Bezpieczeństwo zapewniają drzwi antywłamaniowe, a możliwość podłączenia światłowodu, gwarantuje szybki internet do pracy i rozrywki.

Przed budynkiem znajdują się dwa prywatne miejsca postojowe.

To idealna propozycja dla osób ceniących nowoczesny design, komfort oraz spokojne otoczenie z szybkim dostępem do infrastruktury miejskiej.
W ofercie posiadamy jeszcze inne - podobne lokale.



Przedstawiona oferta cenowa ma charakter informacyjny i nie jest ofertą handlową w rozumieniu artykułu 66 par. 1 Kodeksu Cywilnego.
Oferta została sporządzona na podstawie oświadczenia oraz przedłożonych dokumentów przez Właściciela.
Najlepsze oferty!
Najlepsze ceny!

Oferta wysłana z programu dla biur nieruchomości ASARI CRM (asaricrm.com)

Stella Stefanowicz
(NYCZKA NIERUCHOMOŚCI Dorota Nyczka)

+48 514 986 (pokaż)
[email protected]

telefon

email

nie wypełniaj

zapytanie

Podobne oferty

notatnik
DOŁUJE
850 000 PLN 101 m2
Bliźniak w Dołujach 101 m2 , działka 220 m2
DOM NA SPRZEDAŻ DOŁUJE,
Na sprzedaż bliźniak o pow. 101 m2 w Dołujach na działce o powierzchni ok. 220 m2 . Dom sprzedawany jako lokal mieszkalny w budynku jednorodzinnym. Inwestycja składa się z 2 budynków jednorodzinnych dwulokalowych. Na powierzchnię użytkową domu składają się : Parter : wiatrołap o pow. 4,19 m2 , łazienka 5,83 m2 oraz duży salon z aneksem kuchennym o pow.41,13 m2 z wyjściem na taras i ogród od strony północnej lub zachodniej Piętro : 3 sypialnie o pow. 9,83m2, 13,66 m2,11,41 m2 oraz łazienka o pow.5,0 m2 korytarz 10,00 m2 . Głównym atutem nieruchomości jest doskonała lokalizacja w cichej i spokojnej uliczce w Dołujach niedaleko lasu i terenów zielonych. Dojazd do nieruchomości drogą gminną utwardzoną, oświetlenie przy drodze. Standard wykończenia: - ławy żelbetowe monolityczne, - ściany fundamentowe betonowe, - strop żelbetowy monolityczny, - ściany zew. murowane z bloczków silikatowych , ocieplenie styropian - ściany wew. nośne murowane z bloczków silikatowych , -ścianki działowe murowane z pustaków -więźba dachowa prefabrykowana, dach wełna mineralna -kocioł gazowy z zasobnikiem na ciepłą wodę - instalacja pod alarm, TV, - internet, domofon, - okna 3 szybowe PCV o współczynniku 1,0 Wmk - rolety elektryczne tylko na parterze - blacho-dachówka , - ogród - teren wyrównany, - taras- wylewka betonowa, - zbiornik retencyjny na deszczówkę 10 m3, - kanalizacja - sieć kanalizacyjna, - od frontu utwardzony podjazd oraz chodnik - 2 miejsca postojowe, - ogrzewanie podłogowe we wszystkich pomieszczeniach - rekuperacja - teren ogrodzony z podjazdem - wykonana pełna instalacja elektryczna z łącznikami i gniazdkami - wszystkie ściany gładzone i pomalowane na kolor biały - trawnik - taras od strony ogrodu Wydanie budynku w stanie developerskim wrzesień / październik 2026 r Zapraszam zainteresowanych na prezentację . Oferta wysłana z programu dla biur nieruchomości ASARI CRM (asaricrm.com)
850 000 PLN
4 101,05 m2 Zobacz ofertę
notatnik
Trzcinna
849 000 PLN 185 m2
Trzcinna - duży dom w pięknej okolicy
DOM NA SPRZEDAŻ Trzcinna,
Oferujemy Państwu dom na sprzedaż. Nieruchomość położona w gminie Nowogródek Pomorski w pięknej wsi Trzcinna. W sąsiedztwie znajdują się: wolnostojące domy jednorodzinne. Powierzchnia nieruchomości wynosi około 185 m2. Dom parterowy z poddaszem użytkowym, częściowo podpiwniczony.  PARTER: Duży salon z jadalnią z wyjściem na taras, kuchnia z kącikiem śniadaniowym, przestronny hall, WC, łazienka. PODDASZE: cztery sypialnie. Półpiętro wyposażone w dużą łazienkę z WC.  PIWNICA: kotłownia,  pralnia, pomieszczenie gospodarcze z wyjściem na ogród.  Nieruchomość położona jest na działce o powierzchni 923 m2, bardzo ładnie zagospodarowana  i zadbana. Posiada liczne nasadzenia, krzewów i drzew ozdobnych.  Budynek wybudowany w roku 1992. Oferowana nieruchomość ogrzewana jest: piecem węglowym. Okna wychodzące na północ południe wschód zachód. Standard wykończenia: dobry. Rodzaj elewacji: tynk szlachetny. Rodzaj podłogi: deski, panele, kafle. Rodzaj okien: plastikowe. Więcej informacji pod nr 530 855 025.  "Opis nieruchomości zawarty w niniejszej ofercie został sporządzony na podstawie informacji przekazanych nam przez stronę sprzedającą. Zwracamy uwagę, że mogą one zawierać błędy lub nieścisłości. W przypadku zainteresowania ofertą zalecamy osobistą weryfikację tych informacji. Oferta ta nie stanowi oferty w rozumieniu przepisu art. 66 i nast. kodeksu cywilnego." ------------------------------------------ Mikulski Nieruchomości - licencjonowana sieć biur nieruchomości. Baza sprawdzonych nieruchomości. Nasza firma posiada 7 oddziałów. Pracujemy w systemach wymiany ofert z biurami nieruchomości na terenie całej Polski. Posiadamy polisę OC. Obsługujemy teren całego województwa zachodniopomorskiego. Nasz skład liczy blisko 40 osób. Dobierzemy dla Państwa najtańszy kredyt na zakup każdej nieruchomości. Nie musisz kupować z nami nieruchomości, by otrzymać świetny kredyt! W ofercie mamy ponad 20 banków! Zadzwoń po kredyt hipoteczny już dziś: +48 790 588 531 CENTRALA FIRMY: +48 530 855 003 [email protected] Nasze oddziały: Oddział GOLENIÓW ul. M. Konopnickiej 76 72-100 Goleniów Tel. +48 91 418 56 57 Oddział STARGARD ul. Mikołaja Reja 8/1 73-110 Stargard Tel. +48 91 577 07 57 Oddział NOWOGARD ul. Bankowa 3B/1 72-200 Nowogard Tel. +48 91 307 66 87 Oddział SZCZECIN ul. Łaziebna 1, U1/1 70-557 Szczecin Tel. +48 91 307 91 64 Oddział ŚWINOUJŚCIE ul. Bolesława Chrobrego 5B 72-600 Świnoujście Tel. +48 91 307 89 01 Oddział KOŁOBRZEG ul. Mariacka 38/2 78-100 Kołobrzeg Tel. +48 94 700 00 23 Zapraszamy do naszych oddziałów! www.mikulski-nieruchomosci.pl :: Oferta wysłana z programu mediaRent (media-rent.eu) ::
849 000 PLN
5 184,50 m2 Zobacz ofertę