Połchowo DZIAŁKA SPRZEDAŻ za cenę 330 000 zł - DobryAdres.pl - ogłoszenia nieruchomości Szczecin. Sprzedaż mieszkań, domów, działek i lokali użytkowych.

‹ Wróć do listy ofert

Działki budowlane objęte MPZP okolice Dusin

Działka na sprzedaż - Połchowo

oferta była przeglądana 139 razy

330 000 PLN notatnik

cena za m2 70 PLN

  • ZDJĘCIA
Działki budowlane objęte MPZP okolice Dusin (1)Działki budowlane objęte MPZP okolice Dusin (2)Działki budowlane objęte MPZP okolice Dusin (3)Działki budowlane objęte MPZP okolice Dusin (4)Działki budowlane objęte MPZP okolice Dusin (5)Działki budowlane objęte MPZP okolice Dusin (6)Działki budowlane objęte MPZP okolice Dusin (7)Działki budowlane objęte MPZP okolice Dusin (8)Działki budowlane objęte MPZP okolice Dusin (9)Działki budowlane objęte MPZP okolice Dusin (10)Działki budowlane objęte MPZP okolice Dusin (11)Działki budowlane objęte MPZP okolice Dusin (12)
Piotr Kordus
(Pronovo Nieruchomości)
nr licencji: 11433

tel.: +48 500 103 180
email: [email protected]
informacje ogólne
Symbol
PKN-GS-139
Cena cena w innych walutach
330 000, 00 PLN
uzbrojenie
Energia elektryczna
informacje dodatkowe
Szerokość działki (mb.)
130, 00
Rodzaj nawierzchni
ASFALT
Opis oferty

Działka o powierzchni 4716m2 z wydanymi warunkami zabudowy pod pensjonat.
Dodatkowo działki o powierzchni od 1250m2 w kompleksie działek z wydanymi warunkami zabudowy lub objętych MPZP oraz rolnych. MPZP lub warunki zabudowy mówią o przeznaczeniu działek pod domy rekreacyjne z możliwością całorocznego zamieszkania, pod pensjonaty o wysokości do 3 kondygnacji i usługi związane z turystyką.

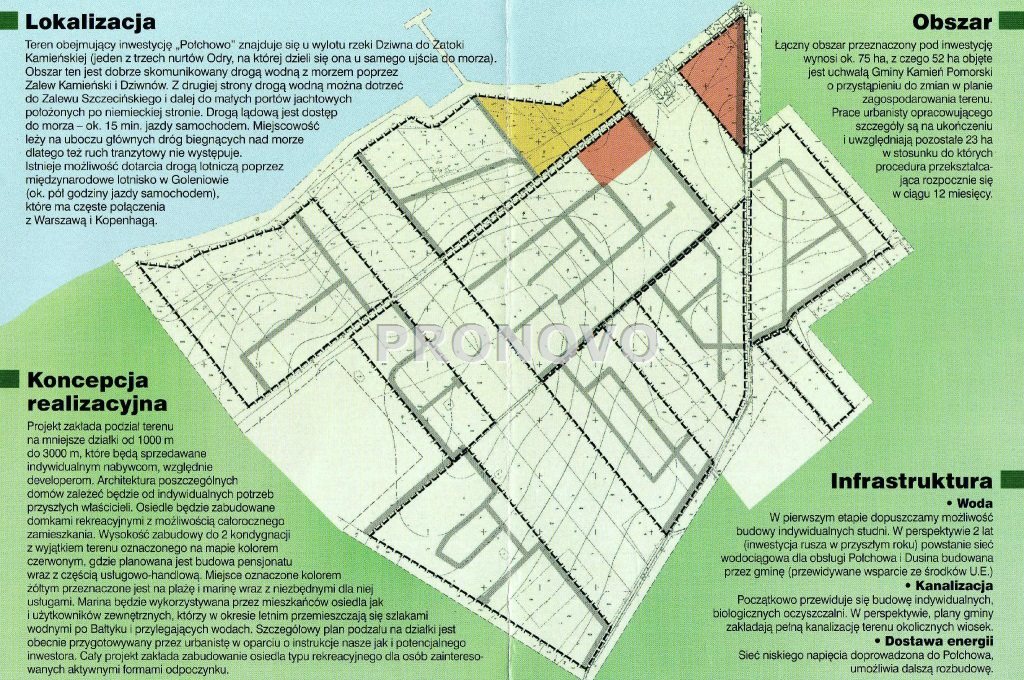
Lokalizacja:
Teren umiejscowiony jest u wylotu rzeki Dziwna do Zatoki Kamieńskiej (jeden z 3 ujść Odry do Bałtyku). Obszar dobrze skomunikowany wodnie z morzem i Zalewem Szczecińskim, drogowo- z drogą krajową do Kamienia Pomorskiego oraz w pobliżu budowanej S3 do Świnoujścia. Teren leży na uboczu głównych dróg prowadzących do morza co gwarantuje spokój, ale na tyle blisko aby można było łatwo dojechać do kompleksu działek drogą asfaltową.

Koncepcja realizacji:
w sąsiedztwie działki mogą być podzielone na 1200 do 3000m2 dla indywidualnych klientów lub większe dla developerów (indywidualne warunki negocjacji). Osiedle będzie zabudowane domkami rekreacyjnymi z możliwością zamieszkiwania całorocznego, pensjonatami, częścią usługowo-handlową, mariną z pirsami do cumowania łodzi i ogólnodostępną plażą. Marina ma być wykorzystywana przez właścicieli z osiedla oraz użytkowników tras wodnych. Obecnie są już budynki pensjonatowe działające.

Infrastruktura:
W pierwszym etapie dopuszczona jest budowa własnych studni oraz biologicznych oczyszczalni. W perspektywie 2 lat powstanie rurociąg wodny i kanalizacyjny obsługujące teren i okolicę budowane przez gminę ze wsparciem środków UE. Sieć niskiego napięcia jest doprowadzona do kompleksu działek (nowy transformator).

Otoczenie:
Dostęp do morza, Zatoki Kamieńskiej i Zalewu Szczecińskiego daje duże możliwości uprawiania sportów wodnych oraz innych form rekreacji. W pobliżu znajdują się 2 pełnowymiarowe pola golfowe (Kołczewo, Łukęcin), ośrodki uzdrowiskowe w Kamieniu Pomorskim, Woliński Park Narodowy i liczne miejscowości wypoczynkowe.
Przy zakupie większych powierzchni możliwość indywidualnych negocjacji.
Wszystkie oferty na nieruchomosci-online
Jeśli macie Państwo nieruchomości do sprzedaży zgłoście do nas a zaproponujemy atrakcyjne warunki współpracy. Nasze biura skupione pod marką Pronovo gwarantują wysoki poziom obsługi i profesjonalizm.

W treści naszej umowy pośrednictwa bierzemy odpowiedzialność za wszelką pomoc, doradztwo i konsultacje na każdym etapie transakcji w tym informowanie o ważnych aspektach związanych z zawieraniem umowy sprzedaży nieruchomości, uprawnień osób trzecich do nabycia nieruchomości, pomoc w regulowaniu stanu prawnego nieruchomości itp. W związku z czym bierzemy na siebie dużą odpowiedzialność.


Piotr Kordus- właściciel Pronovo Kordus Nieruchomości

Pośrednik w Obrocie Nieruchomościami licencja 11433

Kom. +48. 500. 103. 180.

Zapraszamy na stronę firmową Pronovo

Pośrednik odpowiedzialny zawodowo za wykonanie umowy pośrednictwa: Piotr Kordus (licencja nr: 11433)


Oferta wysłana z systemu Galactica Virgo
Piotr Kordus
(Pronovo Nieruchomości)
nr licencji: 11433

+48 500 103 1 (pokaż)
[email protected]

telefon

email

nie wypełniaj

zapytanie

Podobne oferty

notatnik
SZCZECIN, SŁAWOCIESZE
336 500 PLN 1082 m2
Piękna działka na Prawobrzeżu
DZIAŁKA NA SPRZEDAŻ SZCZECIN, SŁAWOCIESZE
Planujesz skredytować to marzenie - zadzwoń. Zamieszkaj na Prawobrzeżu Szczecina- świetnie skomunikowana, otoczona lasami dzielnica Sławociesze : Działka o powierzchni 1082m2 z bezpośrednim dostępem do asfaltowej drogi objęta miejscowym planem zagospodarowania: Zabudowa jednorodzinna (również dwulokalowa) domy wolnostojące maksymalna powierzchnia zabudowy w granicach działki budowlanej: 25 %minimalny udział powierzchni terenu biologicznie czynnej 60%maks. wysokość zabudowy nie więcej niż 9,5 mbudynki kryte dachami stromymi (dopuszcza się dla garaży wolno stojących i obiektów gospodarczych dachy płaskie. Działka jest jedną z 7 działek - specjalna oferta przy zakupie całości (8266m2). Sprawdź pozostałe oferty działek obok - w niższej cenie. UZBROJENIE: w drodze: gaz, woda, prąd OKOLICA: Tereny idealne dla osób chcących mieszkać poza miastem. Lasy, ścieżki rowerowe, a jednocześnie dobry dojazd do miasta. Odległość do szpitala 3 km, do dworca kolejowego Wielgowo 2,3 km, do centrum miasta 21 km, do Berlina 165 km nad morze (np.Międzyzdroje) 87km. Zapraszam na prezentację. Planujesz skredytować to marzenie? Zadzwoń. Pośredniczymy w transakcjach obrotu nieruchomościami i pomagamy uzyskać kredyt hipoteczny na terenie całej Polski. Posiadamy 8 oddziałów - w Szczecinie, Warszawie, Poznaniu, Gdańsku, Olsztynie, Rzeszowie i Lublinie. Nasi agenci bezpłatnie dojeżdżają do Klientów. Jesteś zainteresowany niezobowiązującym spotkaniem? Zadzwoń do nas już dziś. Treść niniejszego ogłoszenia nie stanowi oferty handlowej w rozumieniu Kodeksu Cywilnego. Treść ma charakter informacyjny i zalecamy ich osobistą weryfikację. Oferta wysłana z programu dla biur nieruchomości ASARI CRM (asaricrm.com)
336 500 PLN
1082,00 m2 Zobacz ofertę
notatnik
Goleniów, Helenów
325 000 PLN 0 m2
Goleniów os. Helenów- działka 1352 m2
DZIAŁKA NA SPRZEDAŻ Goleniów, Helenów
Przedmiotem sprzedaży jest działka budowlana położona w atrakcyjnej dzielnicy Goleniowa- Helenowie. Nieruchomość mieści się bezpośrednio przy głównej ul. Stargardzkiej, obok poczty i apteki.  Niedaleko mieści się market Dino, przedszkole, żłobek, szkoła podstawowa, przystanek autobusowy. INFORMACJE PODSTAWOWE: Powierzchnia: 1352 m2 Kształt działki: nieregularny Działka: środkowa Wygląd działki: pusta Ogrodzona: nie Warunki glebowe: dobre Klasa ziemi przy działce rolnej: RV Decyzja o warunkach zabudowy: tak - na działki 54/7 i 54/8 rodzaj budynku: dwa szeregi po 3 budynki jednorodzinne i dwa budynki w zabudowie bliźniaczej  powierzchnia zabudowy: 33% maksymalna wysokość budynku: 9 m. kąt nachylenia dachu: 30-45 stopni Decyzja o pozwoleniu na budowę: nie ma POŁOŻENIE: Odległość do najbliższych zabudowań: bezpośrednie sąsiedztwo Sąsiedztwo: zabudowa mieszkaniowa Rodzaj drogi dojazdowej: asfaltowa Dostęp do drogi publicznej: tak, bezpośredni Odległość do tras krajowych: 5 km do trasy S3 Ukształtowanie terenu: teren płaski MEDIA : Dostępne media: w drodze przy działce prąd, kanalizacja, światłowód WODA: w sąsiedniej działce KANALIZA: w drodze przy działce GAZ: w sąsiedniej działce PRĄD: w drodze przy działce Zapraszamy do kontaktu i szczegółowego zapoznania się z ofertą: Ewelina Olejniczak, 530 855 033 "Opis nieruchomości zawarty w niniejszej ofercie został sporządzony na podstawie informacji przekazanych nam przez stronę sprzedającą. Zwracamy uwagę, że mogą one zawierać błędy lub nieścisłości. W przypadku zainteresowania ofertą zalecamy osobistą weryfikację tych informacji. Oferta ta nie stanowi oferty w rozumieniu przepisu art. 66 i nast. kodeksu cywilnego." ------------------------------------------ Mikulski Nieruchomości - licencjonowana sieć biur nieruchomości. Baza sprawdzonych nieruchomości. Nasza firma posiada 7 oddziałów. Pracujemy w systemach wymiany ofert z biurami nieruchomości na terenie całej Polski. Posiadamy polisę OC. Obsługujemy teren całego województwa zachodniopomorskiego. Nasz skład liczy blisko 40 osób. Dobierzemy dla Państwa najtańszy kredyt na zakup każdej nieruchomości. Nie musisz kupować z nami nieruchomości, by otrzymać świetny kredyt! W ofercie mamy ponad 20 banków! Zadzwoń po kredyt hipoteczny już dziś: +48 790 588 531 CENTRALA FIRMY: +48 530 855 003 [email protected] Nasze oddziały: Oddział GOLENIÓW ul. M. Konopnickiej 76 72-100 Goleniów Tel. +48 91 418 56 57 Oddział STARGARD ul. Mikołaja Reja 8/1 73-110 Stargard Tel. +48 91 577 07 57 Oddział NOWOGARD ul. Bankowa 3B/1 72-200 Nowogard Tel. +48 91 307 66 87 Oddział SZCZECIN ul. Łaziebna 1, U1/1 70-557 Szczecin Tel. +48 91 307 91 64 Oddział ŚWINOUJŚCIE ul. Gen. J. Bema 7/2 (I piętro) 72-600 Świnoujście Tel. +48 91 307 89 01 Oddział KOŁOBRZEG ul. Mariacka 38/2 78-100 Kołobrzeg Tel. +48 94 700 00 23 Zapraszamy do naszych oddziałów! www.mikulski-nieruchomosci.pl :: Oferta wysłana z programu mediaRent (media-rent.eu) ::
325 000 PLN
Zobacz ofertę
notatnik
NIESULICE
322 400 PLN 1040 m2
Działka budowlana w Niesulicach
DZIAŁKA NA SPRZEDAŻ NIESULICE,
Działka pod budowę domu w miejscowości letniskowej NIESULICE położonej nad jeziorem o pierwszej klasie czystości - Niesłysz. Kompleks podobnych działek z dala od ruchliwych dróg. Działka o foremnym kształcie, zbliżonym do prostokąta z wjazdem od strony północno-wschodniej. Nieruchomość od lasu dzieli tylko 70m. PRZEZNACZENIE W PLANIE MIEJSCOWYM: Działka leży na terenie oznaczonym symbolem ML MN -tereny zabudowy mieszkaniowej jednorodzinnej z dopuszczeniem zabudowy letniskowej. Minimalna powierzchnia działki - 1000 m2. Rodzaj zabudowy - wolnostojący dom mieszkalny. Dla terenu tego terenu ustalono w planie miejscowym szczegółowe zasady zabudowy: - wysokość nowej zabudowy maksymalnie 3 m od najniżej położonego narożnika budynku do najwyższego gzymsu i 7 m do kalenicy dachu, - dachy spadziste dwuspadowe lub czterospadowe, spadki 35-45, nie narzuca się kierunku kalenicy, - docelowo dopuszcza się lokalizację jednego budynku letniskowego lub mieszkaniowego i jednego gospodarczo-garażowego, - wielkość powierzchni całkowitej zabudowy w stosunku do powierzchni terenu nie może przekroczyć 15%, w tym udział powierzchni biologicznie czynnej minimalnie 80% DOSTĘPNE MEDIA: sieć elektryczna i gazowa w drodze przy działce, nieco dalej dostępne są sieci wodociągowa i kanalizacyjna. Zgodnie z zapisami miejscowego planu zagospodarowania terenu do czasu budowy systemu kanalizacyjnego dopuszcza się na poszczególnych działkach budowę szczelnych zbiorników bezodpływowych na nieczystości ciekłe z możliwością docelowego włączenia odpływu ścieków z budynków do projektowanego systemu kanalizacyjnego. DOJAZD: dojazd do osiedla drogą asfaltową, ostatni odcinek do samej działki drogą gruntową. LOKALIZACJA: Nowo powstające osiedle domów letniskowych i jednorodzinnych, 900m do plaży (15 minut pieszo) przy Jeziorze Niesłysz. Wokół jeziora roztaczają się nieskończone tereny leśne z mnóstwem ścieżek rowerowych a w sąsiedniej miejscowości znajdują się znane pola golfowe "Kalinowe Pola". Szybki i wygodny dojazd do Niesulic prowadzi zarówno z trasy S3 jak i autostrady A2. KONTAKT: Ewa Krzystek tel. 502 695 645, e-mail: [email protected]. Oferta wyłącznie w biurze TERRA NIERUCHOMOŚCI TERRA NIERUCHOMOŚCI - Twój partner i doradca na rynku nieruchomości od 1994r. Oferta wysłana z programu dla biur nieruchomości ASARI CRM (asaricrm.com)
322 400 PLN
1040,00 m2 Zobacz ofertę