SZCZECIN LOKAL SPRZEDAŻ za cenę 1 250 000 zł - DobryAdres.pl - ogłoszenia nieruchomości Szczecin. Sprzedaż mieszkań, domów, działek i lokali użytkowych.

‹ Wróć do listy ofert

Lokal handlowo-usługowy 150 m2 z Najemcami

Lokal na sprzedaż - Szczecin, Niebuszewo

oferta była przeglądana 160 razy

1 250 000 PLN notatnik

cena za m2 8 318 PLN

  • ZDJĘCIA
Lokal handlowo-usługowy 150 m2 z Najemcami (1)Lokal handlowo-usługowy 150 m2 z Najemcami (2)Lokal handlowo-usługowy 150 m2 z Najemcami (3)Lokal handlowo-usługowy 150 m2 z Najemcami (4)Lokal handlowo-usługowy 150 m2 z Najemcami (5)Lokal handlowo-usługowy 150 m2 z Najemcami (6)Lokal handlowo-usługowy 150 m2 z Najemcami (7)Lokal handlowo-usługowy 150 m2 z Najemcami (8)Lokal handlowo-usługowy 150 m2 z Najemcami (9)Lokal handlowo-usługowy 150 m2 z Najemcami (10)Lokal handlowo-usługowy 150 m2 z Najemcami (11)Lokal handlowo-usługowy 150 m2 z Najemcami (12)Lokal handlowo-usługowy 150 m2 z Najemcami (13)
Rafał Szczepański
(Dom Finansowy "PATRIA" Robert Baciocha)
nr licencji: PFRN-1838

tel.: +48 535 160 690
email: [email protected]
informacje ogólne
Symbol
PTR25620
Rodzaj rynku
WTÓRNY
Rodzaj lokalu / przeznaczenie
BIUROWY
Powierzchnia całkowita
150, 27 m²
Piętro
1
Ilość pięter
4
Rodzaj budynku
NISKI BLOK
Rok budowy
1994
Materiał ścian
BLOCZKI
Cena za m2
8 318, 36 PLN
Cena cena w innych walutach
1 250 000, 00 PLN
informacje dodatkowe
Forma własności
WŁASNOŚĆ
Instalacje w lokalu
WENTYLACJA, KOMPUTEROWA, INSTALACJA PRZECIWPOŻAROWA, OGRZEWANIE
Wentylacja
Garaż
Opis oferty


Sprzedam samodzielny lokal handlowo-usługowy w Szczecina w dzielnicy Niebuszewo. Lokal posiada swoją witrynę przy wejściu. Lokal nadaje się pod prowadzenie każdej działalności gospodarczej np. handel, usługi, produkcja, biuro rachunkowe, kancelarie notarialną, gabinety lekarskie itp. Przed budynkiem dwa miejsca parkingowe.


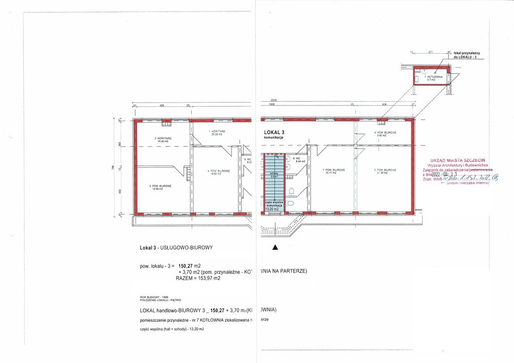
* Powierzchnia całkowita lokalu 150,27 m2


* Lokal składa się z 9 pomieszczeń:

- 6 pomieszczeń biurowych o łącznej powierzchni 94,77 m2, ściany gładzone pomalowane, na podłodze panele, wykładzina biurowa i terakota.
- Dwóch oddzielnych łazienek z WC ( damska i męska) o powierzchni 8,32 m2 i 8,44 m2 uposażony umywalkę i WC, całość w glazurze i terakocie.
- Korytarza o powierzchni 29,26 m2 ściany gładzone malowane na podłodze terakota.
- Kotłownia o powierzchni 3,7 m2, uposażona w piec gazowy.

Lokal został wybudowany w 1999 roku.
- lokal bezczynszowy.
- instalacja alarmowa i sieci internetowej w każdym z pokoi biurowych.

- Ogrzewanie lokalu z własnego ogrzewania, z własnego pieca gazowego.

Wszystkie pomieszczenia biurowe wynajęte.

Możliwość zakupu lokalu wraz z dobrze prosperującymi najemcami.


Zapraszam na prezentację.



Biuro Nieruchomości "PATRIA" - to zaufana marka na rynku nieruchomości. Istniejemy od ponad 30 lat.
Zapraszamy na naszą stronę internetową: www.patria.szczecin.pl.

Dla każdej osoby zainteresowanej nabyciem nieruchomości oferujemy bezpłatne badanie zdolności kredytowej oraz darmową konsultację z pracownikiem ogólnopolskiej firmy doradztwa kredytowego. O szczegóły zapytaj agenta odpowiedzialnego za to ogłoszenie.

Chcesz szybko sprzedać mieszkanie, dom, lokal, pozbyć się problemu, ponieważ potrzebujesz pieniędzy? Podziel się z nami informacją, jaką nieruchomość chciałbyś sprzedać, skontaktujemy się z Tobą i omówimy szczegóły. Decyzję o zakupie podejmujemy najszybciej jak to możliwe. Skupujemy nieruchomości w każdym stanie technicznym, także zadłużone i w trakcie komorniczej egzekucji.


Powyższe informacje zawierające między innymi cenę nieruchomości mają charakter wyłącznie informacyjny. Nie stanowią one oferty w rozumieniu art. 66 i n. ustawy z dnia 23. 04. 1964 r. Kodeks cywilny (Dz.U. 1964 r. Nr 16, poz. 93, ze zmianami.).


Oferta wysłana z programu dla biur nieruchomości ASARI CRM (asaricrm.com)

Rafał Szczepański
(Dom Finansowy "PATRIA" Robert Baciocha)
nr licencji: PFRN-1838

+48 535 160 (pokaż)
[email protected]

telefon

email

nie wypełniaj

zapytanie

Podobne oferty

notatnik
SZCZECIN, ŚRÓDMIEŚCIE-CENTRUM
1 250 000 PLN 125 m2
Nowoczesna i industrialna przestrzeń do pracy
LOKAL NA SPRZEDAŻ SZCZECIN, ŚRÓDMIEŚCIE-CENTRUM
Wyłącznie w Turant Dominiak & Wspólnicy Nowoczesne i oryginalne wnętrze biura mogące służyć jako co-working z funkcją mieszkalną w samym centrum miasta Szczecin. Lokal położony jest na parterze czteropiętrowej kamienicy, która przeszła remont elewacji zewnętrznej oraz dachu. Budynek położony jest przy ulicy Dworcowej zaledwie 100 m od Bramy Portowej i 500 m od Dworca Kolejowego Szczecin Główny. Prezentowana przez nas nieruchomość przeszła kapitalny remont poprzez wymianę/dodanie nowych instalacji, wymianę stolarki okiennej na energooszczędną z izolacją akustyczną, wymianę drzwi wejściowych, położenie nowych tynków, podłóg jak i zmianę na bardziej funkcjonalny układu pomieszczeń. Powierzchnia lokalu 124,68 m2 została podzielona na 4 pomieszczenia biurowe z możliwością przygotowania funkcji mieszkalnej, części głównej "lounge" z salą konferencyjną, pomieszczenia socjalnego z aneksem kuchennym, serwerowni, łazienki, toalety oraz komunikacji. Dane poszczególnych pomieszczeń: - 4 pomieszczenia biurowo/mieszkalne: ściany gładzone oraz częściowo pozostawione surowe malowane na biało, w każdym pomieszczeniu dwie lampy z natężeniem światła do pracy i mieszkania, minimum dwa gniazda internetowe w każdym pomieszczeniu, indywidualne jednostki klimatyzacji, indywidualne instalacje alarmowe; - lounge: strefa stworzona do wypoczynku jak i spotkań z klientami, wyposażona w trzy sofy i rzeczy dające klimat wprost salonowy; - sala konferencyjna: nowocześnie przygotowana, wydzielona ścianami ze szkła, doświetlona światłem dziennym, posiadająca indywidualną jednostkę klimatyzacji, ekran do projektora, projektor z możliwością odtwarzania przez sieć wifi oraz gniazdo hdmi, dodatkowo meble, które w pełni tworzą salę konferencyjną; - pomieszczenie socjalne/kuchnia: wyposażone w aneks kuchenny wraz ze sprzętem AGD tj. lodówka, zmywarka, kuchenka mikrofalowa, okap, płyta grzewcza elektryczna oraz miejsce do konsumpcji; - serwerownia: szafa serwerowa rack, możliwość wstawienia własnego serwera z okablowaniem logicznym; - łazienka i toaleta: przygotowane z gresu i terakoty, wyposażone w kabinę prysznicową, toaletę oraz umywalkę w zabudowie z szafką; Dane technologiczne: - doprowadzony światłowód Orange oraz UPC; - możliwość podłączenia czterech niezależnych sieci wifi; - możliwość dostawienia własnego serwera z okablowaniem logicznym; - każde pomieszczenie posiada kilka gniazd internetowych; - rejestrator kamer; - instalacja alarmowa podzielona na każdy pokój plus części wspólne; - dwa wzmacniacze sygnału sieci wifi; - ekran + projektor z możliwością podłączenia do sieci wifi; Prezentowana nieruchomość może stać się gotowym i bezpiecznym produktem inwestycyjnym. Obecnie jest ona wynajmowana do marca 2027 roku. Lokalizacja zapewnia doskonałą komunikację. W bliskiej odległości znajdują się przystanki autobusowe, tramwajowe, PKP, PKS, pełna infrastruktura, liczne sklepy i restauracje. Zapraszamy na prezentację Oferta wysłana z programu dla biur nieruchomości ASARI CRM (asaricrm.com)
1 250 000 PLN
8 124,68 m2 Parter/4 Zobacz ofertę
notatnik
SZCZECIN, ŚRÓDMIEŚCIE-CENTRUM
1 240 000 PLN 132 m2
Nowocześnie urządzone biuro po kancelarii prawnej
LOKAL NA SPRZEDAŻ SZCZECIN, ŚRÓDMIEŚCIE-CENTRUM
Wyłącznie w Turant Dominiak & Wspólnicy Z przyjemnością przedstawiamy ofertę sprzedaży nowoczesnego biura przygotowanego z lokalu mieszkalnego, które do tej pory pełniło funkcję kancelarii prawnej. Znajdujące się w doskonałej lokalizacji, biuro o powierzchni 131,99 m2 jest idealnym rozwiązaniem dla firm poszukujących eleganckiej i funkcjonalnej przestrzeni do pracy. Lokalizacja: Biuro zlokalizowane jest w centrum miasta przy ulicy Monte Cassino, w doskonale skomunikowanej okolicy, co zapewnia łatwy dostęp do transportu publicznego oraz licznych udogodnień, takich jak restauracje, kawiarnie i sklepy. Wnętrze: Biuro zostało zaprojektowane z myślą o maksymalnej wygodzie i efektywności pracy. W skład powierzchni 131,99 m2 wchodzą: - Przestronna recepcja z poczekalnią i nowoczesną ladą recepcyjną, - Sala konferencyjna, - Trzy przestronne gabinety zapewniające komfortowe warunki pracy, - W pełni przygotowane pomieszczenie socjalne, - Łazienka z kabiną prysznicową i wc oraz oddzielna toaleta; Wyposażenie: Biuro jest w pełni umeblowane i wyposażone w sprzęt biurowy. Wszystko zostało starannie dobrane, aby zapewnić komfort i wygodę pracy na najwyższym poziomie. Dodatkowe informacje: - Centralne sterownie roletami antywłamaniowymi, - System alarmowy oraz monitoring, - Oświetlenie w lokalu polskiej marki AQForm, - Dostęp do szybkiego internetu, wzmacniacz sygnały x2, - Możliwość wynajęcia miejsc parkingowych w pobliżu. To wyjątkowe biuro po kancelarii prawnej jest gotowe do natychmiastowego wprowadzenia się i rozpoczęcia działalności. Nowoczesne wykończenie oraz funkcjonalny rozkład pomieszczeń czynią je idealnym miejscem do prowadzenia biznesu, zarówno dla kancelarii prawnych, jak i innych firm poszukujących prestiżowej siedziby. Cena: Cena sprzedaży biura wynosi 1 240 000 zł. Dodatkowo płatne miejsce postojowe znajdujące się na kondygnacji -2 o powierzchni 19,40 m2 wraz z komórka lokatorską o powierzchni 3,66 m2 za łączną cenę 50 000 zł. Zapraszamy do kontaktu w celu uzyskania dodatkowych informacji oraz umówienia się na prezentację. To doskonała okazja, aby nabyć gotowe do użytku, nowoczesne biuro w znakomitej lokalizacji. Oferta wysłana z programu dla biur nieruchomości ASARI CRM (asaricrm.com)
1 240 000 PLN
4 131,99 m2 1/6 Zobacz ofertę
notatnik
Grudziądz, GRUDZIĄDZ
1 250 000 PLN 365 m2
Obiekt - Grudziądz
LOKAL NA SPRZEDAŻ Grudziądz, GRUDZIĄDZ
Spichrz z XV wieku, na wprost rynku z widokiem na Wisłę. Spichrz pięciokondygnacyjny o łącznej powierzchni użytkowej 364,50 mkw., każda kondygnacja o powierzchni 72,90 mkw. i wysokości 2,80 m, stojący na działceo powierzchni 378 mkw. Budowę pierwszych spichrzów rozpoczęto w latach 1346-1365. W 1504 r. było już 14 spichrzów murowanych. Murowane z cegły, ze ścianami wykazującymi wiele faz budowy, o grubości murów 1,50 m. W kilku z nich w dolnych kondygnacjach widoczny układ cegieł gotycki, w kondygnacjach wyższych przeważnie nieregularny. Od strony ulicy Spichrzowej są one dwukondygnacyjne, od strony Wisły wielokondygnacyjne, tworzące ciąg o charakterze obronnym, przerwany na wysokości siedziby Urzędu Miejskiego. Wewnątrz kondygnacje z zachowanymi konstrukcjami drewnianymi i stropami belkowymi. W sprzedaży również sąsiadujący, nieco mniejszy czterokondygnacyjny Spichrz o łącznej powierzchni użytkowej 183,60 mkw., każda kondygnacja o powierzchni 45,90 mkw. i wysokości 2,80 m, stojący na działce o powierzchni 207 mkw. Spichrz mniejszy możliwy do zakupu w cenie 800 000 zł. Dach częściowo wyczyszczony. Spichrze te sąsiadują ze sobą i można je połączyć. Są one zaopatrzone w instalację wodno-kanalizacyjną, elektryczną i gazową. Stan obecny pochodzi z okresu XVI-XVIII w. Część w XIX-XX w. przebudowana na cele mieszkalne. Aktualnie po starannej adaptacji część z nich pełni funkcję obiektów muzealnych, niektóre w dalszym ciągu są magazynami różnych instytucji. Ulica Spichrzowa jest wizytówką miasta.
1 250 000 PLN
364,50 m2 Zobacz ofertę