SZCZECIN LOKAL SPRZEDAŻ za cenę 720 000 zł - DobryAdres.pl - ogłoszenia nieruchomości Szczecin. Sprzedaż mieszkań, domów, działek i lokali użytkowych.

‹ Wróć do listy ofert

Os. Majowe, 89m2 lokal handlowo-usługowy, parter

Lokal na sprzedaż - Szczecin, Majowe, ul. Zofii Nałkowskiej

oferta była przeglądana 203 razy

720 000 PLN notatnik

cena za m2 8 090 PLN

  • ZDJĘCIA
Os. Majowe, 89m2 lokal handlowo-usługowy, parter (1)Os. Majowe, 89m2 lokal handlowo-usługowy, parter (2)Os. Majowe, 89m2 lokal handlowo-usługowy, parter (3)Os. Majowe, 89m2 lokal handlowo-usługowy, parter (4)Os. Majowe, 89m2 lokal handlowo-usługowy, parter (5)Os. Majowe, 89m2 lokal handlowo-usługowy, parter (6)Os. Majowe, 89m2 lokal handlowo-usługowy, parter (7)Os. Majowe, 89m2 lokal handlowo-usługowy, parter (8)Os. Majowe, 89m2 lokal handlowo-usługowy, parter (9)Os. Majowe, 89m2 lokal handlowo-usługowy, parter (10)Os. Majowe, 89m2 lokal handlowo-usługowy, parter (11)
Piotr Byzdra
(Elite Nieruchomości)
nr licencji: 27249

tel.: +48 500 358 321
email: [email protected]
informacje ogólne
Symbol
ELT34363
Rodzaj rynku
WTÓRNY
Rodzaj lokalu / przeznaczenie
HANDLOWO-USŁUGOWY
Powierzchnia całkowita
89, 00 m²
Parter
Ilość pięter
10
Rodzaj budynku
WIEŻOWIEC
Rok budowy
1992
Materiał ścian
WIELKA PŁYTA
Ogrzewanie
C.O. Z SIECI MIEJSKIEJ
Cena za m2
8 089, 89 PLN
Cena cena w innych walutach
720 000, 00 PLN
informacje dodatkowe
Forma własności
WŁASNOŚĆ
Źródło c.w.
SIEĆ MIEJSKA
Ochrona
Opis oferty
Na sprzedaż lokal handlowo-usługowy usytuowany w środku osiedla Majowego.

Nieruchomość idealna do prowadzenia działalności handlowo-usługowej: gabinety lekarskie, sklepy, hurtownie, biura, szkoła językowa, fryzjer, salon kosmetyczny.

Lokal posiada dwa wejścia, możliwość rozładunku towarów od zaplecza
Ściany wewnętrzne są działowe, więc można dopasować układ i wielkość pomieszczeń pod preferencje nowego Właściciela.

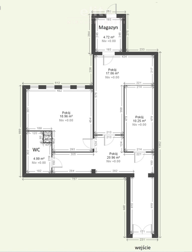
Na powierzchnię 89m2 obecnie składają się:

  • pomieszczenie biurowe o pow. 19m2
  • pomieszczenie biurowe o pow. 17,6m2 z przejściem do magazynu o pow. 4,7 m2 ( drugie wejście )
  • pomieszczenie biurowe o pow. 10m2
  • korytarz z aneksem kuchennym
  • toaleta
  • holl / poczekalnia


Ogrzewanie i ciepła woda z sieci miejskiej.
Przed budynkiem duża ilość ogólnodostępnych miejsc parkingowych

Świetna lokalizacja, w pobliżu sklepy sklepy: żabka, apteka, restauracje, w odległości 200m zajezdnia autobusowa.
Oferta na wyłączność.

Zapraszam na prezentację



KUPUJEMY MIESZKANIA Z OBCIĄŻENIAMI I DŁUGAMI ZA GOTÓWKĘ ZADZWOŃ 91 8171717
Nasi Eksperci bezpłatnie pomagają w uzyskaniu kredytu.

Powyższe ogłoszenie ma wyłącznie charakter informacyjny. Nie stanowi ono oferty w myśl art. 66 i n. ustawy z dnia 23.04.1964r. Kodeks cywilny (Dz.U. 1964r. Nr 16, poz. 93, ze zm.).

Oferta wysłana z programu dla biur nieruchomości ASARI CRM (asaricrm.com)

Piotr Byzdra
(Elite Nieruchomości)
nr licencji: 27249

+48 500 358 (pokaż)
[email protected]

telefon

email

nie wypełniaj

zapytanie

Podobne oferty