MIERZYN DZIAŁKA SPRZEDAŻ za cenę 1 400 000 zł - DobryAdres.pl - ogłoszenia nieruchomości Szczecin. Sprzedaż mieszkań, domów, działek i lokali użytkowych.

‹ Wróć do listy ofert

GRATKA DLA INWESTORÓW !!! HIT INWESTYCYJNY!!

Działka na sprzedaż - Mierzyn, ul. Prosta

oferta była przeglądana 17 razy

1 400 000 PLN notatnik

cena za m2 298 PLN

  • ZDJĘCIA
GRATKA DLA INWESTORÓW !!! HIT INWESTYCYJNY!! (1)GRATKA DLA INWESTORÓW !!! HIT INWESTYCYJNY!! (2)GRATKA DLA INWESTORÓW !!! HIT INWESTYCYJNY!! (3)GRATKA DLA INWESTORÓW !!! HIT INWESTYCYJNY!! (4)GRATKA DLA INWESTORÓW !!! HIT INWESTYCYJNY!! (5)GRATKA DLA INWESTORÓW !!! HIT INWESTYCYJNY!! (6)GRATKA DLA INWESTORÓW !!! HIT INWESTYCYJNY!! (7)
Tasula Wrondas
(AVANTI Nieruchomości)
nr licencji: 8179

tel.: 604781922
email: [email protected]
informacje ogólne
Symbol
AVN22451
Powierzchnia działki
4 700, 00 m²
Rodzaj działki
BUDOWLANA
Forma własności działki
WŁASNOŚĆ
Cena za m2
297, 87 PLN
Cena cena w innych walutach
1 400 000, 00 PLN
uzbrojenie
Energia elektryczna
Podłączony gaz
informacje dodatkowe
Kształt działki
PROSTOKĄT
Szerokość działki (mb.)
53, 00
Długość działki (mb.)
93, 00
Opis oferty

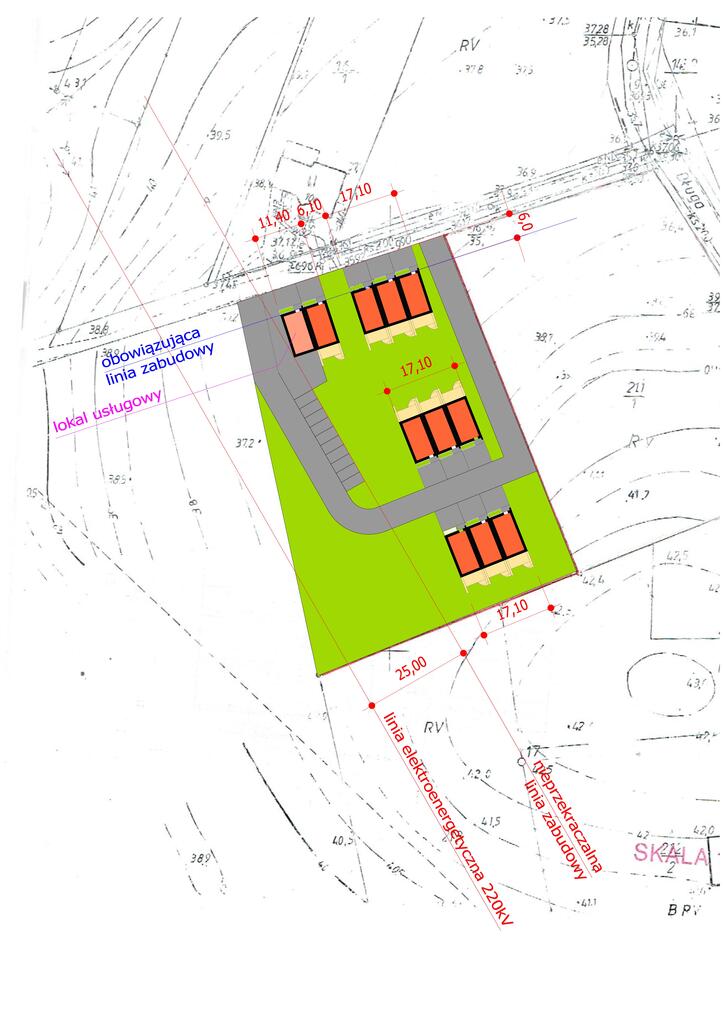
KONCEPCJA ZAGOSPODAROWANIA TERENU ZGODNIE Z WARUNKAMI ZABUDOWY

Inwestycja zakłada intensywne, ale uporządkowane wykorzystanie terenu, łączące funkcję mieszkalną z usługową.
Przy metrażu 4700 m2, taki układ pozwala na zachowanie optymalnych odległości między budynkami.
Zabudowa szeregowa (9 domów): Została zaprojektowana w formie trzech kameralnych zespołów po 3 segmenty każdy. Taki podział sprzyja estetyce osiedla i pozwala na lepsze doświetlenie lokali skrajnych niż w przypadku jednego długiego ciągu.
Budynek mieszkalno-usługowy: Strategicznie zlokalizowany prawdopodobnie w pierwszej linii zabudowy (od strony głównej drogi dojazdowej), co zapewnia ekspozycję lokalu usługowego.
Samodzielny lokal usługowy: Dodatkowy obiekt który podnosi komercyjną atrakcyjność całej inwestycji.
Komunikacja i Infrastruktura
Droga wewnętrzna (6 m): Szerokość 6 metrów jest zgodna z aktualnymi przepisami techniczno-budowlanymi, co pozwala na swobodne wymijanie się pojazdów oraz zapewnia bezpieczny dojazd dla służb ratunkowych (straż pożarna).
Uzbrojenie: Inwestycja obejmuje częściowo kanalizacje sanitarną ,częściowo do zbiorników bezodpływowych , woda studnia, zaopatrzenie w gaz z istniejącej sieci .

Kwota 1 400 000 jest kwotą netto .
Polecam i zapraszam na prezentacje.








Oferta wysłana z programu dla biur nieruchomości ASARI CRM (asaricrm.com)

Tasula Wrondas
(AVANTI Nieruchomości)
nr licencji: 8179

604781 (pokaż)
[email protected]

telefon

email

nie wypełniaj

zapytanie

Podobne oferty

notatnik
Jezierzany, Jezioro, Las, Pas nadmorski, Plac zabaw, Przystane
1 400 000 PLN 0 m2
Działka usługowa - Jezierzany
DZIAŁKA NA SPRZEDAŻ Jezierzany, Jezioro, Las, Pas nadmorski, Plac zabaw, Przystane
Teren nad jeziorem w odległości 1,5 km od morza pod zabudowę usługową Działka budowlana o powierzchni 16 200 mkw., położona w odległości ok. 1,5 km od morza. W nowym obowiązującym planie zagospodarowanie przestrzennego teren oznaczony jest symbolami: "1-U" (tereny zabudowy usługowej), "2-ZK" (Tereny zieleni krajobrazowej), oraz "ZL" (Las). Zasady zagospodarowania terenu dla oznaczenia 1-U (około 9 500 mkw.): powierzchnia zabudowy 40% maksymalny wskaźnik intensywności zabudowy 1,6 maksymalna liczba kondygnacji nadziemnych dla hoteli i pensjonatów - 3, dla pozostałych budynków - 2. dopuszcza się 1 kondygnację podziemną maksymalna wysokość zabudowy dla hoteli 16-12 m, dla pozostałych budynków 9 m, ach symetryczny dwuspadowy o kącie nachylenia głównych połaci dachu od 25 do 55 stopni lub dach płaski, powierzchnia biologicznie czynna 30%. Działka w nieregularnym kształcie, o głębokości ok. 125 m i szerokości ok. 130 m. Od strony północnej, na długości ok. 90 m, graniczy z pasem drogi powiatowej prowadzącej prosto do Jarosławca. Woda, prąd i kanalizacja w drodze dojazdowej. Działka znajduje się w odległości 400 m od przymorskiego jeziora Wicko, 200 m od rzeki i ok. 1 km od Jarosławca, oddalony od plaży lasem szerokości 1,5 km. Teren działki płaski, w części zachodniej, na powierzchni około 6 700 mkw. znajdują się tereny zieleni. Jezierzany, to miejscowość turystyczna licząca 173 mieszkańców, położona w środkowej części Polskiego Wybrzeża, sąsiaduje z bardzo popularnym Jarosławcem, w odległości 18 km znajduje się Darłowo. Przez miejscowość przebiega Międzynarodowy Szlak Rowerowy R-10.
1 400 000 PLN
Zobacz ofertę
notatnik
Połchowo
1 400 000 PLN 0 m2
Działka budowlana na 10 domów przy wodzie
DZIAŁKA NA SPRZEDAŻ Połchowo,
Działka budowlana o powierzchni 9401m2 przy wodzie w Połchowie gm. Kamień Pomorski. Dla działki są wydane warunki zabudowy na 10 domów mieszkalnych z czego planuje się budowę 8 domów 2 lokalowych i 2 jednolokalowe. W zdjęciach pokazany plan zagospodarowania terenu oraz wizualizacje proponowanych domów. Teren sąsiaduje z działką administrowaną przez Urząd Morski w Szczecinie, która stanowi już obszar wodny czyli praktycznie działka jest w pierwszej linii od wody. W pobliżu są tereny objęte miejscowym planem zagospodarowania przestrzennego z przeznaczeniem na budownictwo mieszkaniowe, usługi turystyczne w tym plaża na działkach gminnych. Przy plaży w miejscowym planie jest możliwość budowy pirsów do cumowania łodzi. Teren działki jest częściowo zadrzewiony (stare drzewa), drobne drzewa i krzewy już są usunięte, w miarę płaska, nie ogrodzona. Z działki widok na sąsiadującą za wodą Wyspę Chrząszczewską. W sąsiedztwie pensjonat, zabudowania starsze wsi Połchowo oraz nowo powstające domy i budynki rekreacyjne. Z mediów dostępny przy działce jest prąd. Woda z własnego ujęcia (do chwili wybudowania wodociągu), szambo (do wybudowania kanalizacji). Dojazd drogą asfaltową. Najbliższe większe miejscowości to Kamień Pomorski i Wolin. Podana cena jest ceną netto, należy doliczyć VAT. Jeśli macie Państwo nieruchomości do sprzedaży zgłoście do nas a zaproponujemy atrakcyjne warunki współpracy. Nasze biura skupione pod marką Pronovo gwarantują wysoki poziom obsługi i profesjonalizm. W treści naszej umowy pośrednictwa bierzemy odpowiedzialność za wszelką pomoc, doradztwo i konsultacje na każdym etapie transakcji w tym informowanie o ważnych aspektach związanych z zawieraniem umowy sprzedaży nieruchomości, uprawnień osób trzecich do nabycia nieruchomości, pomoc w regulowaniu stanu prawnego nieruchomości itp. W związku z czym bierzemy na siebie dużą odpowiedzialność. Biuro pobiera wynagrodzenie. Piotr Kordus- właściciel Pronovo Kordus Nieruchomości Pośrednik w Obrocie Nieruchomościami licencja 11433 Kom. +48. 500. 103. 180. Zapraszamy na stronę firmową Pronovo Pośrednik odpowiedzialny zawodowo za wykonanie umowy pośrednictwa: Piotr Kordus (licencja nr: 11433) Oferta wysłana z systemu Galactica Virgo
1 400 000 PLN
Zobacz ofertę