Pogorzelica MIESZKANIE SPRZEDAŻ za cenę 489 614 zł - DobryAdres.pl - ogłoszenia nieruchomości Szczecin. Sprzedaż mieszkań, domów, działek i lokali użytkowych.

‹ Wróć do listy ofert

Pogorzelica- apartament premium wśród zieleni

Mieszkanie na sprzedaż - Pogorzelica

oferta była przeglądana 27 razy

489 614 PLN notatnik

cena za m2 14 900 PLN

  • ZDJĘCIA
Adrianna Pawłowska
(Mikulski Nieruchomości)
nr licencji: 17866

tel.: 798 604 526
email: [email protected]
informacje ogólne
Symbol
15290/MKN/MS-280684
Rodzaj rynku
PIERWOTNY
Liczba pokoi
2
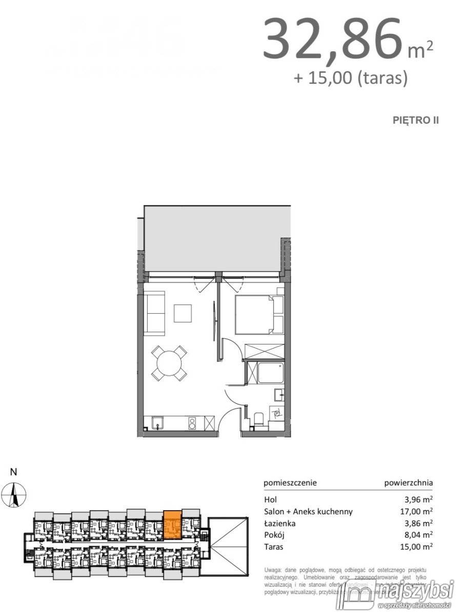
Powierzchnia całkowita
32, 86 m²
Piętro
2
Ilość pięter
3
Standard
DEWELOPERSKI
Rodzaj budynku
APARTAMENT
Rok budowy
2025
Materiał ścian
TRADYCYJNA
Balkon
Cena cena w innych walutach
489 614, 00 PLN
wyposażenie
Energia elektryczna
Podłączony gaz
informacje dodatkowe
Forma własności
PEŁNA WŁASNOŚĆ
Winda w nieruchomości
Taras
Opis oferty
Nowoczesny apartament o powierzchni 32,86 m2 to propozycja dla osób ceniących wysoki standard, wygodę i bliskość natury. Kameralny kompleks, otulony lasem i zaprojektowany z myślą o komforcie mieszkańców, oferuje wyjątkowe udogodnienia: strefę SPA z basenem, sauną i siłownią, stację ładowania samochodów elektrycznych oraz wiatę rowerową. To idealne miejsce zarówno na prywatny wypoczynek, jak i jako inwestycja pod wynajem, szczególnie w przypadku apartamentów premium z jacuzzi na tarasie.
Wnętrze zaprojektowano tak, aby zapewnić maksymalną funkcjonalność i swobodę aranżacji. Apartament składa się z jasnej strefy dziennej z aneksem kuchennym, komfortowej sypialni i łazienki, a ich przestrzeń można dopasować do indywidualnego stylu życia. Lokale dostępne są zarówno w stanie deweloperskim, jak i w standardzie wykończenia pod klucz, dzięki czemu przyszli właściciele mogą od razu cieszyć się gotowym, starannie wykończonym wnętrzem.
Inwestycja położona jest w miejscu, które łączy ciszę i spokój z dostępem do licznych atrakcji. W pobliżu znajduje się plaża oraz jezioro, a bezpośrednie sąsiedztwo tras rowerowych EuroVelo i szlaków Nordic Walking sprzyja aktywnemu wypoczynkowi. Zaledwie 100 metrów dzieli obiekt od kolei wąskotorowej kursującej do popularnych nadmorskich kurortów, takich jak Niechorze, Rewal czy Trzęsacz. Możliwość wykupienia miejsca parkingowego dodatkowo podnosi komfort użytkowania, czyniąc tę inwestycję doskonałym wyborem na całoroczny wypoczynek i atrakcyjną lokatę kapitału.
Do podanej ceny należy doliczyć podatek VAT w wysokości 23%. Istnieje możliwość odliczenia podatku VAT.
"Opis nieruchomości zawarty w niniejszej ofercie został sporządzony na podstawie informacji przekazanych nam przez stronę sprzedającą. Zwracamy uwagę, że mogą one zawierać błędy lub nieścisłości. W przypadku zainteresowania ofertą zalecamy osobistą weryfikację tych informacji. Oferta ta nie stanowi oferty w rozumieniu przepisu art. 66 i nast. kodeksu cywilnego."
------------------------------------------
Mikulski Nieruchomości - licencjonowana sieć biur nieruchomości. Baza sprawdzonych nieruchomości. Nasza firma posiada 7 oddziałów. Pracujemy w systemach wymiany ofert z biurami nieruchomości na terenie całej Polski. Posiadamy polisę OC. Obsługujemy teren całego województwa zachodniopomorskiego. Nasz skład liczy blisko 40 osób.
Dobierzemy dla Państwa najtańszy kredyt na zakup każdej nieruchomości. Nie musisz kupować z nami nieruchomości, by otrzymać świetny kredyt! W ofercie mamy ponad 20 banków! Zadzwoń po kredyt hipoteczny już dziś: +48 790 588 531
CENTRALA FIRMY:
+48 530 855 003
[email protected]
Nasze oddziały:
Oddział GOLENIÓW
ul. M. Konopnickiej 76
72-100 Goleniów
Tel. +48 91 418 56 57
Oddział STARGARD
ul. Mikołaja Reja 8/1
73-110 Stargard
Tel. +48 91 577 07 57
Oddział NOWOGARD
ul. Bankowa 3B/1
72-200 Nowogard
Tel. +48 91 307 66 87
Oddział SZCZECIN
ul. Łaziebna 1, U1/1
70-557 Szczecin
Tel. +48 91 307 91 64
Oddział ŚWINOUJŚCIE
ul. Gen. J. Bema 7/2 (I piętro)
72-600 Świnoujście
Tel. +48 91 307 89 01
Oddział KOŁOBRZEG
ul. Mariacka 38/2
78-100 Kołobrzeg
Tel. +48 94 700 00 23
Zapraszamy do naszych oddziałów!
www.mikulski-nieruchomosci.pl

:: Oferta wysłana z programu mediaRent (media-rent.eu) ::
Adrianna Pawłowska
(Mikulski Nieruchomości)
nr licencji: 17866

798 604 5 (pokaż)
[email protected]

telefon

email

nie wypełniaj

zapytanie

Podobne oferty

notatnik
Szczecin, Bukowe
499 000 PLN 35 m2
Kawalerka z oddzielną kuchnią i balkonem
MIESZKANIE NA SPRZEDAŻ Szczecin, Bukowe
OFERTA SPRZEDAŻY KAWALERKI, O POWIERZCHNI 35,1 M2 Z DUŻYM BALKONEM I PIWNICĄ W POBLIŻU LASU I LICZNYCH TERENÓW ZIELONYCH. BEZPOŚREDNIO POD BUDYNKIEM DUŻĄ LICZBA OGÓLNODOSTĘPNYCH MIEJSC POSTOJOWYCH. Mieszkanie sprzedawane z wyposażeniem widocznym na zdjęciach. Posiada również rolety zewnętrzne. Mieszkanie położone na przyjemnym i kameralnym osiedlu Bukowe. W skład mieszkania wchodzi: -duży pokój pełniący funkcję zarówno jako salon jak i kącik sypialniany. Z pokoju na duży, kameralny balkon. -w pełni wyposażona, oddzielna kuchnia z oknem. Istnieje możliwość przerobienia na oddzielną sypialnię. -łazienka wyposażona w kabinę prysznicową, wc, pralkę oraz umywalkę. W pomieszczeniu dużo miejsca do przechowywania. Całość wykończona i utrzymana w dobrym stanie. Ogrzewanie oraz ciepła woda z sieci miejskiej. Czynsz ok. 700 zł/mies. zawiera opłaty: administracja, sprzątanie części wspólnych, f. remontowy, śmieci, ścieki, zimna i ciepła woda, ogrzewanie, eksploatacja mieszkania. Dodatkowo opłaty za prąd według zużycia. Zapraszam na prezentację tej unikalnej oferty. Pośrednik odpowiedzialny zawodowo za wykonanie umowy pośrednictwa: Ewa Tobolska (licencja nr: ) -------------------------- POMAGAMY W UZYSKANIU KREDYTU NA ZAKUP NIERUCHOMOŚCI - POSIADAMY OFERTĘ KILKUNASTU BANKÓW W JEDNYM MIEJSCU. NASZ INDYWIDUALNY DORADCA W PROFESJONALNY SPOSÓB POMOŻE WYBRAĆ NAJLEPSZĄ OPCJĘ DLA CIEBIE *Powyższa oferta ma charakter jedynie informacyjny i została utworzona na podstawie oświadczeń właściciela nieruchomości, niniejsza oferta nie stanowi oferty handlowej w rozumieniu art. 66 §1 kodeksu cywilnego oraz innych właściwych przepisów prawnych. Oferta wysłana z systemu Galactica Virgo
499 000 PLN
1 35,10 m2 Zobacz ofertę
notatnik
Szczecin, centrum
499 000 PLN 47 m2
Szczecin - Matejki 2 pokoje 47m2
MIESZKANIE NA SPRZEDAŻ Szczecin, centrum
Dwupokojowe mieszkanie w Szczecinie - ul. Matejki, os. Śródmieście-Północ, przy parku Na sprzedaż oferujemy dwupokojowe, rozkładowe mieszkanie o powierzchni 47 m2, położone na 1. piętrze w budynku z windą przy ul. Matejki w Szczecinie, tuż obok Parku Żeromskiego. Lokal składa się z dwóch osobnych pokoi, jasnej kuchni z oknem, łazienki z WC oraz przedpokoju. Mieszkanie słoneczne i wyposażone w okna PCV. Ogrzewanie oraz ciepła woda pochodzą z sieci miejskiej, a do lokalu przynależy piwnica. Budynek jest ocieplony i zadbany, z dostępem do instalacji Orange oraz UPC. W pobliżu znajdują się sklepy, w tym Auchan, Biedronka i CH Galaxy, szkoła oraz liczne tereny spacerowe. Lokalizacja zapewnia świetną komunikację miejską - w kilka minut można dojść do przystanków autobusowych i tramwajowych, a także do Placu Rodła. Czynsz wraz z funduszem remontowym wynosi około 499 zł miesięcznie, dodatkowo płatne są media. Mieszkanie idealne dla par, rodzin lub jako inwestycja pod wynajem. Klucze w biurze - możliwość prezentacji w dowolnym terminie. Serdecznie zapraszamy! "Opis nieruchomości zawarty w niniejszej ofercie został sporządzony na podstawie informacji przekazanych nam przez stronę sprzedającą. Zwracamy uwagę, że mogą one zawierać błędy lub nieścisłości. W przypadku zainteresowania ofertą zalecamy osobistą weryfikację tych informacji. Oferta ta nie stanowi oferty w rozumieniu przepisu art. 66 i nast. kodeksu cywilnego." ------------------------------------------ Mikulski Nieruchomości - licencjonowana sieć biur nieruchomości. Baza sprawdzonych nieruchomości. Nasza firma posiada 7 oddziałów. Pracujemy w systemach wymiany ofert z biurami nieruchomości na terenie całej Polski. Posiadamy polisę OC. Obsługujemy teren całego województwa zachodniopomorskiego. Nasz skład liczy blisko 40 osób. Dobierzemy dla Państwa najtańszy kredyt na zakup każdej nieruchomości. Nie musisz kupować z nami nieruchomości, by otrzymać świetny kredyt! W ofercie mamy ponad 20 banków! Zadzwoń po kredyt hipoteczny już dziś: +48 790 588 531 CENTRALA FIRMY: +48 530 855 003 [email protected] Nasze oddziały: Oddział GOLENIÓW ul. M. Konopnickiej 76 72-100 Goleniów Tel. +48 91 418 56 57 Oddział STARGARD ul. Mikołaja Reja 8/1 73-110 Stargard Tel. +48 91 577 07 57 Oddział NOWOGARD ul. Bankowa 3B/1 72-200 Nowogard Tel. +48 91 307 66 87 Oddział SZCZECIN ul. Łaziebna 1, U1/1 70-557 Szczecin Tel. +48 91 307 91 64 Oddział ŚWINOUJŚCIE ul. Bolesława Chrobrego 5B 72-600 Świnoujście Tel. +48 91 307 89 01 Oddział KOŁOBRZEG ul. Mariacka 38/2 78-100 Kołobrzeg Tel. +48 94 700 00 23 Zapraszamy do naszych oddziałów! www.mikulski-nieruchomosci.pl :: Oferta wysłana z programu mediaRent (media-rent.eu) ::
499 000 PLN
2 47,00 m2 1/10 Zobacz ofertę