
Duży lokal w centrum Szczecina 153m2
LOKAL NA SPRZEDAŻ SZCZECIN, ŚRÓDMIEŚCIE-CENTRUM
Planujesz skredytować to marzenie - zadzwoń.
Lokal usługowy z ogromnym potencjałem zlokalizowany w samym centrum Szczecina tuż obok Placu Lotników. Znany od lat w sportowym środowisku szczecińskim.
Lokal położony w przyziemiu poziom-1, są to pomieszczenia po kotłowni, w których znajdują się rury ciepłownicze - ogrzewające lokal w sezonie grzewczym od października do kwietnia/ maja. Daje to duże oszczędności i niskie koszty utrzymania przy dużej powierzchni.
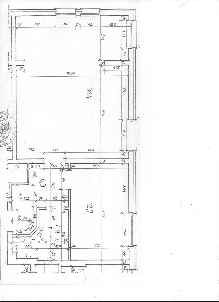
Lokal isytuowany jest na dwóch poziomach, w którym funkcjonowały ścianki wspinaczkowe.
Na powierchnię 153,12m2 składają się
pomieszczenie biurowe
łazienka
miejsce na szatnię
duże pomieszczenie o wysokim sklepieniu (wys. ok5m)
Lokal z wejściem od strony chodnika oraz dostępem do strony zamykanego szlabanem podwórka. Istnieje możliwość montażu windy towarowej przez właz z chodnika (od strony podwórka).
OKOLICA: centrum handlowe Kaskada, restauracje, aleja Fontann, komunikacja miejska: połączenia autobusowe i tramwajowe we wszystkich koerunkach Szczecina,
PRZEZNACZENIE: usługowe np.:siłownia, sala fitness, biuro, magazyn, studio fotograficzne,
Planujesz skredytować to marzenie? Zadzwoń.
Pośredniczymy w transakcjach obrotu nieruchomościami i pomagamy uzyskać kredyt hipoteczny na terenie całej Polski. Posiadamy 8 oddziałów - w Szczecinie, Warszawie, Poznaniu, Gdańsku, Olsztynie, Rzeszowie i Lublinie. Nasi agenci bezpłatnie dojeżdżają do Klientów.
Jesteś zainteresowany niezobowiązującym spotkaniem? Zadzwoń do nas już dziś.
Treść niniejszego ogłoszenia nie stanowi oferty handlowej w rozumieniu Kodeksu Cywilnego. Treść ma charakter informacyjny i zalecamy ich osobistą weryfikację.
Oferta wysłana z programu dla biur nieruchomości ASARI CRM (asaricrm.com)
519 000 PLN
153,00 m2
1/4 Zobacz ofertę