BEZRZECZE DOM SPRZEDAŻ za cenę 1 150 000 zł - DobryAdres.pl - ogłoszenia nieruchomości Szczecin. Sprzedaż mieszkań, domów, działek i lokali użytkowych.

‹ Wróć do listy ofert

Gotowy dom - stan deweloperski- Bezrzecze

Dom na sprzedaż - Bezrzecze

oferta była przeglądana 314 razy

1 150 000 PLN notatnik

cena za m2 8 099 PLN

  • ZDJĘCIA
Gotowy dom - stan deweloperski- Bezrzecze (1)Gotowy dom - stan deweloperski- Bezrzecze (2)Gotowy dom - stan deweloperski- Bezrzecze (3)Gotowy dom - stan deweloperski- Bezrzecze (4)Gotowy dom - stan deweloperski- Bezrzecze (5)
Agata Sworobowicz
(Moje M Agata Pulut)
nr licencji: 10279

tel.: 693700533
email: [email protected]
informacje ogólne
Symbol
MEM22712
Rodzaj rynku
PIERWOTNY
Rodzaj domu
BLIŹNIACZY
Liczba pokoi
5
Powierzchnia całkowita
142, 00 m²
Powierzchnia użytkowa
142, 00 m²
Powierzchnia działki
241, 00 m²
Rok budowy
2025
Ilość pięter [wliczając parter]
2
Standard
DO WYKOŃCZENIA
Materiał ścian
PUSTAK
Rodzaj okien
PCV
Cena za m2
8 098, 59 PLN
Cena cena w innych walutach
1 150 000, 00 PLN
informacje dodatkowe
Typ kuchni
ANEKS KUCHENNY
Liczba łazienek
2
Droga dojazdowa
UTWARDZONA
Źródło c.w.
PIEC GAZOWY
Ogrzewanie
C.O. GAZOWE
Garaż
Taras
instalacje
Energia elektryczna
Podłączony gaz
Podłączony wodociąg
Podłączona kanalizacja
Opis oferty
Oferujemy do sprzedania dom w zabudowie bliźniaczej w standardzie deweloperskim w zacisznej uliczce nowego osiedla na Bezrzeczu. Budynek usytuowany na działce 241m2, o powierzchni 142m2, dwukondygnacyjny, wykończony.
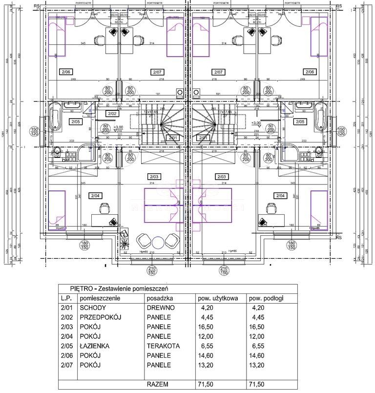
Parter domu stanowi salon 28,25m2 z aneksem kuchennym 7m2, wiatrołap, hol, kotłownia i przedpokój, łazienka; na drugim poziomie znajdują się cztery sypialnie: 12/13,2/14,6/16,5 m2,łazienka 6,5m2 oraz przedpokój. Dodatkowym atutem jest nieużytkowe poddasze o powierzchni 13m2.
Garaż w bryle budynku o powierzchni 20,25m2.

Media:

1/ kanalizacja sanitarna,

2/ kanalizacja deszczowa - zbiornik 6m3

3/ gaz - ogrzewanie podłogowe - cały budynek wraz z garażem, wyprowadzone w każdym pomieszczeniu okablowania do sterowania,

4/ prąd,

5/ woda - sieć miejska

Instalacja elektryczna, TV , Internet - w każdym pomieszczeniu - ok.143 pkt./budynek,

Piec kondensacyjny z zasobnikiem firmy TERMET model INTEGRA II Comfort Plus 25kw.

Budynek z pustakćw , docieplony styropianem 15cm. Wiązary dachowe Roben, dachówka ceramiczna szkliwiona, poddasze docieplone wełną 30cm.


Wyposażenie:
1/ Okna: DRUTEX IGLO ENERGY CLASSIC 3-szybowe - orzech ,dodatkowe poszerzenia /docieplenie/ tarasy, balkony
2/ Brama garażowa: Hormann Renomatic LPU42 2500x2250mm Sangrain 7016 Antracyt
3/ Drzwi Wikęd 90 wzór 26a kolor orzech OPTIMUM model Premium, dodatkowo klinaryt
4/ Podbitka drewniana 3-krotnie malowana SADOLIN Classic ciemny orzech
5/ Podjazdy, tarasy (18m2 - 6m-3m) - kostka brukowa.
6/ Balustrady szklane /okna francuskie/ - szkło hartowane.

Dojazd drogą utwardzoną.

Termin umowy końcowej- wiosna 2025.

Zapraszam na prezentację.



Oferta wysłana z programu dla biur nieruchomości ASARI CRM (asaricrm.com)

Agata Sworobowicz
(Moje M Agata Pulut)
nr licencji: 10279

693700 (pokaż)
[email protected]

telefon

email

nie wypełniaj

zapytanie

Podobne oferty

notatnik
MIERZYN
1 150 000 PLN 101 m2
Mierzyn pompa ciepła, rekuperacja , rolety
DOM NA SPRZEDAŻ MIERZYN,
Na sprzedaż nowoczesny, komfortowy bliźniak w stanie deweloperskim blisko szkoły na Mierzynie Dom oddzielony od sąsiada podwójną ścianą nośną z dylatacją styropianu pomiędzy ( 18+2+18 ) Sprzedaż na podstawie umowy deweloperskiej i rachunku powierniczego. Standard wykończenia: - ogrzewanie i ciepła woda - indywidualna pompa cieplna powietrzna - ogrzewanie podłogowe na parterze i piętrze - system rekuperacji z jednostką - okna i drzwi tarasowe PCV, 3 szybowe - ciepły montaż na taśmach - profil Salamander - drzwi na taras w systemie przesuwnym - HS - na parterze w oknach elektryczne rolety zewnętrzne - drzwi wejściowe w kolorze antracytowym - rozprowadzona instalacje: wodno-kanalizacyjna, elektryczna wraz z okablowaniem pod kamery i alarm - rozprowadzona instalacja internetowa i R-TV. - schody strychowe drewniane, składane - sufit poddasza, płyty karton-gips zatarte na łączeniach - ściany konstrukcyjne murowane, ocieplone styropianem 20 cm. - elewacja - tynk mineralny barwiony w masie / panele PCV imitujące drewno. - dachówka ceramiczna płaską, w kolorze antracyt - rury i rynny PCV w kolorze antracytowym - tynki wewnętrzne gipsowe - ujęcie wody zewnętrzne / ogrodowe - teren wokół budynku wyrównany - ogrodzenie ogródków z tyłu budynku z paneli systemowych - dwa miejsca parkingowe - kostka ażurowa / kostka brukowa Na powierzchnię 100,7 m2 składają się na parterze : - salon z jadalnią o pow. 40 m2 - kuchnia o pow 5 m2 - łazienka z toaletą o pow. 2,1 m2 - wiatrołap o pow. 4,5 m2 Piętro : - pokój o pow. 12 m2 - pokój o pow. 10,4 m2 - pokój o pow. 8,8 m2 - pokój o pow. 7,7 m2 - łazienka razem z toaletą o pow, 4,1 m2 - korytarz o pow. 5,6 m2 Kupujący zwolniony z opłaty PCC, 2 % do Urzędu Skarbowego. Oferta skierowana do najbardziej wymagających Klientów, ceniących wysoki standard wykończenia. Lokalizacja idealna , blisko szkoły podstawowej i przedszkola, ciche spokojne miejsce . Wyłączność nie szukaj dalej, zadzwoń i umów się na prezentację. KUPUJEMY MIESZKANIA Z OBCIĄŻENIAMI I DŁUGAMI ZA GOTÓWKĘ ZADZWOŃ 91 8171717 Nasi Eksperci bezpłatnie pomagają w uzyskaniu kredytu. Powyższe ogłoszenie ma wyłącznie charakter informacyjny. Nie stanowi ono oferty w myśl art. 66 i n. ustawy z dnia 23.04.1964r. Kodeks cywilny (Dz.U. 1964r. Nr 16, poz. 93, ze zm.). Oferta wysłana z programu dla biur nieruchomości ASARI CRM (asaricrm.com)
1 150 000 PLN
5 100,70 m2 Zobacz ofertę
notatnik
SZCZECIN, GUMIEŃCE
1 150 000 PLN 307 m2
Nieruchomość inwestycyjna - dom na sprzedaż.
DOM NA SPRZEDAŻ SZCZECIN, GUMIEŃCE
Na sprzedaż dom w zabudowie bliźniaczej położony w dzielnicy Gumieńce w Szczecinie. - DOPUSZCZAMY w częściowym ROZLICZENIU przyjęcie nieruchomości (dom, mieszkanie, działka budowlana lub rekreacyjna) Dom może być ciekawą ofertą przez wzgląd na lokalizację i konstrukcję, w szczególności jako siedziby firmy lub dla klientów, którzy mogą myśleć o dalszym podziale budynku na mniejsze lokale. Budynek składa się z czterech kondygnacji, posiada dużą klatkę schodową zbudowaną w jednym pionie, wychodzącą poza obrys części użytkowych, co stwarza możliwość korzystania z w pełni niezależnych od siebie poziomów i daje szerokie możliwości szybkiej adaptacji dla różnych potrzeb. BUDYNEK WYJĄTKOWO ATRAKCYJNY JAKO INWESTYCJA Z PRZEZNACZENIEM: Jako siedziba firmy: kondygnacje dają możliwość adaptacji oddzielnych przestrzeni biurowych, socjalnych, magazynowych, wygodnej części odbiorczo-podawczej. Pod wynajem: aktualny podział budynku sprzyja przystosowaniu całej nieruchomości pod wynajem oddzielnych zespołów pomieszczeń, spełniających funkcję "niezależnych mieszkań". Możliwe też jednoczesne wydzielenie niezależnych, niekolidujących ze sobą części: mieszkalnej, usługowej oraz przeznaczonej na wynajem. Pod wyodrębnienie oddzielnych lokali: możliwość szybkiego przystosowania budynku w kierunku podziału pod niezależne lokale. Ulicę, na której znajduje się budynek, objęto planem zagospodarowania przestrzennego przewidującym zabudowę jedynie po jednej stronie. Naprzeciw posesji wylany parking betonowy zapewnia dodatkowe miejsca postojowe. Ulica w bezpośrednim styku z główną drogą miejską. Do niedawna w budynku funkcjonowało pięć niezależnych zespołów pomieszczeń: Piwnice -- Dwa pokoje gościnne z niezależnym wejściem, kuchnią i łazienką, dodatkowo część magazynowa z zaadaptowanego garażu. Parter --- Gabinet kosmetyczny (łazienka, dwa pokoje, miejsce z przyłączami na aneks kuchenny). Parter --- Kawalerka (dwa pokoje, łazienka, kuchnia). Piętro --- Mieszkanie (dwa pokoje, kuchnia, łazienka). Poddasze - Biuro ( 3 pokoje. Wcześniej na kondygnacji łazienka i aneks kuchenny). Dodatkowo pomieszczenia techniczne i gospodarcze oraz dwa tarasy. Na tyłach domu kameralny ogródek. Polecam i zapraszam na prezentację. ********************************************************* INWESTOR NIERUCHOMOŚCI - Agenci PRO Nie znalazłeś oferty, która Cię interesuje? Znajdziemy dla Ciebie najlepszą. ZADZWOŃ, w naszej ofercie posiadamy również niepublikowane nieruchomości. Kupując z nami, otrzymujesz 10% zniżki na zakupy w Leroy Merlin !! Gwarantujemy najlepsze ceny nieruchomości. Bezpłatnie załatwimy Ci najlepszy kredyt hipoteczny. Bezpłatnie wycenimy Twoją nieruchomość. Pomożemy w załatwieniu spraw spadkowych i innych sprawach prawnych. Pomożemy w doborze ekipy remontowej i przeprowadzkowej. Czuj się bezpieczny !!! Posiadamy ubezpieczenie OC na 1.000.000 EURO ********************************************************* Chcesz szybko sprzedać swoją nieruchomość? *** ZADZWOŃ 604 11 12 13 *** PŁACIMY GOTÓWKĄ *** DECYZJA W TYM SAMYM DNIU*** Kupujemy domy, mieszkania, działki. W każdym stanie, również zadłużone, do kapitalnego remontu z trudną sytuacją prawną. Oferta wysłana z programu dla biur nieruchomości ASARI CRM (asaricrm.com)
1 150 000 PLN
11 307,00 m2 Zobacz ofertę
notatnik
Wolin
1 150 000 PLN 135 m2
Wolin - dom wolnostojący w świetnej lokalizacji
DOM NA SPRZEDAŻ Wolin,
Interesująca oferta domu wolnostojącego w Wolinie. Atrakcyjna lokalizacja w pobliżu lasu, a do rzeki kilkaset metrów. Powierzchnia domu wynosi 135 m2, na działce 1058 m2. Na parterze jest salon, kuchnia z jadalnią, przedsionek, kotłownia i garaż, który służy jako pralnia i suszarnia. Piętro składa się z trzech pokoi (oryginalnie z czterech), łazienki i tarasu. Własna energia z zamontowanej fotowoltaiki. Ogrzewanie podłogowe na parterze i w łazience na piętrze. Dodatkowe źródło ciepła stanowi tradycyjny piec na drewno. Woda z własnej studni. Zapraszam na prezentację - tel. do doradcy: 608015252. "Opis nieruchomości zawarty w niniejszej ofercie został sporządzony na podstawie informacji przekazanych nam przez stronę sprzedającą. Zwracamy uwagę, że mogą one zawierać błędy lub nieścisłości. W przypadku zainteresowania ofertą zalecamy osobistą weryfikację tych informacji. Oferta ta nie stanowi oferty w rozumieniu przepisu art. 66 i nast. kodeksu cywilnego." ------------------------------------------ Mikulski Nieruchomości - licencjonowana sieć biur nieruchomości. Baza sprawdzonych nieruchomości. Nasza firma posiada 7 oddziałów. Pracujemy w systemach wymiany ofert z biurami nieruchomości na terenie całej Polski. Posiadamy polisę OC. Obsługujemy teren całego województwa zachodniopomorskiego. Nasz skład liczy blisko 40 osób. Dobierzemy dla Państwa najtańszy kredyt na zakup każdej nieruchomości. Nie musisz kupować z nami nieruchomości, by otrzymać świetny kredyt! W ofercie mamy ponad 20 banków! Zadzwoń po kredyt hipoteczny już dziś: +48 790 588 531 CENTRALA FIRMY: +48 530 855 003 [email protected] Nasze oddziały: Oddział GOLENIÓW ul. M. Konopnickiej 76 72-100 Goleniów Tel. +48 91 418 56 57 Oddział STARGARD ul. Mikołaja Reja 8/1 73-110 Stargard Tel. +48 91 577 07 57 Oddział NOWOGARD ul. Bankowa 3B/1 72-200 Nowogard Tel. +48 91 307 66 87 Oddział SZCZECIN ul. Łaziebna 1, U1/1 70-557 Szczecin Tel. +48 91 307 91 64 Oddział ŚWINOUJŚCIE ul. Gen. J. Bema 7/2 (I piętro) 72-600 Świnoujście Tel. +48 91 307 89 01 Oddział KOŁOBRZEG ul. Mariacka 38/2 78-100 Kołobrzeg Tel. +48 94 700 00 23 Zapraszamy do naszych oddziałów! www.mikulski-nieruchomosci.pl :: Oferta wysłana z programu mediaRent (media-rent.eu) ::
1 150 000 PLN
4 135,00 m2 Zobacz ofertę