Jezierzany LOKAL SPRZEDAŻ za cenę 1 050 000 zł - DobryAdres.pl - ogłoszenia nieruchomości Szczecin. Sprzedaż mieszkań, domów, działek i lokali użytkowych.

‹ Wróć do listy ofert

Jezierzany- kompleks domków nad morzem

Lokal na sprzedaż - Jezierzany, Jarosławiec, ul. Nadmorska

oferta była przeglądana 59 razy

1 050 000 PLN notatnik

cena za m2 783 PLN

  • ZDJĘCIA
  • video
Jezierzany- kompleks domków nad morzem (1)Jezierzany- kompleks domków nad morzem (2)Jezierzany- kompleks domków nad morzem (3)Jezierzany- kompleks domków nad morzem (4)Jezierzany- kompleks domków nad morzem (5)Jezierzany- kompleks domków nad morzem (6)Jezierzany- kompleks domków nad morzem (7)Jezierzany- kompleks domków nad morzem (8)Jezierzany- kompleks domków nad morzem (9)Jezierzany- kompleks domków nad morzem (10)Jezierzany- kompleks domków nad morzem (11)Jezierzany- kompleks domków nad morzem (12)Jezierzany- kompleks domków nad morzem (13)Jezierzany- kompleks domków nad morzem (14)Jezierzany- kompleks domków nad morzem (15)Jezierzany- kompleks domków nad morzem (16)
Renata Dobrowolska
(Mikulski Nieruchomości)
nr licencji: 17866

tel.: 661 797 721
email: [email protected]
informacje ogólne
Symbol
6779/MKN/OS-280271
Rodzaj rynku
WTÓRNY
Cena cena w innych walutach
1 050 000, 00 PLN
informacje dodatkowe
Energia elektryczna
Napięcie 400V (siła)
Opis oferty
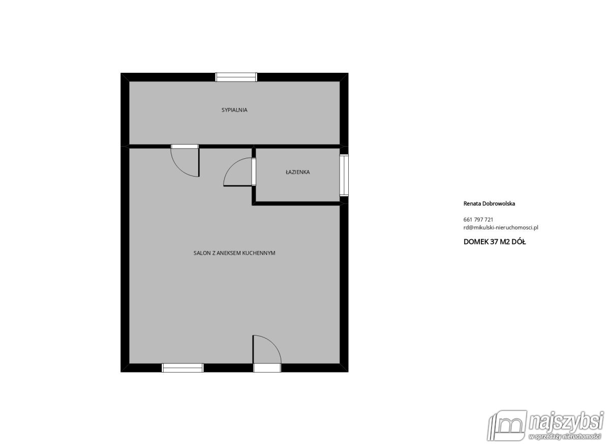
Na sprzedaż - Kompleks domków wypoczynkowych nad morzem i jeziorem Wicko
Oferujemy wyjątkową nieruchomość o powierzchni 0,1341 ha, nr działki 1343/1na której znajdują się:
2 domki dwulokalowe - każdy lokal o powierzchni ok. 37 m2 (parter + antresola) w wykończeniu drewnianym
parter: salon z aneksem kuchennym, sypialnia, łazienka
piętro: dodatkowa sypialnia
wnętrza domków wykończone, lecz bez mebli - aranżacja według własnego pomysłu
możliwość postawienia kolejnych dwóch domków na działce (projekt budowy kolejnych 2 domków)
Dodatkowe atuty:
teren w pełni ogrodzony z przesuwną bramą
bezpośredni dostęp do drogi publicznej
własne ujęcie wody, kanalizacja miejska, monitoring
Lokalizacja:
Jezierzany k. Jarosławca
300 m od jeziora Wicko
ok. 2,5 km od plaży
w pobliżu ścieżki rowerowej EuroVelo10 i licznych atrakcji turystycznych
Cena:
1 050 000 zł
Dodatkowe możliwości inwestycyjne:
zakup sąsiedniej działki nr 1343/2 o identycznym zagospodarowaniu - 1 050 000 zł
zakup kolejnej działki nr 123/19 z 5 w pełni wyposażonymi i prosperującymi domkami - 1 560 000 zł oraz kompletna infrastrukturą
cały kompleks tworzy prosperujący ośrodek wypoczynkowy z możliwością dalszej rozbudowy i aranżacji według własnej wizji
Pośrednik Nieruchomości
Renata Dobrowolska
tel. 661 797 721
"Opis nieruchomości zawarty w niniejszej ofercie został sporządzony na podstawie informacji przekazanych nam przez stronę sprzedającą. Zwracamy uwagę, że mogą one zawierać błędy lub nieścisłości. W przypadku zainteresowania ofertą zalecamy osobistą weryfikację tych informacji. Oferta ta nie stanowi oferty w rozumieniu przepisu art. 66 i nast. kodeksu cywilnego."
------------------------------------------
Mikulski Nieruchomości - licencjonowana sieć biur nieruchomości. Baza sprawdzonych nieruchomości. Nasza firma posiada 7 oddziałów. Pracujemy w systemach wymiany ofert z biurami nieruchomości na terenie całej Polski. Posiadamy polisę OC. Obsługujemy teren całego województwa zachodniopomorskiego. Nasz skład liczy blisko 40 osób.
Dobierzemy dla Państwa najtańszy kredyt na zakup każdej nieruchomości. Nie musisz kupować z nami nieruchomości, by otrzymać świetny kredyt! W ofercie mamy ponad 20 banków! Zadzwoń po kredyt hipoteczny już dziś: +48 790 588 531
CENTRALA FIRMY:
+48 530 855 003
[email protected]
Nasze oddziały:
Oddział GOLENIÓW
ul. M. Konopnickiej 76
72-100 Goleniów
Tel. +48 91 418 56 57
Oddział STARGARD
ul. Mikołaja Reja 8/1
73-110 Stargard
Tel. +48 91 577 07 57
Oddział NOWOGARD
ul. Bankowa 3B/1
72-200 Nowogard
Tel. +48 91 307 66 87
Oddział SZCZECIN
ul. Łaziebna 1, U1/1
70-557 Szczecin
Tel. +48 91 307 91 64
Oddział ŚWINOUJŚCIE
ul. Gen. J. Bema 7/2 (I piętro)
72-600 Świnoujście
Tel. +48 91 307 89 01
Oddział KOŁOBRZEG
ul. Mariacka 38/2
78-100 Kołobrzeg
Tel. +48 94 700 00 23
Zapraszamy do naszych oddziałów!
www.mikulski-nieruchomosci.pl

:: Oferta wysłana z programu mediaRent (media-rent.eu) ::
Renata Dobrowolska
(Mikulski Nieruchomości)
nr licencji: 17866

661 797 7 (pokaż)
[email protected]

telefon

email

nie wypełniaj

zapytanie

Podobne oferty