
Bezczynszowe, przestronne mieszkanie po remoncie
MIESZKANIE NA SPRZEDAŻ SZCZECINEK,
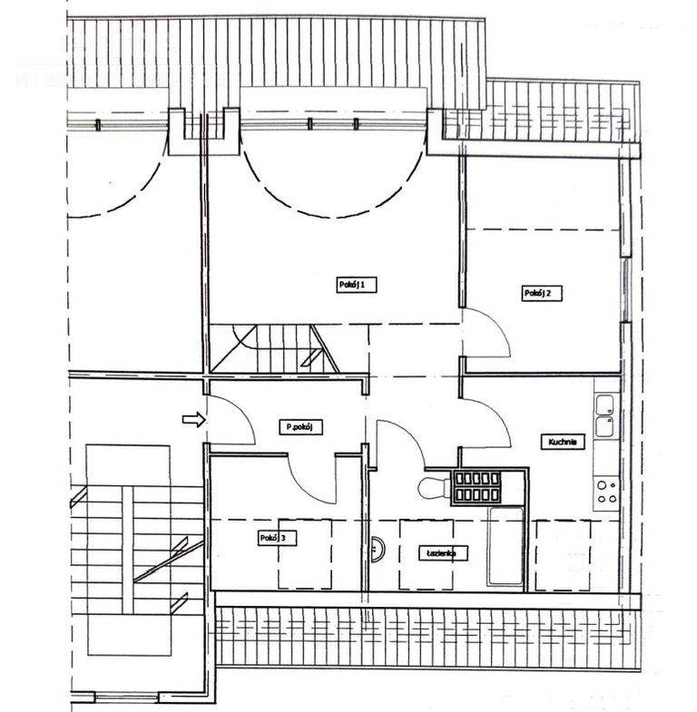
Z przyjemnością prezentujemy ofertę sprzedaży wyjątkowego, 3- pokojowe mieszkania o powierzchni użytkowej 106,06 m2, które znajduje się na 1 pietrze domu przy ul. Artyleryjskiej 18. Mieszkanie przeszło kapitalny remont, który zakończył się 11.2024 r., co sprawia, że jest gotowe do wprowadzenia się bez dodatkowych nakładów finansowych.
W skład lokalu wchodzą:
- salon z balkonem,
-2 pokoje,
- kuchnia,
- łazienka z WC,
- przedpokój.
To jasne i przestronne mieszkanie składa się z komfortowych, dużych pokoi, które można zaaranżować według własnych potrzeb. Duże okna w salonie sprawiają, że wnętrze jest bardzo dobrze doświetlone, co nadaje mu przytulności i ciepła. W kuchni znajdują się nowe meble w zabudowie oraz sprzęt AGD. Na ścianach położone są kafle w jasnym kolorze współgrającym z kolorem mebli, na podłogach panele. Łazienka wyposażona jest w kabinę prysznicową z hydromasażem, nową muszlę klozetową i umywalkę. Znajduje się w niej również pralka. W dużym przedpokoju bez problemu znajdzie się miejsce na pojemną szafę.
Mieszkanie zostało odnowione z najwyższą starannością i dbałością o detale. Jest ono bardzo ciche ponieważ okna wychodzą na podwórze, co zapewniać będzie spokój i komfort jego użytkowania.
W mieszkaniu znajduje się przyłącze TV i internetu firmy Gawex, na drzwiach wejściowych zamontowana jest kamera z systemem dźwiękowym tzw. wideo-wizjer, który daje możliwość podglądu kto oczekuje na otworzenie drzwi mieszkania i chroni niejednokrotnie przed wpuszczeniem do środka niechcianego gościa.
Mieszkanie i woda odgrzewane są przez nowy, dwufunkcyjny kondensacyjny piec firmy Ariston.
Mieszkanie jest bezczynszowe, wysokość opłaty za fundusz remontowy do uzgodnienia, comiesięczna opłata za sprzątanie klatki schodowej wynosi 40 zł., opłata za media liczona jest wg zużycia, opłata za wywóz nieczystości 38 zł. od osoby.
Na tyle budynku znajdują się miejsca parkingowe dla mieszkańców, nowy nabywca mieszkania może również dokupić garaż w cenie 30 tys. zł.
Cena nieruchomości nie podlega negocjacji.
Zapraszam do zapoznania się z oferta i na prezentację nieruchomości.
Działamy na terenie całego województwa zachodniopomorskiego. Posiadamy oddziały - w Szczecinie, Stargardzie i Szczecinku. Nasi Doradcy bezpłatnie dojeżdżają do Klientów.
W naszym biurze możesz skorzystać z następujących usług:
- pośrednictwo w kupnie i najmie nieruchomości,
- pośrednictwo w sprzedaży i wynajmie nieruchomości,
- doradztwo finansowe,
- zarządzanie najmem,
- skup nieruchomości
- kompleksowa obsługa deweloperów.
Jesteś zainteresowany naszą ofertą? Zadzwoń do nas już dziś lub odwiedź naszą stronę www.hestianieruchomosci.pl
Treść niniejszego ogłoszenia nie stanowi oferty handlowej w rozumieniu Kodeksu Cywilnego. Treść ma charakter informacyjny i zalecamy ich osobistą weryfikację. Kontaktując się z biurem Klient wyraża zgodę na przetwarzanie danych osobowych zgodnie z przepisami ustawy z dnia 29 sierpnia 1997 roku o ochronie danych osobowych / Dz.U.Nr. 133 poz. 883/. Klientowi przysługuje prawo do wglądu do swoich danych osobowych i ich aktualizacji.
Oferta wysłana z programu dla biur nieruchomości ASARI CRM (asaricrm.com)
689 500 PLN
3
106,06 m2
1/1 Zobacz ofertę