SZCZECIN LOKAL SPRZEDAŻ za cenę 1 763 000 zł - DobryAdres.pl - ogłoszenia nieruchomości Szczecin. Sprzedaż mieszkań, domów, działek i lokali użytkowych.

‹ Wróć do listy ofert Następna oferta

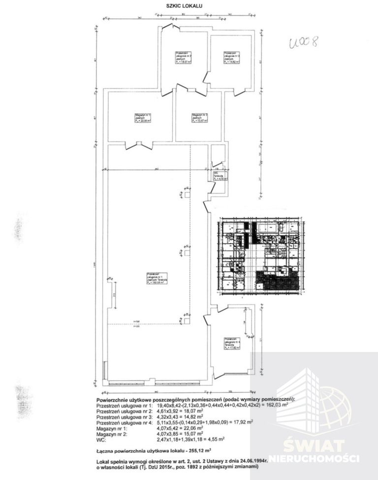
Lokal na sprzedaż 255m2 -Szczecin Gumieńce

Lokal na sprzedaż - Szczecin, Gumieńce

oferta była przeglądana 110 razy

1 763 000 PLN notatnik

cena za m2 6 910 PLN

  • ZDJĘCIA
Lokal na sprzedaż 255m2 -Szczecin Gumieńce (1)Lokal na sprzedaż 255m2 -Szczecin Gumieńce (2)Lokal na sprzedaż 255m2 -Szczecin Gumieńce (3)Lokal na sprzedaż 255m2 -Szczecin Gumieńce (4)Lokal na sprzedaż 255m2 -Szczecin Gumieńce (5)
Aleksandra Daniel
(Świat Nieruchomości Tomasz Siwicki)
nr licencji: 24888

tel.: 798 949 288
email: [email protected]
informacje ogólne
Symbol
SWN32338
Rodzaj rynku
WTÓRNY
Rodzaj lokalu / przeznaczenie
HANDLOWO-USŁUGOWY
Powierzchnia całkowita
255, 12 m²
Parter
Ilość pięter [wliczając parter]
7
Rodzaj budynku
MIESZKALNO-BIUROWY
Rok budowy
2020
Cena za m2
6 910, 00 PLN
Cena cena w innych walutach
1 763 000, 00 PLN
informacje dodatkowe
Forma własności
WŁASNOŚĆ
Instalacje w lokalu
KOMPUTEROWA
Garaż
Opis oferty
Na sprzedaż oferujemy przestronny i funkcjonalny lokal użytkowy o imponującej powierzchni 255 m², który doskonale sprawdzi się pod różnego rodzaju działalności gospodarcze.
Obecnie w lokalu znajduje się magazyn z biurem, a czas wydania wynosi około dwóch miesięcy. To idealna propozycja inwestycyjna, dostępna do zakupu od zaraz.


Lokal położony jest na parterze.
Wnętrze to przestronny open space, który można dowolnie zaaranżować, a także pomieszczenia dodatkowe, takie jak kuchnia, biuro oraz toaleta. Lokal znajduje się w prężnie rozwijającej się dzielnicy, w otoczeniu dużego osiedla oraz licznych, dobrze prosperujących lokali z różnych branż.


Podana cena jest ceną netto do której należy doliczyć podatek VAT w wysokości 23%. Czynsz za lokal wynosi jedynie 2,99 zł netto za m², do którego doliczyć należy koszty mediów.
Dodatkowo lokal jest wyposażony w światłowód oraz objęty monitoringiem, co zwiększa komfort użytkowania.


Istnieje możliwość wynajęcia miejsca parkingowego w garażowcu w cenie 400 zł miesięcznie lub zakupu miejsca w garażu za 65 000 zł. Dostępne są także miejsca postojowe na zewnątrz w cenie 30 000 zł.


Zapraszamy na prezentację, którą można zorganizować praktycznie każdego dnia. To świetna oferta i doskonała inwestycja – polecamy!




Tworzymy Twój Świat Nieruchomości – bezpiecznie i skutecznie.
Aleksandra Daniel
(Świat Nieruchomości Tomasz Siwicki)
nr licencji: 24888

798 949 (pokaż)
[email protected]

telefon

email

nie wypełniaj

zapytanie

Podobne oferty

notatnik
ŚWINOUJŚCIE
1 760 800 PLN 220 m2
3 Lokale użytkowe 220 m2 centrum Świnoujścia
LOKAL NA SPRZEDAŻ ŚWINOUJŚCIE,
Sprzedam 3 lokale użytkowe o łącznej powierzchni 220,1 m2 położony w Świnoujściu. Lokale znajdują się na parterze na nowym osiedlu w Galerii Handlowej. Do sprzedania 4 lokale o łącznej powierzchni 220,1 m2. * Przeznaczenie obiektu handlowo-usługowe, gastronomiczne oraz biurowe. - Otwarta przestrzeń * Lokale wyposażone we wszystkie niezbędne instalacje: - wentylacja - przeciwpożarowa - telefon - internet Opłaty związane z utrzymaniem lokalów to : prąd wg. liczników, woda, ogrzewanie z sieci miejskiej rozliczane wg. liczników oraz czynsz do zarządcy budynku 1080 zł miesięcznie. Lokale mają założone osobne księgi wieczyste. Metraże poszczególnych lokali: 108,5 m2, 61,1 m2, 50,5 m2. Polecam ze względu na super lokalizację w ścisłym centrum Świnoujścia. Serdecznie zapraszam na prezentację Biuro Nieruchomości "PATRIA" - to zaufana marka na rynku nieruchomości. Istniejemy od ponad 30 lat. Zapraszamy na naszą stronę internetową: www.patria.szczecin.pl. Dla każdej osoby zainteresowanej nabyciem nieruchomości oferujemy bezpłatne badanie zdolności kredytowej oraz darmową konsultację z pracownikiem ogólnopolskiej firmy doradztwa kredytowego. O szczegóły zapytaj agenta odpowiedzialnego za to ogłoszenie. Chcesz szybko sprzedać mieszkanie, dom, lokal, pozbyć się problemu, ponieważ potrzebujesz pieniędzy? Podziel się z nami informacją, jaką nieruchomość chciałbyś sprzedać, skontaktujemy się z Tobą i omówimy szczegóły. Decyzję o zakupie podejmujemy najszybciej jak to możliwe. Skupujemy nieruchomości w każdym stanie technicznym, także zadłużone i w trakcie komorniczej egzekucji. Powyższe informacje zawierające między innymi cenę nieruchomości mają charakter wyłącznie informacyjny. Nie stanowią one oferty w rozumieniu art. 66 i n. ustawy z dnia 23. 04. 1964 r. Kodeks cywilny (Dz.U. 1964 r. Nr 16, poz. 93, ze zmianami.). Oferta wysłana z programu dla biur nieruchomości ASARI CRM (asaricrm.com)
1 760 800 PLN
2 220,10 m2 Parter/4 Zobacz ofertę