SZCZECIN LOKAL SPRZEDAŻ za cenę 733 000 zł - DobryAdres.pl - ogłoszenia nieruchomości Szczecin. Sprzedaż mieszkań, domów, działek i lokali użytkowych.

‹ Wróć do listy ofert

Lokal w stanie deweloperskim-Szczecin Gumieńce

Lokal na sprzedaż - Szczecin, Gumieńce

oferta była przeglądana 111 razy

733 000 PLN notatnik

cena za m2 7 315 PLN

  • ZDJĘCIA
Lokal w stanie deweloperskim-Szczecin Gumieńce (1)Lokal w stanie deweloperskim-Szczecin Gumieńce (2)Lokal w stanie deweloperskim-Szczecin Gumieńce (3)Lokal w stanie deweloperskim-Szczecin Gumieńce (4)Lokal w stanie deweloperskim-Szczecin Gumieńce (5)Lokal w stanie deweloperskim-Szczecin Gumieńce (6)
Aleksandra Daniel
(Świat Nieruchomości Tomasz Siwicki)
nr licencji: 24888

tel.: 798 949 288
email: [email protected]
informacje ogólne
Symbol
SWN32334
Rodzaj rynku
PIERWOTNY
Rodzaj lokalu / przeznaczenie
HANDLOWO-USŁUGOWY
Powierzchnia całkowita
100, 00 m²
Parter
Ilość pięter [wliczając parter]
7
Rodzaj budynku
MIESZKALNO-BIUROWY
Rok budowy
2020
Cena za m2
7 315, 00 PLN
Cena cena w innych walutach
733 000, 00 PLN
informacje dodatkowe
Forma własności
WŁASNOŚĆ
Instalacje w lokalu
KOMPUTEROWA
Garaż
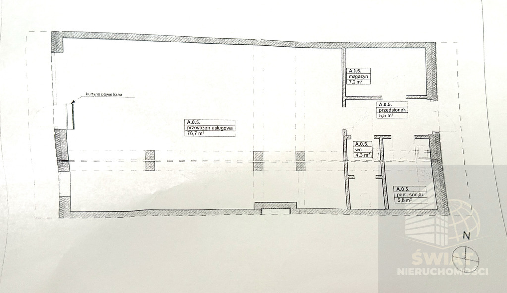
Opis oferty
Lokal na sprzedaż - stan deweloperski, 100 m² - idealny pod różne działalności


Na sprzedaż lokal o powierzchni 100 m², położony w dynamicznie rozwijającej się dzielnicy, w doskonałej lokalizacji z dużym potencjałem inwestycyjnym. Lokal znajduje się na parterze budynku, z dwoma niezależnymi wejściami, co zapewnia wygodę i elastyczność w aranżacji przestrzeni.

Parametry lokalu:

- Powierzchnia: 100,21 m²,
- Wysokość pomieszczeń: 3,7 m,
- Wejście z poziomu parteru z dwóch stron,
- Duże okna– zapewniające dużo naturalnego światła i widoczność z ulicy,
- WC,
- Stan deweloperski– lokal gotowy do aranżacji według indywidualnych potrzeb,
- Przestrzeń idealna pod różne działalności (biuro, sklep, usługi, etc.).


Dodatkowe atuty:

- Dogodna lokalizacja – w pobliżu liczne prężnie działające lokale z różnych branż, duże osiedle mieszkaniowe,
- Wysoka widoczność– idealne miejsce dla Twojej działalności, z dużym ruchem pieszym,
- Wysoka jakość infrastruktury – światłowód, monitoring itp.,
- Możliwość aranżacji lokalu zgodnie z potrzebami najemcy,
- Dostępność od zaraz!


Podana cena jest ceną netto. Należy doliczyć 23% VAT
Czynsz: 2,99 zł netto za m² + media


Miejsca postojowe:

- Miejsce w garażu: 400 zł/miesiąc (wynajem) lub 65 000 zł (zakup),
- Miejsce postojowe na zewnątrz: 30 000 zł.


Idealna inwestycja!
Lokal znajduje się w sercu prężnie rozwijającej się dzielnicy z dużym potencjałem wzrostu. To świetna okazja dla inwestora szukającego nieruchomości, która zapewni stabilny dochód lub doskonałe warunki do prowadzenia własnej działalności.


Zapraszamy na prezentację, która jest możliwa niemal codziennie. To wyjątkowa okazja, którą warto rozważyć!
Polecamy serdecznie!




Tworzymy Twój Świat Nieruchomości – bezpiecznie i skutecznie.
Aleksandra Daniel
(Świat Nieruchomości Tomasz Siwicki)
nr licencji: 24888

798 949 (pokaż)
[email protected]

telefon

email

nie wypełniaj

zapytanie

Podobne oferty

notatnik
CHOJNA
740 000 PLN 151 m2
Lokal handlowo-usługowy z ogródkiem restauracyjnym
LOKAL NA SPRZEDAŻ CHOJNA,
Zapraszamy do zapoznania się z ofertą sprzedaży lokalu pod restauracje, usługi, sklep, biuro, z jednoczesną możliwością zamieszkania, zlokalizowanego w miejscowości Chojna. LOKALIZACJA: Lokal znajduje się w atrakcyjnej części Chojny, na uliczce gdzie znajduje się pasaż handlowy w sąsiedztwie wielu innych lokali usługowych, szkoła, internat oraz duża liczba miejsc parkingowych. OPIS LOKALU: Lokal o łącznej powierzchni 151 m2 składa się z trzech kondygnacji: Parter (76 m2): Sala sprzedaży/usług (około 65 m2): Duży open space z możliwością adaptacji do własnych potrzeb. Aktualnie znajduje się tam kuchnia z meblami w zabudowie posiadająca markowe sprzęty AGD sprawna i gotowa do użytku. Pomieszczenie posiada duże witryny idealne na wywieszenie reklam oraz wejście bezpośrednio z ulicy. Dodatkowo z witryn mamy bezpośredni widok na przynależny do mieszkania ogródek restauracyjny przed lokalem idealny na potykaczce, stoliki czy prywatne miejsca parkingowe. Toaleta: Dostosowana do potrzeb użytkowników. Klatka schodowa: Prowadząca na piętro. Kotłownia: Wyposażona w piec na olej opałowy, z wyjściem na ogród(około 100 m2). Piętro użytkowe (75 m2): Trzy pomieszczenia mieszkalne/biurowe: Mogą pełnić funkcję sypialni, biur lub innych pomieszczeń według potrzeb. Łazienka: Wyposażona w prysznic. Toaleta: Dodatkowe udogodnienie dla mieszkańców lub pracowników. Strych: Pomieszczenie wykończone deską, gotowe do adaptacji na dodatkowy pokój. INNE ATUTY: Lokal jest w bardzo dobrym stanie technicznym, gotowy do natychmiastowego użytkowania. Z tyłu budynku znajduje się ogród o powierzchni około 100 m2, co stanowi dodatkową przestrzeń do relaksu lub rekreacji. Przed lokalem znajduje się własnościowe miejsce o powierzchni około 20 m2 do dowolnego wykorzystania. Zapraszamy do kontaktu w celu umówienia się na prezentację tej wyjątkowej nieruchomości. To doskonała oferta dla osób szukających przestrzeni do prowadzenia działalności gospodarczej z możliwością komfortowego zamieszkania w jednym miejscu. SKUP MIESZKAŃ - DOMY -DZIAŁKI - LOKALE ZA GOTÓWKĘ ! TEL 511 260 740 K O M F O R T. N I E R U C H O M O S C I. P L POSIADAMY LICENCJE POLSKIEJ FEDERACJI RYNKU NIERUCHOMOŚCI NR 20405 17 LAT DOŚWIADCZENIA NA RYNKU NIERUCHOMOŚCI ! TYSIĄCE ZADOWOLONYCH KLIENTÓW. Z NAMI JESTEŚ UBEZPIECZONY ! Treść niniejszego ogłoszenia nie stanowi oferty handlowej w rozumieniu Kodeksu Cywilnego. Treść ma charakter informacyjny i zalecamy ich osobistą weryfikację. Kontaktując się z biurem Klient wyraża zgodę na przetwarzanie danych osobowych zgodnie z przepisami ustawy z dnia 29 sierpnia 1997 roku o ochronie danych osobowych / Dz.U.Nr. 133 poz. 883/. Klientowi przysługuje prawo do wglądu do swoich danych osobowych i ich aktualizacji. Oferta wysłana z programu dla biur nieruchomości ASARI CRM (asaricrm.com)
740 000 PLN
151,00 m2 Parter/2 Zobacz ofertę