
Białuń k. Goleniowa, umeblowany dom z 2022 r.
DOM NA SPRZEDAŻ Białuń,
Dom na sprzedaż - Białuń, ul. Słoneczna
Oferuję na sprzedaż nowoczesny dom wolnostojący wybudowany w 2022 r., wykończony w wysokim standardzie, o powierzchni użytkowej (łącznie z garażem) 184,29 m2, zlokalizowany na ładnie zagospodarowanej działce o powierzchni 1005 m2. Posesja znajduje się w drugiej linii zabudowy, co gwarantuje spokój i kameralność. Wjazd na działkę przez automatyczną bramę.
Budowa i wykończenie
automatyczna brama garażowa wyposażona w zasilanie awaryjne (UPS),
ściany z bloczków Solbet 24 cm,
dach pokryty dachówką ceramiczną Roben,
okna plastikowe (3-szybowe),
oryginalne, drewniane drzwi wejściowe,
wewnętrzne parapety drewniane,
ocieplenie budynku: 15 cm szary` styropian; ocieplenie dachu wełną mineralną,
ogrzewanie gazowe podłogowe w całym budynku, również w garażu,
oddzielne rozdzielnie dla parteru i poddasza oraz termostaty w poszczególnych pomieszczeniach,
przygotowane okablowanie pod system alarmowy, montaż kamer,
wyprowadzone wyjście do podłączenia agregatu prądotwórczego (możliwość zasilenia całego domu w razie awarii prądu),
zainstalowany zmiękczacz wody,
podlicznik do wody ogrodowej,
podjazd z kostki brukowej,
zadaszony taras.
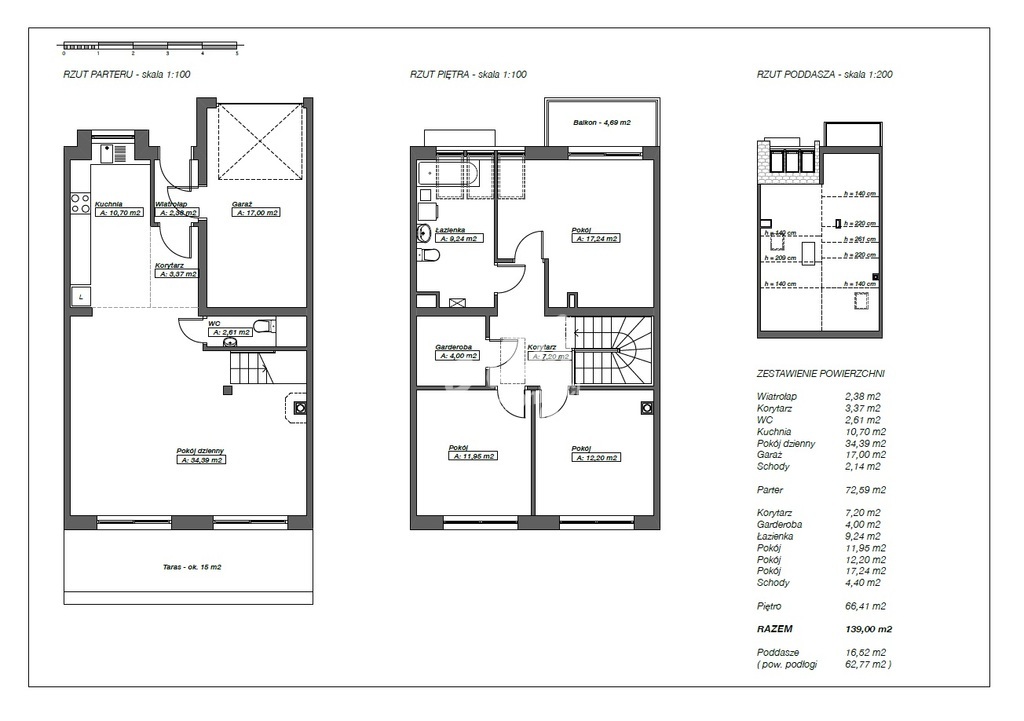
Rozkład i metraże
Parter (116,01 m2):
pokój dzienny + jadalnia: 28,02 m2
kuchnia: 8,41 m2
hol: 9,48 m2
sypialnia: 16,07 m2
WC: 4,55 m2
pom. gospodarcze: 4,51 m2
wiatrołap: 3,35 m2
garaż: 32,78 m2
kotłownia-suszarnia: 8,84 m2
Poddasze (pow. użytkowa 68,28 m2 / pow. po podłodze ok. 99,29 m2):
hol: 9,02 m2
pokój 1: 8,49 m2 (po podłodze 11,17 m2)
łazienka: 7,35 m2 (po podłodze 8,91 m2)
pokój 2: 14,20 m2 (po podłodze 17,17 m2)
pokój 3: 8,70 m2 (po podłodze 10,98 m2)
pokój 4: 20,52 m2 (po podłodze 42,01 m2)
Wyposażenie
Dom sprzedawany z pełnym umeblowaniem i wyposażeniem AGD - gotowy do zamieszkania.
Atuty lokalizacji
Białuń to spokojna miejscowość w gminie Goleniów - idealna dla osób ceniących ciszę, z łatwym dostępem do większych ośrodków i dobrymi połączeniami drogowymi. Lokalizacja gwarantuje komfort życia z jednym z najlepszych kompromisów: życie w spokojnej, zielonej okolicy i szybki dojazd do usług, pracy i komunikacji.
Odległości i czas dojazdu samochodem (przybliżone)
Wszystkie podane poniżej odległości są drogowe (kilometry) - czasy to orientacyjne wartości przy umiarkowanym ruchu drogowy (bez dużych korków, zdarzeń drogowych).
do centrum Goleniów: około 8 km - około 10 minut
do stacji PKP (stacja Białuń / połączenia przez Goleniów): stacja Białuń znajduje się w obrębie miejscowości - dojście/wjazd do stacji: poniżej 1 km / 2-5 minut samochodem
do szkoły podstawowej w Białuniu (Szkoła Podstawowa im. Marka Kotańskiego, ul. Sielankowa 4): w obrębie miejscowości - poniżej 0,5 km
do lokalnego sklepu spożywczego - poniżej 0,5 km
do marketu Dino poniżej 1 km / 2-5 minut samochodem
do Szczecina (centrum): około 28-37 km w zależności od punktu docelowego w Szczecinie - czas przejazdu samochodem około 30-40 minut (przy umiarkowanym ruchu)
do Kołobrzegu: około 94-100 km - czas przejazdu samochodem około 55 minut (przejazd głównie drogą S6/DK6, w zależności od odcinka i ruchu)
do Świnoujścia: około 72-77 km - czas przejazdu samochodem około 50-75 minut (w zależności od trasy i ruchu, czasami poniżej 1 godz.)
Dostęp do dróg ekspresowych
najbliższe węzły drogi ekspresowej S6 i S3 to węzły przy Goleniowie (np. Węzeł Goleniów Północ / Goleniów Zachód / Goleniów Południe)
Dlaczego warto
Dom łączy nowoczesne rozwiązania techniczne (ogrzewanie podłogowe, termostaty w pomieszczeniach, instalacje przygotowane pod systemy bezpieczeństwa i agregat) z solidnymi materiałami (Solbet, dachówka Roben, potrójne szyby) oraz dużą, prywatną działką. Budynek jest praktyczny - gotowy do zamieszkania od razu (sprzedaż z pełnym umeblowaniem i sprzętem AGD) - co czyni ofertę atrakcyjną zarówno dla rodzin, jak i osób pracujących zdalnie.
Kontakt
Ewelina Olejniczak tel. 530 855 033
"Opis nieruchomości zawarty w niniejszej ofercie został sporządzony na podstawie informacji przekazanych nam przez stronę sprzedającą. Zwracamy uwagę, że mogą one zawierać błędy lub nieścisłości. W przypadku zainteresowania ofertą zalecamy osobistą weryfikację tych informacji. Oferta ta nie stanowi oferty w rozumieniu przepisu art. 66 i nast. kodeksu cywilnego."
------------------------------------------
Mikulski Nieruchomości - licencjonowana sieć biur nieruchomości. Baza sprawdzonych nieruchomości. Nasza firma posiada 7 oddziałów. Pracujemy w systemach wymiany ofert z biurami nieruchomości na terenie całej Polski. Posiadamy polisę OC. Obsługujemy teren całego województwa zachodniopomorskiego. Nasz skład liczy blisko 40 osób.
Dobierzemy dla Państwa najtańszy kredyt na zakup każdej nieruchomości. Nie musisz kupować z nami nieruchomości, by otrzymać świetny kredyt! W ofercie mamy ponad 20 banków! Zadzwoń po kredyt hipoteczny już dziś: +48 790 588 531
CENTRALA FIRMY:
+48 530 855 003
[email protected]
Nasze oddziały:
Oddział GOLENIÓW
ul. M. Konopnickiej 76
72-100 Goleniów
Tel. +48 91 418 56 57
Oddział STARGARD
ul. Mikołaja Reja 8/1
73-110 Stargard
Tel. +48 91 577 07 57
Oddział NOWOGARD
ul. Bankowa 3B/1
72-200 Nowogard
Tel. +48 91 307 66 87
Oddział SZCZECIN
ul. Łaziebna 1, U1/1
70-557 Szczecin
Tel. +48 91 307 91 64
Oddział ŚWINOUJŚCIE
ul. Bolesława Chrobrego 5B
72-600 Świnoujście
Tel. +48 91 307 89 01
Oddział KOŁOBRZEG
ul. Mariacka 38/2
78-100 Kołobrzeg
Tel. +48 94 700 00 23
Zapraszamy do naszych oddziałów!
www.mikulski-nieruchomosci.pl
:: Oferta wysłana z programu mediaRent (media-rent.eu) ::
1 300 000 PLN
6
184,29 m2 Zobacz ofertę