Nowogard MIESZKANIE SPRZEDAŻ za cenę 263 000 zł - DobryAdres.pl - ogłoszenia nieruchomości Szczecin. Sprzedaż mieszkań, domów, działek i lokali użytkowych.

‹ Wróć do listy ofert

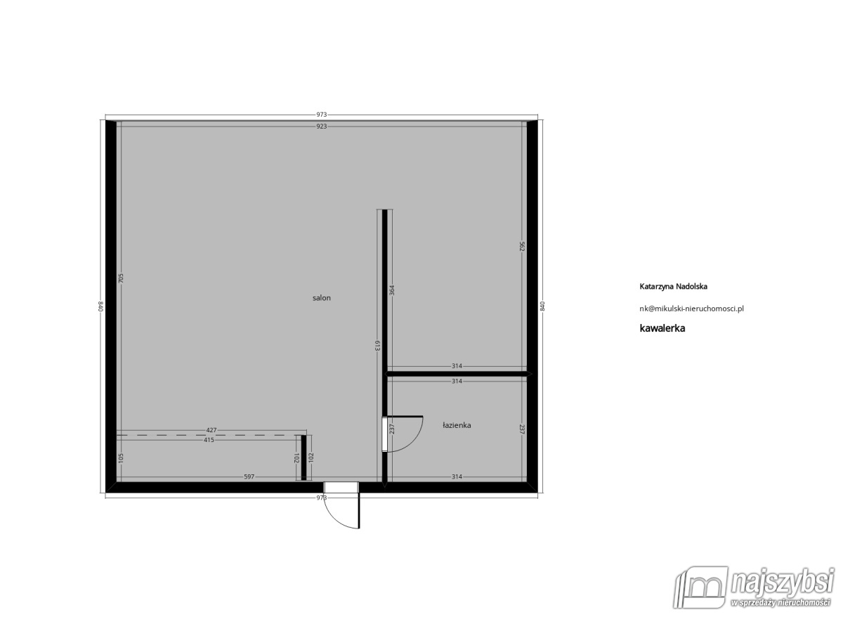
Nowogard - idealna mieszkanie pod inwestycję

Mieszkanie na sprzedaż - Nowogard, Centrum

oferta była przeglądana 395 razy

263 000 PLN notatnik

cena za m2 8 155 PLN

  • ZDJĘCIA
Nowogard - idealna mieszkanie pod inwestycję (1)Nowogard - idealna mieszkanie pod inwestycję (2)Nowogard - idealna mieszkanie pod inwestycję (3)Nowogard - idealna mieszkanie pod inwestycję (4)Nowogard - idealna mieszkanie pod inwestycję (5)Nowogard - idealna mieszkanie pod inwestycję (6)Nowogard - idealna mieszkanie pod inwestycję (7)Nowogard - idealna mieszkanie pod inwestycję (8)
Katarzyna Nadolska
(Mikulski Nieruchomości)
nr licencji: 17866

tel.: 515 383 024
email: [email protected]
informacje ogólne
Symbol
14966/MKN/MS-279955
Rodzaj rynku
WTÓRNY
Liczba pokoi
1
Powierzchnia całkowita
32, 25 m²
Piętro
2
Ilość pięter
4
Standard
BARDZO DOBRY
Rodzaj budynku
TYPOWE
Rok budowy
1980
Cena cena w innych walutach
263 000, 00 PLN
wyposażenie
Umeblowanie
PEŁNE
Energia elektryczna
Podłączony gaz
informacje dodatkowe
Forma własności
PEŁNA WŁASNOŚĆ
Opis oferty
*****Interesująca oferta******
***Duża kawalerka 32,25m2 z wnęką sypialnianą położona w centrum Nowogardu***
SALON Z ANEKSEM KUCHENNYM, ŁAZIENKA I SYPIALNIA (CZĘŚCIOWO OTWARTA NA SALON).
- II piętro w bloku
- mieszkanie po generalnym remoncie 8 lat temu
-ogrzewanie z sieci miejskiej + bojler elektryczny na wodę
- niski czynsz 350zł przy 1os.
-piwnica

Bardzo dobra lokalizacja, w pobliżu cała intrastruktura.
cena do negocjacji
Klucze w biurze
Katarzyna Nadolska tel. 515 383 024
"Opis nieruchomości zawarty w niniejszej ofercie został sporządzony na podstawie informacji przekazanych nam przez stronę sprzedającą. Zwracamy uwagę, że mogą one zawierać błędy lub nieścisłości. W przypadku zainteresowania ofertą zalecamy osobistą weryfikację tych informacji. Oferta ta nie stanowi oferty w rozumieniu przepisu art. 66 i nast. kodeksu cywilnego."
------------------------------------------
Mikulski Nieruchomości - licencjonowana sieć biur nieruchomości. Baza sprawdzonych nieruchomości. Nasza firma posiada 7 oddziałów. Pracujemy w systemach wymiany ofert z biurami nieruchomości na terenie całej Polski. Posiadamy polisę OC. Obsługujemy teren całego województwa zachodniopomorskiego. Nasz skład liczy blisko 40 osób.
Dobierzemy dla Państwa najtańszy kredyt na zakup każdej nieruchomości. Nie musisz kupować z nami nieruchomości, by otrzymać świetny kredyt! W ofercie mamy ponad 20 banków! Zadzwoń po kredyt hipoteczny już dziś: +48 790 588 531
CENTRALA FIRMY:
+48 530 855 003
[email protected]
Nasze oddziały:
Oddział GOLENIÓW
ul. M. Konopnickiej 76
72-100 Goleniów
Tel. +48 91 418 56 57
Oddział STARGARD
ul. Mikołaja Reja 8/1
73-110 Stargard
Tel. +48 91 577 07 57
Oddział NOWOGARD
ul. Bankowa 3B/1
72-200 Nowogard
Tel. +48 91 307 66 87
Oddział SZCZECIN
ul. Łaziebna 1, U1/1
70-557 Szczecin
Tel. +48 91 307 91 64
Oddział ŚWINOUJŚCIE
ul. Bolesława Chrobrego 5B
72-600 Świnoujście
Tel. +48 91 307 89 01
Oddział KOŁOBRZEG
ul. Mariacka 38/2
78-100 Kołobrzeg
Tel. +48 94 700 00 23
Zapraszamy do naszych oddziałów!
www.mikulski-nieruchomosci.pl

:: Oferta wysłana z programu mediaRent (media-rent.eu) ::
Katarzyna Nadolska
(Mikulski Nieruchomości)
nr licencji: 17866

515 383 0 (pokaż)
[email protected]

telefon

email

nie wypełniaj

zapytanie

Podobne oferty

notatnik
SZCZECIN, ARKOŃSKIE
269 000 PLN 26 m2
[3D] Kawalerka, duże okna na zachód, koło szpitala
MIESZKANIE NA SPRZEDAŻ SZCZECIN, ARKOŃSKIE
Obejrzyj mieszkanie nie wychodząc z domu! - zapraszam do zapoznania się z wirtualną prezentacją. Mieszkanie spółdzielcze własnościowe - możliwość nabycia przez obywateli spoza UE bez zezwolenia. Do sprzedaży kawalerka o pow. 26m2 położona na 11 piętrze w ocieplonym budynku z 1978r. W jej skład wchodzą: - pokój (ok. 14m2) z dużymi oknami od strony zachodniej, - widna, oddzielna kuchnia (ok. 6,5m2), - łazienka z wanną i miejscem na pralkę, - przedpokój. Mieszkanie bardzo ciepłe, niskie koszty ekploatacyjne. Położenie na ostatniej kondygnacji gwarantuje większą prywatność oraz brak odgłosów z mieszkania powyżej. Mieszkanie w podstawowym stanie technicznym, na podłogach w pokojach panele, a w pomieszczeniach użytkowych terakota. Ciepła woda i ogrzewanie z sieci miejskiej. Bardzo dobry dostęp do komunikacji miejskiej - autobusy i tramwaje w odległości 2 minut. W pobliżu również sklepy i inne punkty użyteczności publicznej. Polecam! Świadectwo charakterystyki energetycznej - zapotrzebowanie na energię: EU - użytkową (kWh/m2*rok): 161.20; EK - końcową (kWh/m2*rok): 214.64; EP - nieodnawialną energię pierwotną (kWh/m2*rok): 177.33; EC02 - Wielkość emisji CO2 (t C02/m2*rok): 0.07; UOZE - Udział odnawialnych źródeł energii w zapotrzebowaniu na energię końcową [%]: 99.54; Oferta wysłana z programu dla biur nieruchomości ASARI CRM (asaricrm.com)
269 000 PLN
1 26,00 m2 11/11 Zobacz ofertę
notatnik
POLICE
271 256 PLN 33 m2
Police 1 pokój II p. 33,08 m2 271256 zł
MIESZKANIE NA SPRZEDAŻ POLICE,
Police, mieszkanie 1-- pokojowe o powierzchni 33,08 m2 położone na II piętrze III piętrowego budynku wielorodzinnego z windą. Możliwość kupna miejsca postojowego w garażu podziemnym w cenie 26000 zł lub miejsca postojowego naziemnego w cenie 18000 zł. Zestawienie powierzchni: - pokój - 18,11 m2 - kuchnia - 6,48 m2 - łazienka - 3,99 m2, - przedpokój - 4,50 m2. Z pokoju wyjście na balkon. Standard wykończenia: Tradycyjna metoda budowy, ławy żelbetowe wylewane, ściany fundamentowe - bloczki betonowe. Ściany zewnętrzne, wewnętrzne oraz konstrukcyjne - silikat. Ściany działowe - beton komórkowy. Konstrukcja dachu - drewniana z folią paroprzepuszczalną. Pokrycie dachu - dachówka cementowa lub ceramiczna. Ocieplenie ścian budynku - styropian elewacyjny z mineralną wyprawą elewacyjną. Okna PCV bez szprosów 3-szybowe. Parapety zewnętrzne - stalowe lub PCV. Podłoża pod posadzki - betonowe. Parapety wewnętrzne - post forming. Instalacje - elektryczna, wodna, kanalizacyjna (bez rozprowadzeń), domofonowa, centralnego ogrzewania, grzejniki panelowe. Tynki gipsowe bez szpachlowania. Ocieplenie konstrukcji dachu wełną mineralną lub pianą PUR wraz z folią. Drzwi wejściowe do mieszkań w cenie lokalu. Drzwi wewnętrzne - brak. Klatki schodowe - schody żelbetowe obłożone płytkami, balustrada stalowa, ściany tynkowane i malowane, dźwigi osobowe. Płyta balkonowa wykończona powłoką malarską. Police, znajdują się w zachodniej części woj. zachodniopomorskiego, we wschodniej części powiatu polickiego. Miasto wchodzi w skład aglomeracji szczecińskiej. Bardzo dobrze skomunikowane ze Szczecinem. Od 2026 roku ruszy szybka kolej miejska, co jeszcze bardziej ułatwi transport. W ramach inwestycji powstaje budynek z 36 mieszkaniami 4-kondygnacyjny o zróżnicowanych powierzchniowo mieszkaniach oraz garaże i lokale usługowe na parterze budynku. Mieszkania na I poziomie mieszkalnym będą miały przynależne powierzchni tarasowe. Pozostałe mieszkania w większości będą miały balkony. Każde z mieszkań posiada funkcjonalny układ i dobre nasłonecznienie. Nieruchomość jest bardzo dobrze skomunikowane a jednocześnie położone w drugiej linii zabudowy, co powoduje że nie dociera szum ruchu ulicznego. W ramach inwestycji udzielana będzie nabywcy gwarancji jakości na lokal. Gwarancja obejmuje roboty budowlane na okres 3 lat oraz 12 miesięcy na materiały budowlane lub według gwarancji producenta. Faktoria Małgorzata Stankiewicz-Bartz Biuro Nieruchomości pl. Lotników 6/2 (blisko ul. Kaszubskiej) 70-414 Szczecin +48501750242 +48(91)4888052 Oferta wysłana z programu dla biur nieruchomości ASARI CRM (asaricrm.com)
271 256 PLN
1 33,08 m2 2/3 Zobacz ofertę
notatnik
Stargard, Pyrzyckie
270 000 PLN 34 m2
STARGARD - stan deweloperski
MIESZKANIE NA SPRZEDAŻ Stargard, Pyrzyckie
KUPUJĄCY NIE PŁACI PROWIZJI Mieszkania na parterze posiadają prywatne ogrody a na piętrach balkony i tarasy. Osiedle budowane będzie z zastosowaniem nowoczesnych technologii przy czym bryła budynków będzie elegancka i ponadczasowa. Termin oddania pierwszego etapu to III kwartał 2025, a drugiego II kwartał 2026r. Atuty: - Garaże podziemne (wydzielone i zamykane) - Miejsca parkingowe zewnętrzne - Komórki lokatorskie - Windy - Widokowe tarasy ogólnodostępne dla mieszkańców - Ogrzewanie podłogowe w standardzie - Bliska odległość do centrum- 6 minut autem - W bliskim otoczeniu sklepy, szkoły, tereny zielone, infrastruktura sportowa Mieszkania dostępne : od 25,37 m2 do 64,75 m2, PYTANIA: Czy ilość komórek jest taka jak mieszkań - Nie, w budynku jest 25 komórek Czy będzie wózkownia - Nie ma, ale jest możliwość kupna komórki lokatorskiej Czy taras zielony jest ogólnodostępny? Tak Czy można położyć płytki na balkonie? -Balkony nie wymagają innego wykańczania niż te zaproponowane w standardzie, ale można we własnym zakresie położyć np. płytki lub deskę kompozytową Czy jest możliwość wykonania prysznica bez brodzika? Tak Czy jest grzejnik drabinkowy w łazience? Nie ma, wszędzie jest ogrzewanie podłogowe. Można dokupić wykonanie dodatkowego gniazda do grzejnika elektrycznego Czy można zamontować klimatyzację? Tak, jednak jej lokalizację należy uzgodnić z projektantem budynku. Powinna się znaleźć nie na ścianie budynku lecz np. na płycie balkonu ukryta za balustradą. Czy jest plac zabaw? Kiedy będzie gotowy? - Tak będzie plac zabaw, jednak w momencie realizacji budynku nr 2, ze względu na prowadzone w tym rejonie prace budowlane. Komórka lokatorska - cena? Powierzchnia od 3,12 m2 do 6,88 m2 - cena 15, 17,5, 21 tys. Miejsce postojowe w hali garażowej - wym. 2,88 x 5,25 m - cena 52.275 zł. Miejsce postojowe w boksie garażowym (wygrodzone siatką ,dłuższe z możliwością magazynowania np. opon sezonowych) wymiar 2,88 x 6,00 m - cena 70.725 zł. Miejsce postojowe na parkingu zewnętrznym (terenowe) - 15.000 zł Oświetlenie zewn. Przy drzwiach balkonowych na w mieszkaniach na innych kondygnacjach (na parterze w standardzie) - kinkiet 1 szt. Razem z oprawą, wybraną przez projektanta (jednakowe w całym budynku) zapraszam do kontaktu 66-309-489 Rakowska Wiktoria "Opis nieruchomości zawarty w niniejszej ofercie został sporządzony na podstawie informacji przekazanych nam przez stronę sprzedającą. Zwracamy uwagę, że mogą one zawierać błędy lub nieścisłości. W przypadku zainteresowania ofertą zalecamy osobistą weryfikację tych informacji. Oferta ta nie stanowi oferty w rozumieniu przepisu art. 66 i nast. kodeksu cywilnego." ------------------------------------------ Mikulski Nieruchomości - licencjonowana sieć biur nieruchomości. Baza sprawdzonych nieruchomości. Nasza firma posiada 7 oddziałów. Pracujemy w systemach wymiany ofert z biurami nieruchomości na terenie całej Polski. Posiadamy polisę OC. Obsługujemy teren całego województwa zachodniopomorskiego. Nasz skład liczy blisko 40 osób. Dobierzemy dla Państwa najtańszy kredyt na zakup każdej nieruchomości. Nie musisz kupować z nami nieruchomości, by otrzymać świetny kredyt! W ofercie mamy ponad 20 banków! Zadzwoń po kredyt hipoteczny już dziś: +48 790 588 531 CENTRALA FIRMY: +48 530 855 003 [email protected] Nasze oddziały: Oddział GOLENIÓW ul. M. Konopnickiej 76 72-100 Goleniów Tel. +48 91 418 56 57 Oddział STARGARD ul. Mikołaja Reja 8/1 73-110 Stargard Tel. +48 91 577 07 57 Oddział NOWOGARD ul. Bankowa 3B/1 72-200 Nowogard Tel. +48 91 307 66 87 Oddział SZCZECIN ul. Łaziebna 1, U1/1 70-557 Szczecin Tel. +48 91 307 91 64 Oddział ŚWINOUJŚCIE ul. Bolesława Chrobrego 5B 72-600 Świnoujście Tel. +48 91 307 89 01 Oddział KOŁOBRZEG ul. Mariacka 38/2 78-100 Kołobrzeg Tel. +48 94 700 00 23 Zapraszamy do naszych oddziałów! www.mikulski-nieruchomosci.pl :: Oferta wysłana z programu mediaRent (media-rent.eu) ::
270 000 PLN
2 33,77 m2 1/4 Zobacz ofertę