
Goleniów - 2 pokoje na parterze
MIESZKANIE NA SPRZEDAŻ Goleniów,
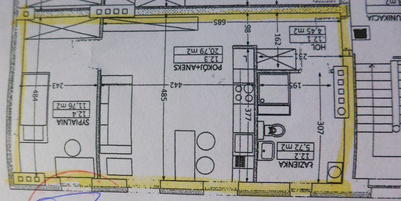
Na sprzedaż mieszkanie 2-pokojowe, 48,82 m2 + piwnica 4,12 m2 - Goleniów, ul. Barnima I
Przedstawiamy ofertę sprzedaży mieszkania o powierzchni 48,82 m2, położonego na parterze w budynku wielorodzinnym przy ul. Barnima I w Goleniowie. Do lokalu przynależy piwnica o powierzchni 4,12 m2, co zapewnia dodatkową przestrzeń do przechowywania.
Rozkład pomieszczeń:
salon,
sypialnia,
oddzielna kuchnia,
łazienka z WC,
przedpokój.
Mieszkanie jest nieumeblowane, co daje nowemu właścicielowi pełną swobodę aranżacji wnętrza - możesz urządzić je zgodnie z własnym gustem, bez konieczności pozbywania się starych mebli, czy dopasowywania ich do swojego stylu.
Stan lokalu umożliwia natychmiastowe zamieszkanie, choć ewentualne odświeżenie pozwoli dostosować mieszkanie do indywidualnych potrzeb. Aktualnie mieszkanie jest wynajmowane, co może być atutem dla inwestora szukającego lokalu z potencjałem na wynajem.
Atuty lokalizacji:
do dworca PKP/PKS - ok. 1,5 km,
do szkoły podstawowej - ok. 500 m,
do przedszkola - ok. 400 m,
do sklepu spożywczego - ok. 200 m,
do Szczecina - ok. 30 km,
do lotniska w Goleniowie (Szczecin-Goleniów) - ok. 7 km.
Dlaczego warto wybrać Goleniów?
Goleniów to prężnie rozwijające się miasto z pełną infrastrukturą - liczne sklepy, szkoły, przedszkola, ośrodki sportowe oraz dostęp do komunikacji kolejowej i drogowej (S3, S6) sprawiają, że jest to doskonałe miejsce do życia i inwestowania. Bliskość terenów zielonych, Puszczy Goleniowskiej oraz dogodny dojazd do Szczecina i nad morze czynią to miejsce wyjątkowo atrakcyjnym.
Zapraszamy do kontaktu i umówienia prezentacji pod nr telefonu: 530 855 033, Ewelina Olejniczak
"Opis nieruchomości zawarty w niniejszej ofercie został sporządzony na podstawie informacji przekazanych nam przez stronę sprzedającą. Zwracamy uwagę, że mogą one zawierać błędy lub nieścisłości. W przypadku zainteresowania ofertą zalecamy osobistą weryfikację tych informacji. Oferta ta nie stanowi oferty w rozumieniu przepisu art. 66 i nast. kodeksu cywilnego."
------------------------------------------
Mikulski Nieruchomości - licencjonowana sieć biur nieruchomości. Baza sprawdzonych nieruchomości. Nasza firma posiada 7 oddziałów. Pracujemy w systemach wymiany ofert z biurami nieruchomości na terenie całej Polski. Posiadamy polisę OC. Obsługujemy teren całego województwa zachodniopomorskiego. Nasz skład liczy blisko 40 osób.
Dobierzemy dla Państwa najtańszy kredyt na zakup każdej nieruchomości. Nie musisz kupować z nami nieruchomości, by otrzymać świetny kredyt! W ofercie mamy ponad 20 banków! Zadzwoń po kredyt hipoteczny już dziś: +48 790 588 531
CENTRALA FIRMY:
+48 530 855 003
[email protected]
Nasze oddziały:
Oddział GOLENIÓW
ul. M. Konopnickiej 76
72-100 Goleniów
Tel. +48 91 418 56 57
Oddział STARGARD
ul. Mikołaja Reja 8/1
73-110 Stargard
Tel. +48 91 577 07 57
Oddział NOWOGARD
ul. Bankowa 3B/1
72-200 Nowogard
Tel. +48 91 307 66 87
Oddział SZCZECIN
ul. Łaziebna 1, U1/1
70-557 Szczecin
Tel. +48 91 307 91 64
Oddział ŚWINOUJŚCIE
ul. Bolesława Chrobrego 5B
72-600 Świnoujście
Tel. +48 91 307 89 01
Oddział KOŁOBRZEG
ul. Mariacka 38/2
78-100 Kołobrzeg
Tel. +48 94 700 00 23
Zapraszamy do naszych oddziałów!
www.mikulski-nieruchomosci.pl
:: Oferta wysłana z programu mediaRent (media-rent.eu) ::
415 000 PLN
2
52,94 m2 Zobacz ofertę