
REZERWACJA - Bliźniak w Konikowie
DOM NA SPRZEDAŻ Konikowo, Konikowo
REZERWACJA !!!
Dom w zabudowie bliźniaczej w Konikowie! Nowoczesny projekt, doskonała lokalizacja!
To nowe zamknięte osiedle będzie składało się się z 8 domów w zabudowie bliźniaczej. Dwa domy zostały już sprzedane, kolejne dwa zostały właśnie oddane do użytkowania.
Dom o pow. 105,89m2 wraz z garażem w bryle budynku oraz ogródkiem o powierzchni 331 m2. Teren całego osiedla będzie ogrodzony, wykonane będą podjazdy i chodniki z kostki polbrukowej.
Nieruchomość budowana z materiałów wysokiej jakości. W projekcie zadbano o każdy szczegół, by zagwarantować komfort życia mieszkańców i funkcjonalność mieszkania. To idealne miejsce dla osób pragnących zamieszkać poza zgiełkiem miasta!
Lokalizacja:
Okolica to niska zabudowa domów jednorodzinnych. W pobliżu ścieżka rowerowa, którą dojedziemy do Koszalina lub nad jezioro w Niedalinie.
Dużym udogodnieniem jest również dostępność szkoły, żłobka i sklepu. W pobliży przystanek, skąd odjeżdża miejski autobus.
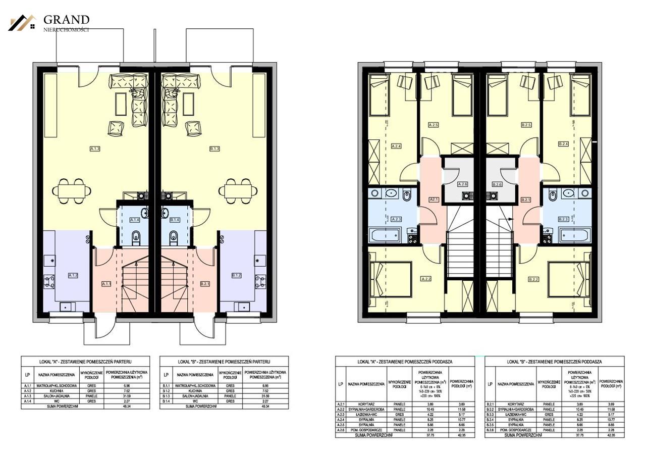
Rozkład pomieszczeń:
PARTER: wiatrołap 4,08 m2; hall + schody 6,44 m2; łazienka 3,98 m2; salon 21,38 m2; kuchnia + jadalnia10,03 m2; kotłownia5,59 m; garaż jednostanowiskowy 16,97 m2
PIĘTRO: korytarz 5,23 m2; łazienka 7,77 m2; pokój 14,83 m2; garderoba 4,09 m2; pokój 13,93 m2; pokój 14,16 m2
Standard wykończenia:
Okna trzy szyby grafitowe montowane w systemie ciepły montaż, dodatkowo zostaną zamontowane termoparapety, drzwi wejściowe Gerda antywłamaniowe grafitowe, brama garażowa z napędem grafitowa, elewacja 15 cm styropianu, dachówka ceramiczna, wewnątrz tynki gipsowe, posadzka na gruncie betonowa w tym styropian 15 cm, piec gazowy jednofunkcyjny z zasobnikiem, wykonanie instalacji elektrycznej wewnątrz budynku oraz instalacji alarmowej i pod monitoring, na posesji kostka polbrukowa w kolorze grafitowym.
Ogrzewanie: gazowe. Piec gazowy jednofunkcyjny z zasobnikiem.
Ogrzewanie podłogowe: salon, korytarz , 2 łazienki , w sypialniach i garażu grzejniki. Jest możliwość wykonania instalacji z pompą ciepła.
Media: Każdy z budynków posiada odrębne przyłącze gazowe, wodne (wodociąg miejski), zbiornik bezodpływowy oraz prąd.
Oferowany dom będzie oddany w stanie deweloperskim.
Podana cena zawiera podatek 8% VAT
Kupujący zwolniony z podatku od czynności cywilno-prawnych (PCC) 2%.
Oglądanie tylko po wcześniejszym umówieniu z pośrednikiem. Przedstawiona oferta ma charakter informacyjny i nie stanowi oferty określonej w art.66 KC.
Zapraszamy na prezentację.
699 000 PLN
4
128,48 m2 Zobacz ofertę