
Bliźniak w stanie deweloperskim - Białuń
DOM NA SPRZEDAŻ BIAŁUŃ,
Koszty pośrednictwa pokrywa strona sprzedająca.
Cena obejmuje stan deweloperski jednego z ostatnich nowoczesnych domów na Osiedlu Harmonii.
Dom znajduje się na funkcjonującym już od kilku lat osiedlu składającym się z zabudowy bliźniaczej.
Lokalizacja:
Białuń, ul. Przyrodnicza spokojna miejscowość w pobliżu Szczecina,
co zapewnia zarówno ciszę, spokój, jak i łatwy dostęp do miejskich udogodnień.
W miejscowości znajduje się stacja PKP, przystanki autobusowe, szkoła podstawowa.
Dogodny dojazd do dróg szybkiego ruchu S6 i E65 oraz do Portu Lotniczego Szczecin-Goleniów.
Dojazd do:
Goleniowa - 10 min,
Szczecina - 40 min.
Stan deweloperski:
Kupujący ma możliwość wykończenia domu według własnych preferencji,
co pozwala na stworzenie przestrzeni idealnie dopasowanej do swoich potrzeb.
Możliwość wykończenia Pod Klucz.
Wysokiej jakości materiały:
-Dachówka ceramiczna Roben: Gwarantuje trwałość na lata i estetykę.
-Okna 3-szybowe: Zapewniają wysoką izolacyjność cieplną i akustyczną, co przekłada się na niższe koszty ogrzewania i lepszy komfort mieszkania.
-Ocieplenie styropianem grafitowym: Skutecznie chroni dom przed utratą ciepła, co wpływa na obniżenie rachunków za ogrzewanie.
-Podwójna dźwiękoszczelna ściana oddzielająca bliźniaki.
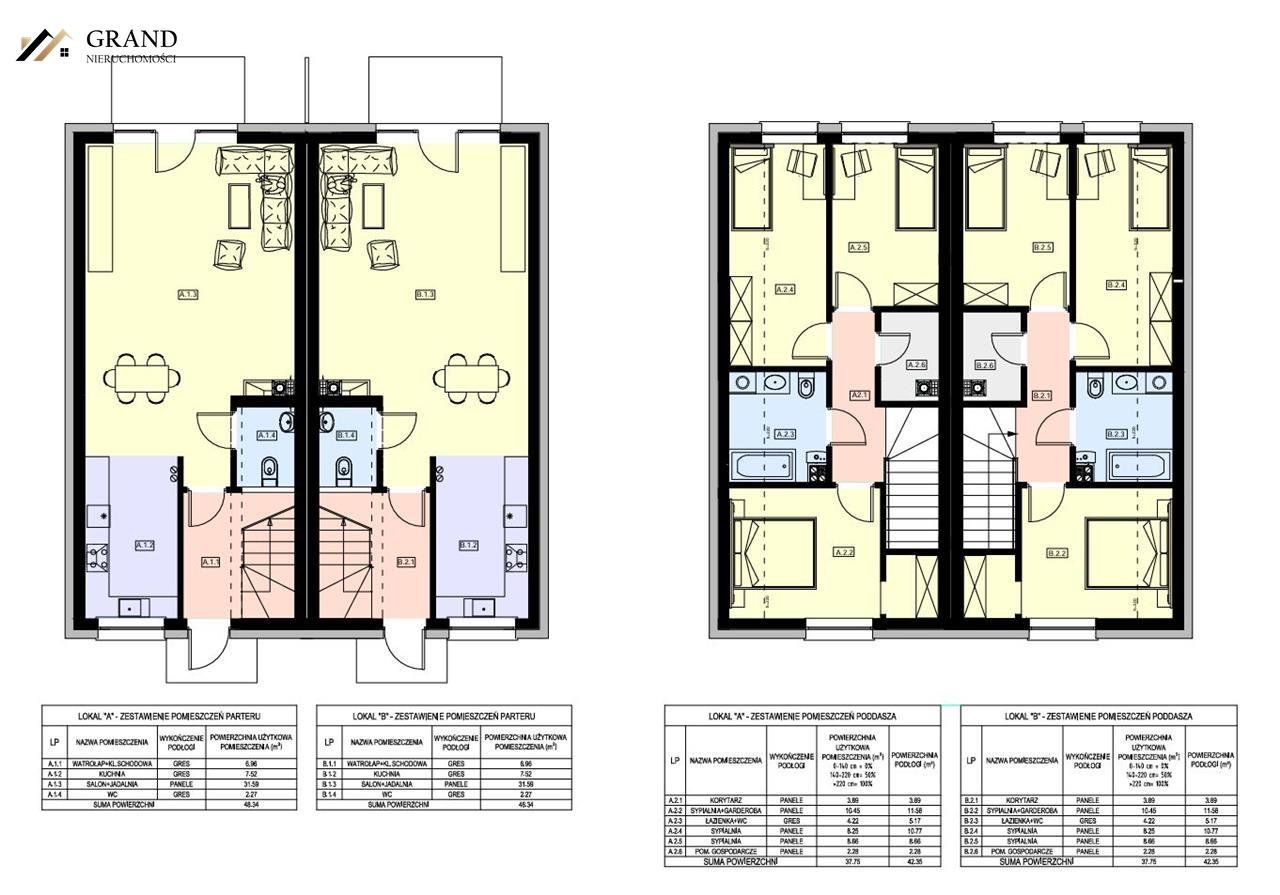
Na powierzchnię użytkową, która wynosi 111,69 m2 składa się:
- parter: przedpokój, łazienka z wc, pokój z aneksem kuchennym, garaż,
- piętro: 4 pokoje, łazienka z wc.
Dodatkowo wysoki strych o powierzchni 30m2, do własnej aranżacji.
Powierzchnia całkowita wynosi 148,51 m2.
Oferta obejmuje również:- działkę 376 m2 do własnej aranżacji: altana, taras, wiata, basen, plac zabaw,- miejsce parkingowe przed budynkiem.
Standard deweloperski uwzględnia:
-instalację elektryczną, wod-kan,
-tynki, docieplenie, elewacja,
-wybrukowane podejście i podjazd,
- ogrodzenie z 3 stron.
- automatyczna brama garażowa.
- rolety okienne,
- system alarmowy.
Zapraszamy do kontaktu i na prezentację.
-------------------------------------------------------------------------------------
Pomimo, iż Doradcy UBERNA NIERUCHOMOŚCI przykładają szczególną staranność do rzetelnego prezentowania informacji o nieruchomości, nie zawsze jest możliwa weryfikacja wszystkich danych przekazanych przez właściciela lub osoby trzecie w związku z tym opisy mają charakter wyłącznie informacyjny i mogą podlegać aktualizacji - zalecamy ich osobistą weryfikację. Również pomimo naszych starań do opisów mogą wkraść się błędy.
Oferta, dotycząca nieruchomości stanowi zaproszenie do rokowań, zgodnie z art. 71 Kodeksu Cywilnego i nie stanowi oferty określonej w art. 66 i następnych KC oraz innych właściwych przepisów prawnych.
------------------------------------------------------------------------------------
Zdjęcia oraz filmy w ogłoszeniach są własnością UBERNA NIERUCHOMOŚCI z siedzibą w Goleniowie, co oznacza zakaz kopiowania całości lub fragmentów bez uzyskania stosownej zgody.
------------------------------------------------------------------------------------
Informujemy, że administratorem danych osobowych, które pozyskane mają zostać na potrzeby nawiązania kontaktu/udzielenia odpowiedzi w związku ze zgłoszonym zapytaniem o ofertę nieruchomości będzie Uberna Nieruchomości ([email protected]). Jeśli nie chcesz otrzymywać ofert odpisz "NIE". Masz prawo wglądu do swoich danych osobowych, ich weryfikacji oraz żądania do ich usunięcia w każdej chwili.
Za Nami już ponad 3600 pomyślnie zrealizowanych transakcji. Działamy na rynku nieruchomości 22 lat.
Załatwiamy kompleksowo we współpracy z doradcami kredytowymi formalności kredytowe proponując ofertę 25 banków. Jesteśmy ubezpieczeni od odpowiedzialności cywilnej na kwotę 200 000 EURO. Nasze oferty są dostępne na ponad 50 portalach polskich oraz dodatkowo na ponad 25 portalach na całym świecie.
Uczestniczymy w Zachodniopomorskim Systemie Wymiany Ofert z ponad 80 biurami.
Zajrzyj na www.uberna.pl znajdziesz tam: domy w Goleniowie, mieszkania w Goleniowie, działki w Goleniowie, lokale w Goleniowie, obiekty w Goleniowie, zachodniopomorskie nieruchomości, nieruchomości komercyjne - cała Polska, apartamenty w górach i nad morzem.
Oferta wysłana z programu dla biur nieruchomości ASARI CRM (asaricrm.com)
680 000 PLN
5
148,51 m2 Zobacz ofertę