ZIELONA GÓRA LOKAL WYNAJEM za cenę 5 424 zł - DobryAdres.pl - ogłoszenia nieruchomości Szczecin. Sprzedaż mieszkań, domów, działek i lokali użytkowych.

‹ Wróć do listy ofert

Lokal biurowo-usługowy

Lokal na wynajem - Zielona Góra

oferta była przeglądana 368 razy

5 424 PLN notatnik

cena za m2 48 PLN

  • ZDJĘCIA
Lokal biurowo-usługowy (1)Lokal biurowo-usługowy (2)Lokal biurowo-usługowy (3)Lokal biurowo-usługowy (4)Lokal biurowo-usługowy (5)Lokal biurowo-usługowy (6)Lokal biurowo-usługowy (7)Lokal biurowo-usługowy (8)Lokal biurowo-usługowy (9)Lokal biurowo-usługowy (10)Lokal biurowo-usługowy (11)Lokal biurowo-usługowy (12)Lokal biurowo-usługowy (13)
EWA KRZYSTEK
(TERRA NIERUCHOMOŚCI)
nr licencji: 1038

tel.: +48502695645
email: [email protected]
informacje ogólne
Symbol
TER11563
Rodzaj rynku
WTÓRNY
Rodzaj lokalu / przeznaczenie
BIUROWY
Powierzchnia całkowita
113, 00 m²
Parter
Ilość pięter
5
Rodzaj budynku
MIESZKALNO-BIUROWY
Rok budowy
1995
Cena cena w innych walutach
5 424, 00 PLN
informacje dodatkowe
Forma własności
SPÓŁDZIELCZE WŁASNOŚCIOWE
Instalacje w lokalu
KLIMATYZACJA, KOMPUTEROWA
Klimatyzacja
Garaż
Opis oferty
Lokal z wieloma możliwościami. Idealne Miejsce dla Twojego Biznesu!

- doskonała lokalizacja
- darmowy wielostanowiskowy parking przed lokalem
- pełne wyposażenie w meble biurowe
- klimatyzacja wszystkich pomieszczeń
- lokal dostosowany do wymogów RODO monitoring, dwie szafy pancerne, rolety antywłamaniowe z przodu i z tyłu lokalu
- wentylacja grawitacyjna
- okna PCV
- instalacja grzewcza z licznikiem ciepła

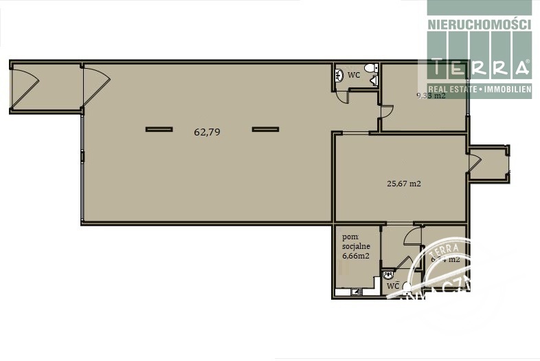
UKŁAD PRZESTRZENNY:
sala sprzedaży (9,92 x 6,33m)
korytarz prowadzący do pomieszczenia gospodarczego (2,72 x 3,43m)
toaleta (0,97 x 1,22m)
sala konferencyjna (3,30 x 7,78m)
pomieszczenie gospodarcze (3,37x 1,94m)
toaleta (1,63 x 0,95m)
pomieszczenie socjalne (2,08 x 3,2m)
wiatrołapy przy każdym z wejść
wysokość pomieszczeń h=3,35m

PRZEZNACZENIE: Lokal jest już przystosowany pod działalność biurową - całe wyposażenie widoczne na zdjęciach zostaje w lokalu. (istnieje możliwość wynajmu pustego lokalu)

LOKALIZACJA: łatwo osiągalna dla klientów podróżujących komunikacją miejską - najbliższy przystanek znajduje się 100m od lokalu, wiele miejsc parkingowych na parkingach publicznych (bezpłatnych) wokół budynku, doskonała ekspozycja lokalu, który jest widoczny z głównej ulicy (ul. Wyszyńskiego).

OPŁATY DODATKOWE:
- 1.880zł czynsz do spółdzielni (w tym C.O, zużycie wody ciepłej i zimnej, wywóz śmieci)
- energia elektryczna (opłaty licznikowe)
- kaucja dwumiesięczna

KONTAKT: [email protected], e-mail: [email protected], tel. 502695645









Powyższy opis ma charakter informacyjny i nie stanowi oferty w rozumieniu przepisów art. 66 par. 1. KC. TERRA NIERUCHOMOŚCI jest wyłącznym właścicielem zamieszczonych zdjęć i opisów. Kopiowanie ich w całości lub fragmentach jest zabronione zgodnie z ustawą z dnia 4 lutego 1994 r. o prawie autorskim i prawach pokrewnych. Kontaktując się z biurem, klient wyraża zgodę na przetwarzanie danych osobowych zgodnie z przepisami ustawy z dnia 29 sierpnia 1997 roku o ochronie danych osobowych /Dz.U.Nr. 133 poz. 883/. Klientowi przysługuje prawo do wglądu do swoich danych osobowych i ich aktualizacji.

TERRA NIERUCHOMOŚCI - Twój partner i doradca na rynku nieruchomości od 1994r.

Oferta wysłana z programu dla biur nieruchomości ASARI CRM (asaricrm.com)

EWA KRZYSTEK
(TERRA NIERUCHOMOŚCI)
nr licencji: 1038

+48502695 (pokaż)
[email protected]

telefon

email

nie wypełniaj

zapytanie

Podobne oferty

notatnik
SZCZECIN, CENTRUM
2 700 PLN 45 m2
LOKAL NA WYNAJEM SZCZECIN, CENTRUM
Do wynajęcia lokal biurowy w centrum Szczecina położony na II piętrze nowoczesnego biurowca. Obiekt znajduje się w bezpośrednim sąsiedztwie głównych arterii komunikacyjnych miasta, dworca PKP i PKS, największych skrzyżowań Szczecina - Brama Portowa, Plac Żołnierza Polskiego. W promieniu 300 metrów znajdują się siedziby wszystkich większych banków, sieci sklepów, restauracji, firm, urzędów, galerii. Układ konstrukcyjny budynku zapewnia nieograniczone możliwości aranżacji poszczególnych pomieszczeń i całej kondygnacji. Lokale wyposażone są w pełną sieć logiczną, alarmową, klimatyzację, wentylację, system kamer, czujników dymu, ruchu. Dowolna ilość linii telefonicznych (TPSA, Multimedia, Netia, Exatel), dostęp do najszybszych łączy internetowych, kompleksowe przystosowanie do wszelkich obowiązujących wymogów w kwestii bezpieczeństwa. Możliwość budowy powierzchni typu "open space". Wysoki standard pomieszczeń (parter - marmur, granit, szyby kuloodporne). Miejsca parkingowe na wewnętrznym terenie. Utrzymanie czystości i konserwacja części wspólnych przez Wynajmującego. Dostęp do wszystkich pomieszczeń 24h, monitoring 24h, dozorowanie nieruchomości - recepcja. Polecamy.i ***************************************************** PROSIMY O PODANIE NUMERU TELEFONU I ADRESU EMAIL WÓWCZAS PRZYSPIESZY TO KONTAKT Z PAŃSTWEM. Oferta Agencji POSESJA Nieruchomości. Przygotowujemy aktualne oferty wg wytycznych klienta ! Napisz jakiej nieruchomości szukasz, a wyselekcjonujemy z ogromnej bazy / 20.000 ofert / tylko te właściwe lub szukaj na naszej stronie internetowej www.posesja.eu Ponadto zapewniamy natychmiastową informację o każdej nowej ofercie ! Pomożemy nieodpłatnie uzyskać kredyt bankowy / oferta 20 banków /. 32-letnie doświadczenie połączone z nowoczesną obsługą gwarancją naszej skuteczności. Zapraszamy do Agencji Posesja: al. Papieża Jana Pawła II 18 Szczecin tel. 501 144 410; Oferta wysłana z programu dla biur nieruchomości ASARI CRM (asaricrm.com)
2 700 PLN
9 45,00 m2 2/3 Zobacz ofertę
notatnik
SZCZECIN, CENTRUM
2 500 € 185 m2
Powierzchnia biurowa A+ do wynajęcia
LOKAL NA WYNAJEM SZCZECIN, CENTRUM
Ofertę najmu stanowi komfortowa powierzchnia biurowa klasy A+ ( budynek otrzymał prestiżowy certyfikat BREEAM In Use. Przyznany w grudniu 2012 certyfikat jest potwierdzeniem proekologicznych rozwiązań stosowanych w zarządzaniu budynkiem) w centrum Szczecina. Standard powierzchni - foto: - Na wyższych piętrach wykładzina podłogowa; - Sufity podwieszane (kasetonowe) w biurach; - Sufit podwieszane z G-K w korytarzach (zabudowa wyciągowego kanału wentylacji i instalacji elektrycznej oświetleniowej; - Ściany działowe z G-K lub bloczków gazobetonowych, szpachlowane, tapeta z włókna szklanego, farba Tikkurila Optiva 5, kolor biały; - Część ścianek działowych systemowych z przeszkleniami - umożliwiającymi doświetlenie powierzchni; - Oświetlenie- lampy i oświetlenie halogenowe. Czynsz wyjściowy - 13,50 EUR/ m2 i opłaty eksploatacyjne włacznie z ogrzewaniem i zużyciem wody, zarządzanie nieruchomością, śmieci - 27,50 zł/m2. Telefon, internet, zużycie energii elektrycznej Najemca opłaca sam. Łącze światłowodowe oferują GTS Energis oraz Akademickie Centrum Informacji, NETIA, UPC oraz Orange. Jest możliwość zastosowania własnej telefonii VOIP, budynek wyposażony jest w łącze symetryczne redundantne, w przypadku podpisana dwóch umów z dostawcami można optymalnie zwiększyć bezpieczeństwo sieci. Dostawcy oferują łącza symetryczne powyżej 5 MBits/s. Dodatkowo dostępne są miejsca parkingowe na poziomie -1, -2 lub - 3 garażu podziemnego oraz pow. magazynowa. Istnieje możliwość zamontowania stojaków na rowery; dostępna jest szatnia oraz prysznic dla rowerzystów. Opłata za parking - 160zł/ miejsce. Unikatowa lokalizacja ( ścisłe centrum, 100 metrów od biurowca położony jest przystanek tramwajowy i autobusowy, dworzec kolejowy i autobusowy -1,7 km), bardzo wysoki standard pomieszczeń i atrakcyjna cena najmu to główne atuty oferowanje nieruchomości. Zapraszamy do osobistej weryfikacji oferty:) Planujesz skredytować to marzenie? Zadzwoń. Pośredniczymy w transakcjach obrotu nieruchomościami i pomagamy uzyskać kredyt hipoteczny na terenie całej Polski. Posiadamy 8 oddziałów - w Szczecinie, Warszawie, Poznaniu, Gdańsku, Olsztynie, Rzeszowie i Lublinie. Nasi agenci bezpłatnie dojeżdżają do Klientów. Jesteś zainteresowany niezobowiązującym spotkaniem? Zadzwoń do nas już dziś. Treść niniejszego ogłoszenia nie stanowi oferty handlowej w rozumieniu Kodeksu Cywilnego. Treść ma charakter informacyjny i zalecamy ich osobistą weryfikację. Oferta wysłana z programu dla biur nieruchomości ASARI CRM (asaricrm.com)
2 500
10 185,15 m2 4/5 Zobacz ofertę
notatnik
SZCZECIN, NOWE MIASTO
2 170 PLN 62 m2
Lokal biurowy 62 m2 Nowe Miasto Szczecin
LOKAL NA WYNAJEM SZCZECIN, NOWE MIASTO
Wyjmę lokal biurowy o powierzchni 62 m2 w budynku biurowy pięciokondygnacyjny. Obiekt przystosowany do pełnienia funkcji biurowej, w pełni gotowy do użytkowania, standard wykończenia pomieszczeń podwyższony. Budynek dostosowany do potrzeb osób niepełnosprawnych (podjazd oraz łazienka). Dostępny jest pełny węzeł sanitarny, łazienki na każdej kondygnacji. W nieruchomości znajdują się także pomieszczenia magazynowe. Instalacje w budynku: wodno - kanalizacyjna, elektryczna (własna rozdzielnia), c.o. z kotłowni gazowej (mieszczącej się na parterze budynku), przeciwpożarowa, wentylacja grawitacyjna, wentylacja mechaniczna, instalacja telefoniczna i sieć informatyczna (pomieszczenia serwera na każdej kondygnacji). Obiekt wyposażony jest w monitoring (instalacja alarmowa oraz wizyjna), system przeciwpożarowy. Dostępna winda osobowa. Do dyspozycji własny, duży plac manewrowo - parkingowy, na około 70 miejsc parkingowych. Na parterze budynku, przy wejściu, zlokalizowana jest portiernia. Ochrona fizyczna od poniedziałku do piątku w godzinach 08.00 - 16.00, w pozostałych godzinach dostęp do budynku przy użyciu kluczy i indywidualnych kodów dostępu. Nieruchomość wyodrębniona, plac ogrodzony, zamykany bramą wjazdową. Koszty eksploatacyjne 1. Energia elektryczna wg zużycia - podlicznik ee. 2. Pozostałe media - rozliczane procentowo w stosunku powierzchni lokalu/powierzchni najmu. - przykładowe opłaty za media na podstawie zużycia za okres zimowy i letni: okres zimowy - 8,15 zł netto/mkw okres letni - 4,18 zł netto/mkw (w miesiącach zimowych kwoty są wyższe ze względu na ogrzewanie) Informacje dodatkowe 1. Przy zawieraniu umowy wymagana jest wpłata kaucji gwarancyjnej w wysokości dwumiesięcznego czynszu najmu brutto. Uwaga: Zdjęcia w ofercie są zdjęciami podglądowymi. Serdecznie zapraszam do prezentacji. Wyjmę lokal biurowy o powierzchni 62 m2 w budynku biurowy pięciokondygnacyjny. Obiekt przystosowany do pełnienia funkcji biurowej, w pełni gotowy do użytkowania, standard wykończenia pomieszczeń podwyższony. Budynek dostosowany do potrzeb osób niepełnosprawnych (podjazd oraz łazienka). Dostępny jest pełny węzeł sanitarny, łazienki na każdej kondygnacji. W nieruchomości znajdują się także pomieszczenia magazynowe. Instalacje w budynku: wodno - kanalizacyjna, elektryczna (własna rozdzielnia), c.o. z kotłowni gazowej (mieszczącej się na parterze budynku), przeciwpożarowa, wentylacja grawitacyjna, wentylacja mechaniczna, instalacja telefoniczna i sieć informatyczna (pomieszczenia serwera na każdej kondygnacji). Obiekt wyposażony jest w monitoring (instalacja alarmowa oraz wizyjna), system przeciwpożarowy. Dostępna winda osobowa. Do dyspozycji własny, duży plac manewrowo - parkingowy, na około 70 miejsc parkingowych. Na parterze budynku, przy wejściu, zlokalizowana jest portiernia. Ochrona fizyczna od poniedziałku do piątku w godzinach 08.00 - 16.00, w pozostałych godzinach dostęp do budynku przy użyciu kluczy i indywidualnych kodów dostępu. Nieruchomość wyodrębniona, plac ogrodzony, zamykany bramą wjazdową. Koszty eksploatacyjne 1. Energia elektryczna wg zużycia - podlicznik ee. 2. Pozostałe media - rozliczane procentowo w stosunku powierzchni lokalu/powierzchni najmu. - przykładowe opłaty za media na podstawie zużycia za okres zimowy i letni: okres zimowy - 8,15 zł netto/mkw okres letni - 4,18 zł netto/mkw (w miesiącach zimowych kwoty są wyższe ze względu na ogrzewanie) Informacje dodatkowe 1. Przy zawieraniu umowy wymagana jest wpłata kaucji gwarancyjnej w wysokości dwumiesięcznego czynszu najmu brutto. Uwaga: Zdjęcia w ofercie są zdjęciami podglądowymi. Serdecznie zapraszam do prezentacji. Biuro Nieruchomości "PATRIA" - to zaufana marka na rynku nieruchomości. Istniejemy od ponad 30 lat. Zapraszamy na naszą stronę internetową: www.patria.szczecin.pl. Dla każdej osoby zainteresowanej nabyciem nieruchomości oferujemy bezpłatne badanie zdolności kredytowej oraz darmową konsultację z pracownikiem ogólnopolskiej firmy doradztwa kredytowego. O szczegóły zapytaj agenta odpowiedzialnego za to ogłoszenie. Chcesz szybko sprzedać mieszkanie, dom, lokal, pozbyć się problemu, ponieważ potrzebujesz pieniędzy? Podziel się z nami informacją, jaką nieruchomość chciałbyś sprzedać, skontaktujemy się z Tobą i omówimy szczegóły. Decyzję o zakupie podejmujemy najszybciej jak to możliwe. Skupujemy nieruchomości w każdym stanie technicznym, także zadłużone i w trakcie komorniczej egzekucji. Powyższe informacje zawierające między innymi cenę nieruchomości mają charakter wyłącznie informacyjny. Nie stanowią one oferty w rozumieniu art. 66 i n. ustawy z dnia 23. 04. 1964 r. Kodeks cywilny (Dz.U. 1964 r. Nr 16, poz. 93, ze zmianami.). Oferta wysłana z programu dla biur nieruchomości ASARI CRM (asaricrm.com)
2 170 PLN
2 62,00 m2 4/5 Zobacz ofertę