Stargard MIESZKANIE SPRZEDAŻ za cenę 399 000 zł - DobryAdres.pl - ogłoszenia nieruchomości Szczecin. Sprzedaż mieszkań, domów, działek i lokali użytkowych.

‹ Wróć do listy ofert ‹ Poprzednia oferta

STARGARD - 2 pokoje w centrum

Mieszkanie na sprzedaż - Stargard

oferta była przeglądana 138 razy

399 000 PLN notatnik

cena za m2 7 389 PLN

  • ZDJĘCIA
STARGARD - 2 pokoje w centrum (1)STARGARD - 2 pokoje w centrum (2)STARGARD - 2 pokoje w centrum (3)STARGARD - 2 pokoje w centrum (4)STARGARD - 2 pokoje w centrum (5)STARGARD - 2 pokoje w centrum (6)STARGARD - 2 pokoje w centrum (7)STARGARD - 2 pokoje w centrum (8)STARGARD - 2 pokoje w centrum (9)STARGARD - 2 pokoje w centrum (10)STARGARD - 2 pokoje w centrum (11)STARGARD - 2 pokoje w centrum (12)
Magdalena Krakowska
(Mikulski Nieruchomości)
nr licencji: 17866

tel.: 512 349 586
email: [email protected]
informacje ogólne
Symbol
14946/MKN/MS-279935
Rodzaj rynku
WTÓRNY
Liczba pokoi
2
Powierzchnia całkowita
54, 00 m²
Piętro
1
Ilość pięter
4
Standard
BARDZO DOBRY
Rodzaj budynku
TYPOWE, 2-POKOJOWE
Cena cena w innych walutach
399 000, 00 PLN
wyposażenie
Podłączony gaz
Internet
Telewizor
Opis oferty
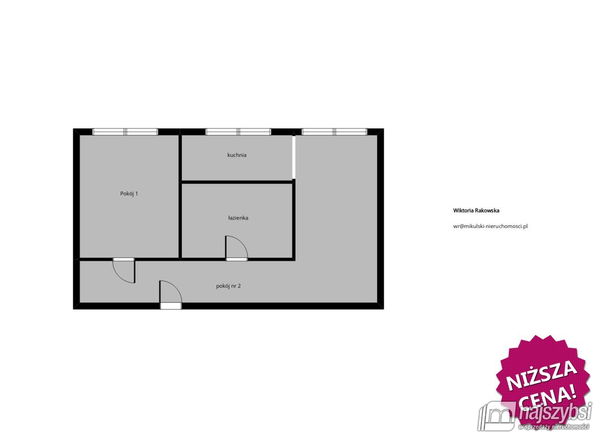
Mieszkanie dwupokojowe w centrum Stargardu.
Szkoła, hipermarkety, stare miasto w zasięgu ręki. Piękna i przyjazna okolica. Mieszkanie znajduje się na pierwszym piętrze.Jest ono po generalnym remoncie-cała instalacja została wymieniona na nową. W mieszkaniu znajdziemy:
-Przedpokój,
-Przestronny Salon z dużym oknem - z salonu przejdziemy do
-Kuchni, która również jest z dużym oknem
-Sypialnia- duże okno oraz rewelacyjny układ.
-Łazienka z prysznicem - wc
Mieszkanie jest wykonane w bardzo jasnych barwach - umeblowanie mieszkania na życzenie kupującego.
"Opis nieruchomości zawarty w niniejszej ofercie został sporządzony na podstawie informacji przekazanych nam przez stronę sprzedającą. Zwracamy uwagę, że mogą one zawierać błędy lub nieścisłości. W przypadku zainteresowania ofertą zalecamy osobistą weryfikację tych informacji. Oferta ta nie stanowi oferty w rozumieniu przepisu art. 66 i nast. kodeksu cywilnego."
------------------------------------------
Mikulski Nieruchomości - licencjonowana sieć biur nieruchomości. Baza sprawdzonych nieruchomości. Nasza firma posiada 7 oddziałów. Pracujemy w systemach wymiany ofert z biurami nieruchomości na terenie całej Polski. Posiadamy polisę OC. Obsługujemy teren całego województwa zachodniopomorskiego. Nasz skład liczy blisko 40 osób.
Dobierzemy dla Państwa najtańszy kredyt na zakup każdej nieruchomości. Nie musisz kupować z nami nieruchomości, by otrzymać świetny kredyt! W ofercie mamy ponad 20 banków! Zadzwoń po kredyt hipoteczny już dziś: +48 790 588 531
CENTRALA FIRMY:
+48 530 855 003
[email protected]
Nasze oddziały:
Oddział GOLENIÓW
ul. M. Konopnickiej 76
72-100 Goleniów
Tel. +48 91 418 56 57
Oddział STARGARD
ul. Mikołaja Reja 8/1
73-110 Stargard
Tel. +48 91 577 07 57
Oddział NOWOGARD
ul. Bankowa 3B/1
72-200 Nowogard
Tel. +48 91 307 66 87
Oddział SZCZECIN
ul. Łaziebna 1, U1/1
70-557 Szczecin
Tel. +48 91 307 91 64
Oddział ŚWINOUJŚCIE
ul. Gen. J. Bema 7/2 (I piętro)
72-600 Świnoujście
Tel. +48 91 307 89 01
Oddział KOŁOBRZEG
ul. Mariacka 38/2
78-100 Kołobrzeg
Tel. +48 94 700 00 23
Zapraszamy do naszych oddziałów!
www.mikulski-nieruchomosci.pl

:: Oferta wysłana z programu mediaRent (media-rent.eu) ::
Magdalena Krakowska
(Mikulski Nieruchomości)
nr licencji: 17866

512 349 5 (pokaż)
[email protected]

telefon

email

nie wypełniaj

zapytanie

Podobne oferty

notatnik
Szczecin, Zawadzkiego
395 000 PLN 41 m2
Zadbane 2 pok. - w niskim bloku - os. Zawadzkiego
MIESZKANIE NA SPRZEDAŻ Szczecin, Zawadzkiego
REZERWACJA OFERTY ! (UMOWA PRZEDWSTĘPNA) Zadbane 2 pok. mieszkanie - w świetnej lokalizacj i, usytuowane na 2 piętrze - w niskim, odnowionym budynku - na zielonym os. Zawadzkiego . Na powierzchnię około 42 metrów kwadratowych składają się: duży salon z kratką balkonową, sypialnia oraz widna kuchnia z nową zabudową kuchenną i sprzętem AGD /piekarnik, pralka i lodówka/. Łazienka z wanną, o ddzielnie WC. W przedpokoju znajduje się pojemna szafa. Ogrzewanie i ciepła woda z sieci miejskiej. Bardzo dogodna lokalizacja. W pobliżu komunikacja miejska, sklepy, ryneczek, banki, szkoły, budynki użyteczności publicznej, kąpielisko "Arkońka". Polecam ze względu na świetną lokalizację oraz bardzo funkcjonalny rozkład mieszkania. Zapraszamy do prezentacji i na bezpłatne badanie zdolności kredytowej. Oferty wszystkich banków w jednym miejscu! Przy zakupie tej nieruchomości zapewniamy Państwu pełną obsługę kredytową na bardzo korzystnych warunkach . Zobacz Wirtualny Spacer: https://panoramy.galactica.pl/virgo/477744 Pośrednik odpowiedzialny zawodowo za wykonanie umowy pośrednictwa: Krzysztof Osak (licencja nr: 19646) -------------------------- Powyższe informacje zostały sporządzone na podstawie oświadczeń i nie są ofertą w rozumieniu przepisów prawa. Mają one jedynie charakter informacyjny - zalecamy ich osobistą weryfikację. Oferta wysłana z systemu Galactica Virgo
395 000 PLN
2 41,27 m2 2/4 Zobacz ofertę
notatnik
Koszalin, Osiedle Zacisze Przystanek autobusowy, Ulica osied
396 940 PLN 54 m2
Mieszkanie - Koszalin Osiedle Zacisze
MIESZKANIE NA SPRZEDAŻ Koszalin, Osiedle Zacisze Przystanek autobusowy, Ulica osied
Biuro sprzedaży Dewelopera w Koszalinie przy ul. Zwycięstwa 77/4 oferuje: Już w sprzedaży II z IV etapów nowej inwestycji deweloperskiej w Koszalinie realizowanej na Osiedlu Zacisze przy ul. Żytniej: K52 - to nowoczesny przeszklony budynek mieszkalny, w którym znajduje się 59 lokali 2-, 3- i 4-pokojowych o powierzchniach od 40,30 m2 do 62,16 m2. Mieszkania z aneksem kuchennym lub z oddzielną kuchnią, balkonem lub loggią. W budynku znajdują się również komórki lokatorskie oraz ogólnodostępne pomieszczenia na wózki i rowery, a w kondygnacji podziemnej indywidualne garaże. OFERTA BEZPOŚREDNIA!!! Kupujący nie płaci prowizji, zwolniony jest również z podatku od czynności cywilnoprawnych w wysokości 2%; ponosi jedynie koszty notarialne i sądowe. Oferujemy do sprzedaży 3-pokojowe mieszkanie (TYP "D") o powierzchni 54,45 m2 z 2 loggiami! 2-stronne, położone na II piętrze, składające się z salonu z aneksem kuchennym, dwóch sypialni, łazienki oraz przedpokoju. + przynależna komórka nr 36 o powierzchni 4,09 m2 + 7.000 zł Wraz z lokalem można nabyć zewnętrzne miejsce parkingowe (15.000 zł). Dostępność: parter, I piętro, II piętro Lokal zawiera m.in.: - drzwi wejściowe, - domofon, - dzwonek, - okna trzyszybowe, - parapety zewnętrzne - parapety wewnętrzne, - tynki maszynowe, - instalacje elektryczna zakończona osprzętem (gniazdka, włączniki), - instalacja sanitarna zakończona korkami; - światłowód - instalacja RTV - wyłożona płytkami posadzka loggii; - komórki lokatorskie, garaże, rowerownia oraz pomieszczenia gospodarcze i wspólnego użytku wykończone "pod klucz", - dwie klatki zostały wyposażone w szybkie cichobieżne windy, - kompletne zagospodarowanie terenu . Planowane zakończenie budowy: IV kwartał 2024 Osiedle Zacisze - to spokój i harmonia z dala od zgiełku miasta. To miejsce dla osób szukających spokoju. W pobliżu inwestycji znajdują się punkty usługowe i handlowe, natomiast zlokalizowane nieopodal przystanki autobusowe zapewniają dojazd do centrum miasta. Nowoczesna architektura, niska intensywność zabudowy, różnorodna oferta mieszkań, duże loggie, a także zagospodarowanie terenu i części wspólnych - to wszystko wpływa na komfort życia mieszkańców Osiedla. Zapraszamy DO BIURA SPRZEDAŻY DEWELOPERA w Koszalinie przy ul. Zwycięstwa 77/4 Kontakt: 511-228-323, 600-402-699, 94)34-188-75 Lic. Zaw. 4653 Powyższa oferta nieruchomości stanowi charakter informacyjny oraz zaproszenie do rokowań zgodnie z Art. 71 KC i nie stanowi oferty określonej w art 66 i następnych KC. Kontaktując się z biurem poprzez formularz kontaktowy, e-mailowo bądź telefonicznie Klient wyraża zgodę na przetwarzanie danych osobowych zgodnie z przepisami ustawy z dnia 29 sierpnia 1997 roku o ochronie danych osobowych /Dz.U. Nr 133 poz. 883. Klientowi przysługuje prawo do wglądu do swoich danych osobowych, ich aktualizacji lub usunięcia. Administratorem danych osobowych jest Interhouse Nieruchomości Marzenna Zientarska, z siedzibą w Koszalinie przy ul. Zwycięstwa 77/4. Podawanie danych osobowych jest dobrowolne, a przetwarzanie ich jest ściśle związane z działalnością pośrednictwa w obrocie nieruchomościami. Podanie danych osobowych jest warunkiem zawarcia umowy pośrednictwa i świadczenia usługi.
396 940 PLN
3 54,45 m2 2/4 Zobacz ofertę
notatnik
SZCZECIN, NIEBUSZEWO
399 000 PLN 35 m2
Kawalerka z balkonem, wysoki parter, dodatek garaż
MIESZKANIE NA SPRZEDAŻ SZCZECIN, NIEBUSZEWO
Przedstawiam Państwu ofertę sprzedaży atrakcyjnej kawalerki, zlokalizowanej na lubianym osiedlu Książąt Pomorskich. Mieszkanie położone jest na wysokim parterze budynku z 2002 roku, wybudowanego przez popularnego dewelopera Siemaszko. Na powierzchnię około 35 m2 składają się: - przestronny, kwadratowy i ustawny pokój, - otwarta kuchnia z oknem, - przedpokój z szafą w zabudowie, - łazienka z wanną, wc i pralką. Dodatkową powierzchnię stanowią: - duży słoneczny balkon, - zamykany garaż na poziomie -1 (ok. 18 m2), sprzedawany za dodatkową opłatą (85.000zł). Mieszkanie własnościowe, zostało odświeżone i jest gotowe do zamieszkania od zaraz. Na podłogach terakota i panele. Ściany gładzone i malowane na jasne kolory, w łazience glazura w naturalnych barwach, okna PCV. Ciepła woda i ogrzewanie z sieci miejskiej. Czynsz przy 2 osobach wynosi 740 zł. Budynek został wybudowany w technologii mieszanej (cegła + płyta) i został ocieplony. Klatka schodowa czysta i zadbana. Przed budynkiem znajduje się ogólnodostępny parking. Dużym atutem jest bliskość przystanków komunikacji miejskiej, liczne sklepy i punkty usługowe, szkoły, przedszkola, place zabaw i tereny spacerowe. Mieszkanie jest idealne jako inwestycja pod wynajem lub do własnego zamieszkania. Polecam i zapraszam na prezentację! Oferta wysłana z programu dla biur nieruchomości ASARI CRM (asaricrm.com)
399 000 PLN
1 35,00 m2 Parter/4 Zobacz ofertę