MIERZYN LOKAL WYNAJEM za cenę 4 500 zł - DobryAdres.pl - ogłoszenia nieruchomości Szczecin. Sprzedaż mieszkań, domów, działek i lokali użytkowych.

‹ Wróć do listy ofert

95m2 powierzchni biurowej 47zł/1m2 netto

Lokal na wynajem - Mierzyn

oferta była przeglądana 102 razy

4 500 PLN notatnik

cena za m2 47 PLN

  • ZDJĘCIA
95m2 powierzchni biurowej 47zł/1m2 netto (1)95m2 powierzchni biurowej 47zł/1m2 netto (2)
Rafał Bobowicz
(HORYZONT Nieruchomości)
nr licencji: 20464

tel.: +48 504 040 402
email: [email protected]
informacje ogólne
Symbol
HOR21522
Rodzaj rynku
WTÓRNY
Rodzaj lokalu / przeznaczenie
HANDLOWO-USŁUGOWY
Powierzchnia całkowita
95, 00 m²
Parter
Ilość pięter
1
Rodzaj budynku
MAGAZYNOWO-BIUROWY
Rok budowy
1995
Materiał ścian
CEGŁA
Cena cena w innych walutach
4 500, 00 PLN
informacje dodatkowe
Forma własności
WŁASNOŚĆ
Instalacje w lokalu
WENTYLACJA, OGRZEWANIE
Wentylacja
Garaż
Opis oferty
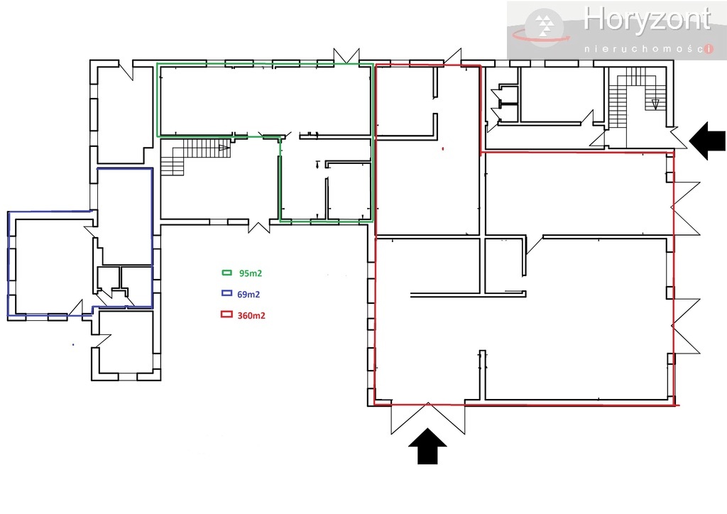
Bardzo uniwersalna powierzchnia biurowa, sklepowa oraz sklepowo- biurowa wraz z zapleczem magazynowym i dużą ilością miejsc parkingowych. Powierzchnia wynajęcia na rzucie zaznaczona kolorem zielonym. Budynek z lat 90-tych.
Doskonała widoczność obiektu. Dostęp 24h. W cenie duże powierzchnie reklamowe. Obiekt bezpieczny - stale dozorowany.
Atuty:
- 2 pomieszczenia biurowe
- powierzchnia produkcyjna
- 2 wejścia do powierzchni

Czynsz 4 500zł/miesięcznie netto + vat + prąd + woda. Ogrzewanie w czynszu. Wymagana kaucja.

Idealna powierzchnia na biuro, sklep - handel, małą hurtownię, usługi.
Istnieje możliwość najmu większej powierzchni 360m2 (powierzchnia biurowa i magazynowa).




_____________________
Licencjonowane Biuro Nieruchomości Horyzont
Ul. Krzywoustego 15/U1
70-250 Szczecin


Oferta wysłana z programu dla biur nieruchomości ASARI CRM (asaricrm.com)

Rafał Bobowicz
(HORYZONT Nieruchomości)
nr licencji: 20464

+48 504 040 (pokaż)
[email protected]

telefon

email

nie wypełniaj

zapytanie

Podobne oferty

notatnik
Stargard, Stargard
4 000 PLN 48 m2
Stargard- lokal, centrum na wynajem 47,58m²
LOKAL NA WYNAJEM Stargard, Stargard
Ofertą na wynajem jest atrakcyjny lokal użytkowy o powierzchni 47,58 m2, zlokalizowany w samym centrum Stargardu. Lokal jest doskonale przystosowany do różnego rodzaju działalności - usługowej, handlowej bądź biurowej. Parametry lokalu: Powierzchnia użytkowa: 47,58 m2 Lokalizacja: Centrum Stargardu - doskonałe położenie, zapewniające łatwy dostęp dla klientów i pracowników Pomieszczenia: Główna przestrzeń użytkowa Magazyn do przechowywania towarów lub wyposażenia Toaleta, zapewniająca pełen komfort użytkowania lokalu Główne atuty: Atrakcyjna lokalizacja: Centrum Stargardu to miejsce o dużym natężeniu ruchu pieszych i samochodów, co gwarantuje widoczność i dostępność lokalu. Funkcjonalność: Lokal wyposażony w magazyn oraz toaletę, co podnosi komfort prowadzenia działalności. Możliwość adaptacji: Wnętrze lokalu można dostosować do indywidualnych potrzeb najemcy. Łatwy dostęp: Lokal posiada bezpośrednie wejście z ulicy, co umożliwia swobodny dostęp dla klientów. Lokal doskonale sprawdzi się jako: Sklep detaliczny lub specjalistyczny Punkt usługowy (np. salon kosmetyczny, fryzjerski, biuro podróży) Biuro lub gabinet usługowy Mały magazyn z zapleczem biurowym Dodatkowe informacje: Miejsca parkingowe: Dostępne w bezpośredniej okolicy, co ułatwia dojazd i korzystanie z lokalu Bliskość komunikacji miejskiej: Zapewnia dogodny dojazd zarówno klientom, jak i pracownikom Dostępność: Lokal dostępny od zaraz Zapraszamy do kontaktu w celu uzyskania dodatkowych informacji oraz umówienia się na prezentacje. To doskonała okazja na wynajem funkcjonalnego lokalu w sercu Stargardu, idealnego do prowadzenia działalności gospodarczej. Serdecznie polecam. Kaczmarek Justyna 0048 512 372 854 "Opis nieruchomości zawarty w niniejszej ofercie został sporządzony na podstawie informacji przekazanych nam przez stronę sprzedającą. Zwracamy uwagę, że mogą one zawierać błędy lub nieścisłości. W przypadku zainteresowania ofertą zalecamy osobistą weryfikację tych informacji. Oferta ta nie stanowi oferty w rozumieniu przepisu art. 66 i nast. kodeksu cywilnego." ------------------------------------------ Mikulski Nieruchomości - licencjonowana sieć biur nieruchomości. Baza sprawdzonych nieruchomości. Nasza firma posiada 7 oddziałów. Pracujemy w systemach wymiany ofert z biurami nieruchomości na terenie całej Polski. Posiadamy polisę OC. Obsługujemy teren całego województwa zachodniopomorskiego. Nasz skład liczy blisko 40 osób. Dobierzemy dla Państwa najtańszy kredyt na zakup każdej nieruchomości. Nie musisz kupować z nami nieruchomości, by otrzymać świetny kredyt! W ofercie mamy ponad 20 banków! Zadzwoń po kredyt hipoteczny już dziś: +48 790 588 531 CENTRALA FIRMY: +48 530 855 003 [email protected] Nasze oddziały: Oddział GOLENIÓW ul. M. Konopnickiej 76 72-100 Goleniów Tel. +48 91 418 56 57 Oddział STARGARD ul. Mikołaja Reja 8/1 73-110 Stargard Tel. +48 91 577 07 57 Oddział NOWOGARD ul. Bankowa 3B/1 72-200 Nowogard Tel. +48 91 307 66 87 Oddział SZCZECIN ul. Łaziebna 1, U1/1 70-557 Szczecin Tel. +48 91 307 91 64 Oddział ŚWINOUJŚCIE ul. Gen. J. Bema 7/2 (I piętro) 72-600 Świnoujście Tel. +48 91 307 89 01 Oddział KOŁOBRZEG ul. Mariacka 38/2 78-100 Kołobrzeg Tel. +48 94 700 00 23 Zapraszamy do naszych oddziałów! www.mikulski-nieruchomosci.pl :: Oferta wysłana z programu mediaRent (media-rent.eu) ::
4 000 PLN
3 47,58 m2 Zobacz ofertę
notatnik
SZCZECIN, STARE MIASTO
2 550 PLN 85 m2
lokal na wynajem 85 m2
LOKAL NA WYNAJEM SZCZECIN, STARE MIASTO
Posiadamy do wynajęcia lokale biurowe w najlepszej lokalizacji w centrum Szczecina -przy ul. Tkackiej. Doskonała rozpoznawalność lokalizacji przez klientów wszelkich instytucji finansowych. Obiekt znajduje się w bezpośrednim sąsiedztwie głównych arterii komunikacyjnych miasta, dworca PKP i PKS, największych skrzyżowań Szczecina - Brama Portowa, Plac Żołnierza Polskiego - w rejonie o ogromnych planach inwestycyjnych. W promieniu 300 metrów znajdują się siedziby wszystkich większych banków, sieci sklepów, restauracji, firm, urzędów, galerii. Układ konstrukcyjny budynku zapewnia nieograniczone możliwości aranżacji poszczególnych pomieszczeń i całych kondygnacji. Wybrane atuty lokali biurowych przy ul. Tkackiej 55: -doskonała lokalizacja w ścisłym centrum miasta -oferowana powierzchnia - różne, już od 13 m2 - szczegóły zakładce rzuty nieruchomości -w części pomieszczeń klimatyzacja -część socjalna -światłowód w obiekcie -utrzymanie czystości i konserwacja części wspólnych przez Wynajmującego -dostęp do wszystkich pomieszczeń 24h -monitoring 24h, -dozorowanie nieruchomości + recepcja 85m2 -2550zł/mc netto + vat ( 4 pokoje w cenie wszystkie media Dodatkowo media w wysokości 30zł/m2 netto + vat ( prąd, woda, ogrzewanie, klimatyzacja ) Zapraszam na prezentację. Tworzymy Twój Świat Nieruchomości - bezpiecznie i skutecznie.
2 550 PLN
85,00 m2 3/4 Zobacz ofertę
notatnik
Police
2 700 PLN 70 m2
Police- Lokal na wynajem, świetna lokalizacja
LOKAL NA WYNAJEM Police,
Na wynajem lokal usługowy w centrum Polic Oferujemy na wynajem lokal o powierzchni 70 m2, zlokalizowany w samym sercu Polic. Nieruchomość składa się z 5 pomieszczeń, w tym toalety. Do tej pory lokal funkcjonował jako salon fryzjersko-kosmetyczny, co czyni go idealnym miejscem na prowadzenie podobnej działalności lub innego rodzaju usług. Charakterystyka lokalu: Powierzchnia lokalu: 70 m2 Układ pomieszczeń: 5 pomieszczeń, w tym jedno sanitarne Stan lokalu: świeżo oddany przez poprzedniego najemcę, praktycznie pusty Ogrzewanie: brak; wcześniej zastosowano klimatyzację i grzejniki elektryczne Działka przynależąca: 287 m2 Lokalizacja: Lokal znajduje się w otoczeniu licznych zabudowań mieszkalnych i handlowych, co zapewnia duży ruch pieszy i potencjalnych klientów. Przystanek autobusowy: 100 m Parking: ogólnodostępne miejsca parkingowe wokół lokalu Koszty najmu: Miesięczny czynsz: 2700zł Media: woda i prąd według zużycia Dzięki doskonałej lokalizacji w centrum miasta, nieruchomość stanowi idealne miejsce do prowadzenia działalności usługowej, handlowej czy biurowej w Policach. Zapraszamy do kontaktu w celu uzyskania szczegółowych informacji i umówienia się na prezentację lokalu. Kościerska Dominika tel. 531-124-557 "Opis nieruchomości zawarty w niniejszej ofercie został sporządzony na podstawie informacji przekazanych nam przez stronę sprzedającą. Zwracamy uwagę, że mogą one zawierać błędy lub nieścisłości. W przypadku zainteresowania ofertą zalecamy osobistą weryfikację tych informacji. Oferta ta nie stanowi oferty w rozumieniu przepisu art. 66 i nast. kodeksu cywilnego." ------------------------------------------ Mikulski Nieruchomości - licencjonowana sieć biur nieruchomości. Baza sprawdzonych nieruchomości. Nasza firma posiada 7 oddziałów. Pracujemy w systemach wymiany ofert z biurami nieruchomości na terenie całej Polski. Posiadamy polisę OC. Obsługujemy teren całego województwa zachodniopomorskiego. Nasz skład liczy blisko 40 osób. Dobierzemy dla Państwa najtańszy kredyt na zakup każdej nieruchomości. Nie musisz kupować z nami nieruchomości, by otrzymać świetny kredyt! W ofercie mamy ponad 20 banków! Zadzwoń po kredyt hipoteczny już dziś: +48 790 588 531 CENTRALA FIRMY: +48 530 855 003 [email protected] Nasze oddziały: Oddział GOLENIÓW ul. M. Konopnickiej 76 72-100 Goleniów Tel. +48 91 418 56 57 Oddział STARGARD ul. Mikołaja Reja 8/1 73-110 Stargard Tel. +48 91 577 07 57 Oddział NOWOGARD ul. Bankowa 3B/1 72-200 Nowogard Tel. +48 91 307 66 87 Oddział SZCZECIN ul. Łaziebna 1, U1/1 70-557 Szczecin Tel. +48 91 307 91 64 Oddział ŚWINOUJŚCIE ul. Gen. J. Bema 7/2 (I piętro) 72-600 Świnoujście Tel. +48 91 307 89 01 Oddział KOŁOBRZEG ul. Mariacka 38/2 78-100 Kołobrzeg Tel. +48 94 700 00 23 Zapraszamy do naszych oddziałów! www.mikulski-nieruchomosci.pl :: Oferta wysłana z programu mediaRent (media-rent.eu) ::
2 700 PLN
5 70,00 m2 Zobacz ofertę