
Bliźniak z ogrodem, balkonami i piwnicą.
DOM NA SPRZEDAŻ POŁCZYN-ZDRÓJ,
Na sprzedaż bliźniak o powierzchni 123,5 m2, usytuowany w malowniczym i spokojnym Połczynie-Zdroju - znanym uzdrowisku otoczonym zielenią i pięknymi krajobrazami Pojezierza Drawskiego. Nieruchomość położona jest na działce o powierzchni 211 m2, w cichej i przyjaznej okolicy, idealnej do życia w komforcie i bliskości natury.
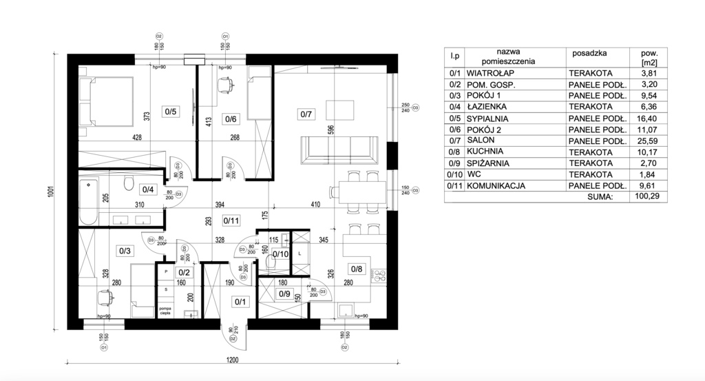
Parter:
przestronny salon z jadalnią i widną kuchnią, przedpokój, w którym można zaaranżować przytulny kącik biblioteczny; znajduje się tu również stylowa koza nadająca wnętrzu wyjątkowego klimatu oraz wyjście na mały balkon (z możliwością rozbudowy w duży taras), toaleta z prysznicem, hol.
Piętro:
trzy ustawne sypialnie (z dwóch wyjście na balkon), łazienka z wanną.
Dodatkowe informacje:
dom jest w całości podpiwniczony - istnieje możliwość adaptacji jednego z pomieszczeń w piwnicy na garaż jednostanowiskowy w bryle budynku, ogrzewanie gazowe - nowoczesny piec gazowy z 2022 roku, na posesji znajduje się blaszany garaż o pow. 15 m2, teren zadbany, spokojne sąsiedztwo, otoczenie sprzyjające wypoczynkowi.
Atuty lokalizacji - Połczyn-Zdrój:
Połczyn-Zdrój to miejscowość uzdrowiskowa słynąca z wyjątkowego mikroklimatu, licznych terenów zielonych oraz rozbudowanej sieci ścieżek rowerowych i spacerowych. W mieście znajdują się parki zdrojowe, baseny solankowe, sanatoria oraz urokliwa zabudowa, która tworzy niepowtarzalny klimat. To doskonałe miejsce zarówno do stałego zamieszkania, jak i rekreacyjnego wypoczynku.
Po więcej zdjęć zapraszam na naszą stronę.
Zapraszam na prezentację
Działamy na terenie całego województwa zachodniopomorskiego. Posiadamy oddziały - w Szczecinie, Stargardzie i Szczecinku. Nasi Doradcy bezpłatnie dojeżdżają do Klientów.
W naszym biurze możesz skorzystać z następujących usług:
- pośrednictwo w kupnie i najmie nieruchomości,
- pośrednictwo w sprzedaży i wynajmie nieruchomości,
- doradztwo finansowe,
- zarządzanie najmem,
- skup nieruchomości
- kompleksowa obsługa deweloperów.
Jesteś zainteresowany naszą ofertą? Zadzwoń do nas już dziś lub odwiedź naszą stronę www.hestianieruchomosci.pl
Treść niniejszego ogłoszenia nie stanowi oferty handlowej w rozumieniu Kodeksu Cywilnego. Treść ma charakter informacyjny i zalecamy ich osobistą weryfikację. Kontaktując się z biurem Klient wyraża zgodę na przetwarzanie danych osobowych zgodnie z przepisami ustawy z dnia 29 sierpnia 1997 roku o ochronie danych osobowych / Dz.U.Nr. 133 poz. 883/. Klientowi przysługuje prawo do wglądu do swoich danych osobowych i ich aktualizacji.
Oferta wysłana z programu dla biur nieruchomości ASARI CRM (asaricrm.com)
579 000 PLN
4
150,00 m2 Zobacz ofertę