Połchowo DZIAŁKA SPRZEDAŻ za cenę 6 600 000 zł - DobryAdres.pl - ogłoszenia nieruchomości Szczecin. Sprzedaż mieszkań, domów, działek i lokali użytkowych.

‹ Wróć do listy ofert Następna oferta

działki nad wodą Kamień Pomorski

Działka na sprzedaż - Połchowo

oferta była przeglądana 61 razy

6 600 000 PLN notatnik

cena za m2 60 PLN

  • ZDJĘCIA
działki nad wodą Kamień Pomorski (1)działki nad wodą Kamień Pomorski (2)działki nad wodą Kamień Pomorski (3)działki nad wodą Kamień Pomorski (4)działki nad wodą Kamień Pomorski (5)działki nad wodą Kamień Pomorski (6)działki nad wodą Kamień Pomorski (7)działki nad wodą Kamień Pomorski (8)działki nad wodą Kamień Pomorski (9)działki nad wodą Kamień Pomorski (10)działki nad wodą Kamień Pomorski (11)działki nad wodą Kamień Pomorski (12)
Piotr Kordus
(Pronovo Nieruchomości)
nr licencji: 11433

tel.: +48 500 103 180
email: [email protected]
informacje ogólne
Symbol
PKN-GS-611
Cena cena w innych walutach
6 600 000, 00 PLN
informacje dodatkowe
Rodzaj nawierzchni
ASFALT
Opis oferty

Działki objęte tą ofertą są w dwóch blokach po około 4,7ha i 6,1ha. Możliwość sprzedaży tych obszarów oddzielnie.
Te działki jeszcze są rolne ale graniczą z działkami objętymi miejscowym planem zagospodarowania przestrzennego pod zabudowę mieszkaniową i rekreacyjną. Objęte są studium uwarunkowań i rozwoju o takim samy przeznaczeniu co umożliwia staranie się o uchwalenie miejscowego planu lub wydanie warunków zabudowy.
W sąsiedztwie są działki w zwartym kompleksie o powierzchniach od 1250m2 o łącznym areale jeszcze około 4ha objęte miejscowym planem zagospodarowania przestrzennego pod zabudowę mieszkaniową jednorodzinną oraz budynkami gospodarczymi. Jedna działka o powierzchni powierzchni 4716m2 z wydanymi warunkami zabudowy na pensjonat.

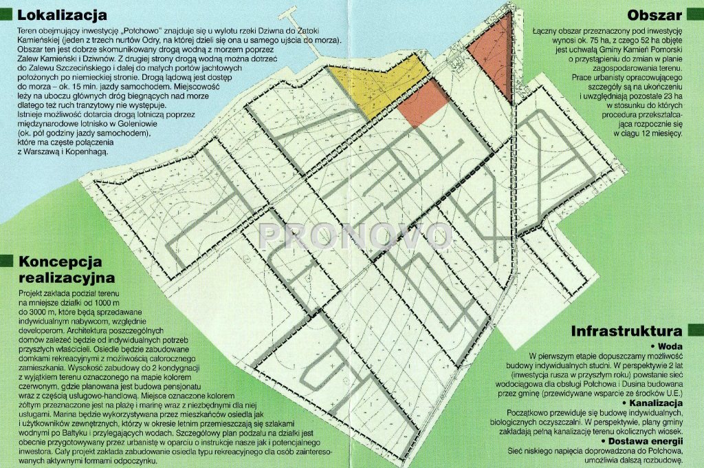
Lokalizacja:
Teren umiejscowiony jest u wylotu rzeki Dziwna do Zatoki Kamieńskiej (jeden z 3 ujść Odry do Bałtyku). Obszar dobrze skomunikowany wodnie z morzem i Zalewem Szczecińskim, drogowo- z drogą krajową do Kamienia Pomorskiego oraz w pobliżu budowanej S3 do Świnoujścia. Teren leży na uboczu głównych dróg prowadzących do morza co gwarantuje spokój, ale na tyle blisko aby można było łatwo dojechać do kompleksu działek drogą asfaltową.

Koncepcja realizacji:
Działki sąsiednie mogą być podzielone na 1200 do 3000m2 dla indywidualnych klientów lub większe dla developerów. Osiedle będzie zabudowane domkami rekreacyjnymi z możliwością zamieszkiwania całorocznego, pensjonatami, częścią usługowo-handlową, mariną z pirsami do cumowania łodzi i ogólnodostępną plażą. Marina ma być wykorzystywana przez właścicieli z osiedla oraz użytkowników tras wodnych.
Infrastruktura:
W pierwszym etapie dopuszczona jest budowa własnych studni oraz biologicznych oczyszczalni. W perspektywie 2 lat powstanie rurociąg wodny i kanalizacyjny obsługujące teren i okolicę budowane przez gminę ze wsparciem środków UE. Sieć niskiego napięcia jest doprowadzona do wsi sąsiadującej z terenem oferty z możliwością rozbudowy.

Otoczenie:
Dostęp do morza, Zatoki Kamieńskiej i Zalewu Szczecińskiego daje duże możliwości uprawiania sportów wodnych oraz innych form rekreacji. W pobliżu znajdują się 2 pełnowymiarowe pola golfowe (Kołczewo, Łukęcin), ośrodki uzdrowiskowe w Kamieniu Pomorskim, Woliński Park Narodowy i liczne miejscowości wypoczynkowe.

Możliwość zakupu w kompleksie innych działek w cenach uzależnionych od wielkości i odległości od wody.

Wszystkie oferty na nieruchomosci-online
W treści naszej umowy pośrednictwa bierzemy odpowiedzialność za wszelką pomoc, doradztwo i konsultacje na każdym etapie transakcji w tym informowanie o ważnych aspektach związanych z zawieraniem umowy sprzedaży nieruchomości, uprawnień osób trzecich do nabycia nieruchomości, pomoc w regulowaniu stanu prawnego nieruchomości itp. W związku z czym bierzemy na siebie dużą odpowiedzialność.


Jeśli macie Państwo nieruchomości do sprzedaży zgłoście do nas a zaproponujemy atrakcyjne warunki współpracy.

Piotr Kordus- właściciel Pronovo Kordus Nieruchomości

Pośrednik w Obrocie Nieruchomościami licencja 11433

Kom. +48 500. 103. 180.

Pośrednik odpowiedzialny zawodowo za wykonanie umowy pośrednictwa: Piotr Kordus (licencja nr: 11433)


Oferta wysłana z systemu Galactica Virgo
Piotr Kordus
(Pronovo Nieruchomości)
nr licencji: 11433

+48 500 103 1 (pokaż)
[email protected]

telefon

email

nie wypełniaj

zapytanie

Podobne oferty