SZCZECIN MIESZKANIE SPRZEDAŻ za cenę 516 962 zł - DobryAdres.pl - ogłoszenia nieruchomości Szczecin. Sprzedaż mieszkań, domów, działek i lokali użytkowych.

‹ Wróć do listy ofert

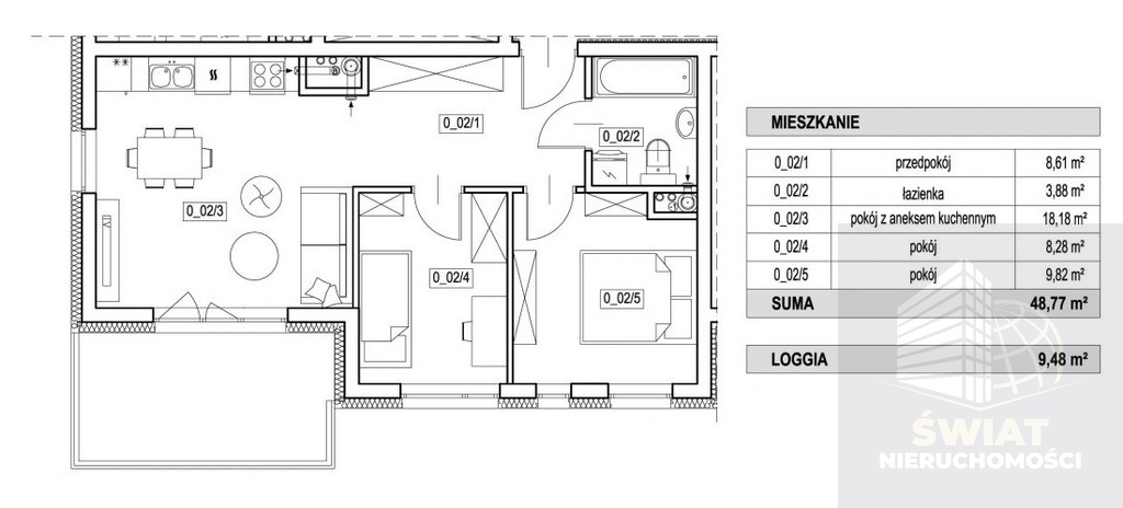
Mieszkanie, 3 pok., 49 m2, Szczecin Żelechowa

Mieszkanie na sprzedaż - Szczecin, Żelechowa

oferta była przeglądana 176 razy

516 962 PLN notatnik

cena za m2 10 600 PLN

  • ZDJĘCIA
Mieszkanie, 3 pok., 49 m2, Szczecin Żelechowa (1)Mieszkanie, 3 pok., 49 m2, Szczecin Żelechowa (2)Mieszkanie, 3 pok., 49 m2, Szczecin Żelechowa (3)
ŚWIAT NIERUCHOMOŚCI SZCZECIN
(Świat Nieruchomości Tomasz Siwicki)
nr licencji: 1830

tel.: 91 48 444 11
email: [email protected]
informacje ogólne
Symbol
SWN29536
Rodzaj rynku
PIERWOTNY
Liczba pokoi
3
Powierzchnia całkowita
48, 77 m²
Parter
Ilość pięter
5
Standard
DO WYKOŃCZENIA
Ogrzewanie
C.O. Z SIECI MIEJSKIEJ
Rodzaj budynku
NISKI BLOK
Rok budowy
2023
Materiał ścian
SILIKAT
Balkon
Garaż
Cena za m2
10 600, 00 PLN
Cena cena w innych walutach
516 962, 00 PLN
wyposażenie
Internet
Telewizja kablowa
informacje dodatkowe
Forma własności
WŁASNOŚĆ
Typ kuchni
ANEKS KUCHENNY
Źródło c.w.
SIEĆ MIEJSKA
Opis oferty
Mam przyjemność zaprezentować nową inwestycje deweloperską w Szczecinie.

O NIERUCHOMOŚCI
Na całkowitą powierzchnię mieszkania trzypokojowego składa się:
- przestronny salon z aneksem kuchennym
- 2x sypialnia
- łazienka
- hall

DODATKOWO
- loggia

MOŻLIWOŚCI
- komórka lokatorska,
- miejsce w hali garażowej.

ATUTY
- lokalizacja,
- bliskość sklepów,
- nowe budownictwo,
- dobra sieć komunikacyjna.

O INWESTYCJI
Ilość mieszkań 203
Liczba pokoi 2 - 4
Metraż 29.81 m2 - 67.95 m2

OTOCZENIE
Dziedziniec zagospodarowany w ciekawy sposób, pełniący funkcje wypoczynkowo-rekreacyjną.
Plac rekreacyjny trzyczęściowy, tj.: gimnastyczno-siłowy, plac zabaw dla dzieci oraz plac do gier.
Dodatkowo usytuowane będą ławki oraz zostanie nasadzona roślinność.
Wokół inwestycji darmowe miejsca parkingowe.
Dla wymagających miejsca w hali garażowej.

TERMIN REALIZACJI 2023 r.

Ze względu na wyżej wymienione powody, jest to idealna propozycja dla rodzin z dziećmi, par, a także osób w starszym wieku.

Zadzwoń i nie zwlekaj, bo wybrane mieszkanie może za kilka dni być już zarezerwowane

SERDECZNIE ZAPRASZAM DO KONTAKTU ORAZ NA PREZENTACJĘ.



Tworzymy Twój Świat Nieruchomości - bezpiecznie i skutecznie.
ŚWIAT NIERUCHOMOŚCI SZCZECIN
(Świat Nieruchomości Tomasz Siwicki)
nr licencji: 1830

91 48 444 (pokaż)
[email protected]

telefon

email

nie wypełniaj

zapytanie

Podobne oferty

notatnik
POLICE
515 554 PLN 65 m2
Nowa inwestycja mieszkań w Policach
MIESZKANIE NA SPRZEDAŻ POLICE,
Zapraszamy do zapoznania się NOWĄ ofertą MIESZKAŃ w standardzie DEWELOPERSKIM zlokalizowanych w Policach. Inwestycja obejmuje budynek wielorodzinny 3 - piętrowy z windą, składający się z 45 lokali mieszkalnych oraz 2 mniejsze budynki z 4 lokalami mieszkalnymi. Lokale będą posiadać aneks kuchenny lub oddzielną kuchnię. Na parterze dużego bloku zlokalizowany będzie garaż z miejscami parkingowymi (32 miejsc), natomiast w obrębie osiedla zapewniono 22 miejsca parkingowe "pod chmurką". Udogodnienia inwestycji: - teren przyszłej inwestycji to kameralne w pełni zagospodarowane osiedle, - do wyboru mieszkania o o pow. od ok. 25 m2 do ok. 65 m2, - możliwość wykupienia miejsca postojowego w garażu lub na zewnątrz budynku za dodatkową opłatą. Niniejsza oferta dotyczy mieszkania 3-pokojowego z 2 balkonami położonego na I piętrze budynku mieszkalnego. Lokal mieszkalny o pow. użytkowej 65,26 m2 składa się z następujących pomieszczeń: - przedpokój - pow. 3,41 m2, - salon - pow. 26,79 m2, - kuchnia - pow. 8,64 m2 - sypialnia - pow. 10,23 m2, - sypialnia - pow. 9,21 m2, - łazienka - pow. 6,98 m2. Wszystkie lokale mieszkalne wykończone będą w następującym standardzie deweloperskim: - podłoża pod posadzki - betonowe, - okna PCV bez szprosów 3-szybowe, - parapety zewnętrzne -stalowe lub PCV, - parapety wewnętrzne - postforming, - ściany tynk kl. I - III - bez szpachlowania, - sufity nietynkowane, nieszpachlowane, płyty kanałowe, - w korytarzu, pokojach, łazience- przygotowane podłoże pod posadzki, - biały montaż -we własnym zakresie, - instalacje elektryczne- okablowanie, gniazda wtykowe i włączniki, - instalacje sanitarne wodno kanalizacyjne (bez białego montażu), - instalacja centralnego ogrzewania z grzejnikami - drzwi wejściowe do mieszkań w cenie lokalu, - drzwi wewnętrzne - brak, - klatki schodowe - schody żelbetowe obłożone płytkami, balustrada stalowa, ściany tynkowane i malowane, - ocieplenie konstrukcji dachu wełną mineralną lub pianą PUR wraz z folią. MEDIA: - instalacje- elektryczna, wodna, kanalizacyjna (kompletne), - centralne ogrzewanie, ciepła woda - z kotłowni gazowej, - instalacja TV, telefoniczna, internetowa- orurowanie. Planowany termin zakończenia budowy XII.2025 r. LOKALIZACJA: Nowoczesne osiedle zlokalizowane jest w centrum Polic. Dobrze skomunikowane z centrum miasta i nie tylko. Idealna komunikacja, ośrodki dydaktyczne, służba zdrowia, centra handlowe gwarantują zarówno spokój jak i wygodę mieszkania. W CENIE ZAWARTE JEST 8% VAT, Kupujący zwolniony jest z podatku od czynności cywilnoprawnych u notariusza. ZAPRASZAMY DO KONTAKTU w celu poznania szczegółów, bądź UMÓWIENIA SIĘ NA PREZENTACJE ! BEZPŁATNIE POMAGAMY W UZYSKANIU KREDYTU HIPOTECZNEGO NA ZAKUP MIESZKANIA. Jesteśmy członkiem Zachodniopomorskiego Stowarzyszenia w Obrocie Nieruchomościami oraz Zachodniopomorskiego Systemu Wymiany Ofert. Posiadamy obowiązkowe ubezpieczenie od odpowiedzialności cywilnej. Informujemy, że administratorem danych osobowych, pozyskanych na potrzeby nawiązania kontaktu/udzielenia odpowiedzi na zgłoszenie/zapytanie w sprawie oferty nieruchomości będzie firma Mint Invest Spółka Cywilna Anna Boćko, Karolina Czerwińska-Karmazyn z siedzibą w Goleniowie. Treść niniejszego ogłoszenia nie stanowi oferty handlowej w rozumieniu Kodeksu Cywilnego art. 66 §1. Treść ma charakter informacyjny i została utworzona na podstawie oświadczeń właściciela nieruchomości. Zalecamy ich osobistą weryfikację. Kontaktując się z naszą firmą Klient wyraża zgodę na przetwarzanie danych osobowych zgodnie z przepisami ustawy z dnia 29 sierpnia 1997 roku o ochronie danych osobowych / Dz.U.Nr. 133 poz. 883/. Klientowi przysługuje prawo do wglądu do swoich danych osobowych i ich aktualizacji. Zdjęcia oraz filmy w ogłoszeniach są własnością Mint Invest Spółka Cywilna Anna Boćko, Karolina Czerwińska-Karmazyn z siedzibą w Goleniowie, co oznacza zakaz kopiowania całości lub fragmentów bez uzyskania odpowiedniej zgody. Oferta wysłana z programu dla biur nieruchomości ASARI CRM (asaricrm.com)
515 554 PLN
3 65,26 m2 1/2 Zobacz ofertę
notatnik
ZIELONA GÓRA
520 000 PLN 61 m2
Mieszkanie trzypokojowe na osiedlu Leśnym
MIESZKANIE NA SPRZEDAŻ ZIELONA GÓRA,
MIESZKANIE trzypokojowe z balkonem na wysokim parterze budynku przy ul. Modrzewiowej. UKŁAD PRZESTRZENNY: na 60,63 m2 mieści się pokój dzienny z balkonem i z aneksem kuchennym, dwie sypialnie (12m2 i 13m2), łazienka z wanną (5.5m2), szeroki przedpokój z zabudowaną szafą (9,5m2). Okna skierowane na wschód i zachód. Do mieszkania przynależy komórka lokatorska. STANDARD: Na podłogach w pokojach panele, w przedpokoju, łazience, aneksie kuchennym i na balkonie - płytki, ściany malowane, okna PCV, we wszystkich oknach rolety zewnętrzne, drzwi płycinowe. Mieszkanie wymaga odświeżenia ścian i wymiany paneli podłogowych. W cenie mieszkania pozostają dwie szafy w zabudowie z drzwiami przesuwnymi. OTOCZENIE: zagospodarowane, spokojne osiedle, otoczone zielenią, w sąsiedztwie ogrodzony plac zabaw dla dzieci, liczne miejsca postojowe i tereny zielone. Na osiedlu lokalny sklep spożywczy, przystanki komunikacji miejskiej MZK. KOSZTY UTRZYMANIA: czynsz do wspólnoty zmienny w zależności od pory roku - 400 zł latem, 600 zimą (ze względu na centralne ogrzewanie). Do czynszu należy doliczyć zużycie wody ciepłej i zimnej oraz wywóz nieczystości. Kontakt w sprawie oferty: Ewa Krzystek, tel. 502695645, e-mail: [email protected] Powyższy opis ma charakter informacyjny i nie stanowi oferty w rozumieniu przepisów art. 66 par. 1. KC. TERRA NIERUCHOMOŚCI jest wyłącznym właścicielem zamieszczonych zdjęć i opisów. Kopiowanie ich w całości lub fragmentach jest zabronione zgodnie z ustawą z dnia 4 lutego 1994 r. o prawie autorskim i prawach pokrewnych. Kontaktując się z biurem, klient wyraża zgodę na przetwarzanie danych osobowych zgodnie z przepisami ustawy z dnia 29 sierpnia 1997 roku o ochronie danych osobowych /Dz.U.Nr. 133 poz. 883/. Klientowi przysługuje prawo do wglądu do swoich danych osobowych i ich aktualizacji. TERRA NIERUCHOMOŚCI - Twój partner i doradca na rynku nieruchomości od 1994r. Oferta wysłana z programu dla biur nieruchomości ASARI CRM (asaricrm.com)
520 000 PLN
3 60,63 m2 Parter/4 Zobacz ofertę
notatnik
POBIEROWO
521 625 PLN 42 m2
Apartamenty nad Morzem Bałtyckim-POBIEROWO
MIESZKANIE NA SPRZEDAŻ POBIEROWO,
Prezentujemy wyjątkową inwestycję - 169 komfortowych apartamentów położonych w pięciu nowoczesnych, 4-kondygnacyjnych budynkach, usytuowanych na przestronnej działce o powierzchni niemal hektara. Wolnych do sprzedaży apartamentów pozostało tylko 14 w budynku E i 2 w budynku C. Projekt został stworzony z myślą o najwyższym komforcie przyszłych właścicieli i inwestorów, łącząc nowoczesną architekturę, funkcjonalność oraz doskonałą lokalizację nad Bałtykiem. Dostępne są zróżnicowane metraże, co pozwala dopasować lokal do indywidualnych potrzeb - zarówno pod kątem wypoczynku, jak i rentownej inwestycji. Każdy apartament posiada taras lub prywatny ogródek, a budynki wykonano z wysokiej jakości materiałów, gwarantujących trwałość i komfort użytkowania. Wygodne windy w każdym budynku ułatwiają komunikację, nawet z dużym bagażem wakacyjnym, a spokój właścicieli zapewnia nowoczesny system monitoringu zewnętrznego. Inwestycja oddawana jest w stanie deweloperskim, z możliwością wykończenia pod klucz ( wersja Plus - cena netto 2450zł/m2- wersja Standard -cena netto 1980zł/m2 wersja Premium 2980zł/m2 - idealnie pod wynajem lub własne potrzeby wypoczynkowe. Apartamenty można użytkować przez cały rok, co znacząco zwiększa elastyczność i potencjał inwestycyjny. Każdy apartament wyposażony jest w indywidualny system centralnego ogrzewania oraz ciepłej wody użytkowej, zasilany przez dwufunkcyjny kocioł gazowy. Rozwiązanie to zapewnia pełną niezależność, możliwość kontroli kosztów oraz szybkie nagrzewanie pomieszczeń i wody. System obejmuje: Dwufunkcyjny kocioł gazowy z manualnym sterownikiem, umożliwiającym precyzyjne ustawienie temperatury według własnych preferencji. Ogrzewanie podłogowe we wszystkich pomieszczeniach apartamentu - gwarantujące równomierne rozprowadzanie ciepła, wysoki komfort użytkowania i estetyczne wnętrza bez tradycyjnych grzejników. Stalowy grzejnik drabinkowy w łazience, idealny do szybkiego dogrzania pomieszczenia oraz suszenia ręczników. Dodatkowym atutem inwestycji są naziemne miejsca parkingowe z blokadą w cenie 27 000 zł netto. Do dyspozycji mieszkańców oddany zostanie także kryty basen z podgrzewaną wodą, a wszystkie części wspólne utrzymywane będą przez wspólnotę - koszt eksploatacji to jedynie 8 zł/m2 miesięcznie (obejmuje m.in. sprzątanie i oświetlenie części wspólnych, monitoring, serwis wind oraz utrzymanie basenu). To inwestycja, która łączy doskonałą lokalizację, wysoką jakość wykonania i ponadprzeciętny potencjał zarobkowy. Idealna propozycja zarówno dla osób szukających własnego miejsca nad morzem, jak i dla inwestorów oczekujących stabilnego i pewnego zwrotu z najmu. Pobierowo to jeden z najbardziej cenionych kurortów polskiego wybrzeża - miejsce, które przyciąga czystą, szeroką plażą wyróżnioną Błękitną Flagą, świeżym powietrzem oraz wyjątkowym klimatem nadmorskiej natury. Bogata infrastruktura rekreacyjna w okolicy - spa, wellness, baseny, siłownie, ścieżki piesze i rowerowe - a także pobliskie atrakcje, takie jak ruiny kościoła w Trzęsaczu czy latarnia w Niechorzu, czynią to miejsce idealnym zarówno do życia, jak i do wypoczynku. Miłośnicy aktywnego stylu życia docenią możliwość uprawiania sportów wodnych, m.in. żeglarstwa, kajakarstwa czy rejsów motorówką. Ceny podane są cenami netto Tworzymy Twój Świat Nieruchomości - bezpiecznie i skutecznie.
521 625 PLN
2 41,73 m2 3/3 Zobacz ofertę