Goleniów MIESZKANIE SPRZEDAŻ za cenę 359 000 zł - DobryAdres.pl - ogłoszenia nieruchomości Szczecin. Sprzedaż mieszkań, domów, działek i lokali użytkowych.

‹ Wróć do listy ofert

Goleniów - mieszkanie 3-pokojowe 46 m2 REZERWACJA

Mieszkanie na sprzedaż - Goleniów, Centrum, ul. Konstytucji 3-Go Maja

oferta była przeglądana 112 razy

359 000 PLN notatnik

cena za m2 7 686 PLN

  • ZDJĘCIA
  • video
Joanna Więzowska
(Mikulski Nieruchomości)
nr licencji: 17866

tel.: 571 996 413
email: wj@mikulski-nieruchomosci.pl
informacje ogólne
Symbol
14184/MKN/MS-278144
Rodzaj rynku
WTÓRNY
Liczba pokoi
3
Powierzchnia całkowita
46, 71 m²
Piętro
3
Ilość pięter [wliczając parter]
3
Standard
DOBRY
Rodzaj budynku
3-POKOJOWE
Materiał ścian
TRADYCYJNA
Balkon
Cena cena w innych walutach
359 000, 00 PLN
informacje dodatkowe
Forma własności
PEŁNA WŁASNOŚĆ
Opis oferty
REZERWACJA
Przedmiotem sprzedaży jest mieszkanie 3-pokojowe w Centrum Goleniowa.
Lokal mieszkalny znajduje się przy głownej ulicy miasta, na 3 piętrze wyremontowanego bloku z lat 60-tych.
Dzięki lokalizacji jest to idealne miejsce dla rodziny lub inwestycja pod wynajem.
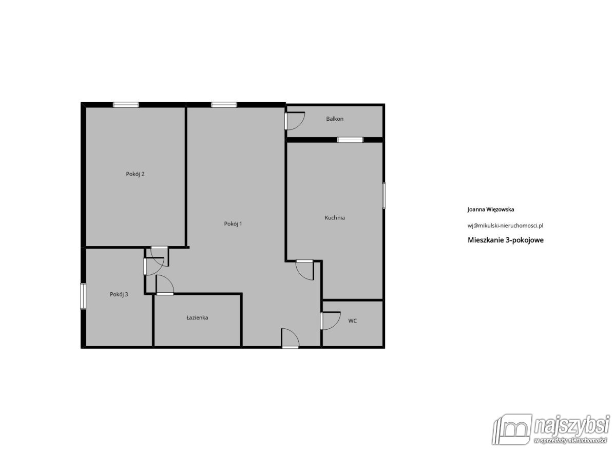
Powierzchnia użytkowa to 46,71 m2, w skład której wchodzą:
- przedpokój,
- duży przejściowy pokój - możliwość przerobienia na pokój z aneksem kuchennym,
- pokój 2,
- pokój 3,
- łazienka,
- WC,
- kuchnia z oknem.
Do mieszkania przynależy piwnica.
Dodatkowo właściciele mieszkań posiadają dostęp do poddasza/strychu.
Czynsz to ok. 600 zł.
Ogrzewanie z sieci miejskiej.

Zapraszamy do kontaktu i szczegółowego zapoznania się z ofertą: 571 996 413 Joanna Więzowska
"Opis nieruchomości zawarty w niniejszej ofercie został sporządzony na podstawie informacji przekazanych nam przez stronę sprzedającą. Zwracamy uwagę, że mogą one zawierać błędy lub nieścisłości. W przypadku zainteresowania ofertą zalecamy osobistą weryfikację tych informacji. Oferta ta nie stanowi oferty w rozumieniu przepisu art. 66 i nast. kodeksu cywilnego."
------------------------------------------
Mikulski Nieruchomości - licencjonowana sieć biur nieruchomości. Baza sprawdzonych nieruchomości. Nasza firma posiada 7 oddziałów. Pracujemy w systemach wymiany ofert z biurami nieruchomości na terenie całej Polski. Posiadamy polisę OC. Obsługujemy teren całego województwa zachodniopomorskiego. Nasz skład liczy blisko 40 osób.
Dobierzemy dla Państwa najtańszy kredyt na zakup każdej nieruchomości. Nie musisz kupować z nami nieruchomości, by otrzymać świetny kredyt! W ofercie mamy ponad 20 banków! Zadzwoń po kredyt hipoteczny już dziś: +48 790 588 531
CENTRALA FIRMY:
+48 530 855 003
biuro@mikulski-nieruchomosci.pl
Nasze oddziały:
Oddział GOLENIÓW
ul. M. Konopnickiej 76
72-100 Goleniów
Tel. +48 91 418 56 57
Oddział STARGARD
ul. Mikołaja Reja 8/1
73-110 Stargard
Tel. +48 91 577 07 57
Oddział NOWOGARD
ul. Bankowa 3B/1
72-200 Nowogard
Tel. +48 91 307 66 87
Oddział SZCZECIN
ul. Łaziebna 1, U1/1
70-557 Szczecin
Tel. +48 91 307 91 64
Oddział ŚWINOUJŚCIE
ul. Gen. J. Bema 7/2 (I piętro)
72-600 Świnoujście
Tel. +48 91 307 89 01
Oddział KOŁOBRZEG
ul. Mariacka 38/2
78-100 Kołobrzeg
Tel. +48 94 700 00 23
Zapraszamy do naszych oddziałów!
www.mikulski-nieruchomosci.pl

:: Oferta wysłana z programu mediaRent (media-rent.eu) ::
Joanna Więzowska
(Mikulski Nieruchomości)
nr licencji: 17866

571 996 4 (pokaż)
wj@mikulski-nieruchomosci.pl

telefon

email

zapytanie

Podobne oferty

notatnik
SZCZECIN, ŚRÓDMIEŚCIE-CENTRUM
368 000 PLN 34 m2
2 pokojowe w śródmieściu! Idealne pod wynajem!
MIESZKANIE NA SPRZEDAŻ SZCZECIN, ŚRÓDMIEŚCIE-CENTRUM
Do sprzedania przestronna 2 pokojowe mieszkanie powstałe w wyniku adaptacji poddasza w niskim 3 piętrowej kamienicy w śródmieściu Szczecina. Powierzchnia całkowita to ok. 34,15m2 składają się na nią hall (gres szkliwiony), wyłożony panelami przestronny pokój z aneksem kuchennym, sypialnia oraz łazienka (gres i glazura) połączona z wc wyposażona w umywalkę i kabinę prysznicową. Ogrzewanie i ciepła woda z własnego pieca 2 biegowego. Drzwi antywłamaniowe. Okna PCV . Wokół dużo zieleni, szkoła, przedszkole oraz bardzo dogodny dostęp do komunikacji miejskiej. Kupujący zwolniony z 2% podatku PCC. Polecam ze względu na wysoki standard wykonania, atrakcyjną lokalizację. Obecnie trwają prace budowlane, których zakończenie planowane jest na koniec października 2024 r Zamieszczone w ofercie zdjęcia pochodzą z poprzednich inwestycji tego wykonawcy- oferowane mieszkanie będzie wykończone materiałami podobnej klasy. Biuro Nieruchomości "PATRIA" - to zaufana marka na rynku nieruchomości. Istniejemy od ponad 30 lat. Zapraszamy na naszą stronę internetową: www.patria.szczecin.pl. Dla każdej osoby zainteresowanej nabyciem nieruchomości oferujemy bezpłatne badanie zdolności kredytowej oraz darmową konsultację z pracownikiem ogólnopolskiej firmy doradztwa kredytowego. O szczegóły zapytaj agenta odpowiedzialnego za to ogłoszenie. Chcesz szybko sprzedać mieszkanie, dom, lokal, pozbyć się problemu, ponieważ potrzebujesz pieniędzy? Podziel się z nami informacją, jaką nieruchomość chciałbyś sprzedać, skontaktujemy się z Tobą i omówimy szczegóły. Decyzję o zakupie podejmujemy najszybciej jak to możliwe. Skupujemy nieruchomości w każdym stanie technicznym, także zadłużone i w trakcie komorniczej egzekucji. Powyższe informacje zawierające między innymi cenę nieruchomości mają charakter wyłącznie informacyjny. Nie stanowią one oferty w rozumieniu art. 66 i n. ustawy z dnia 23. 04. 1964 r. Kodeks cywilny (Dz.U. 1964 r. Nr 16, poz. 93, ze zmianami.). Oferta wysłana z programu dla biur nieruchomości ASARI CRM (asaricrm.com)
368 000 PLN
2 34 m2 4/3 Zobacz ofertę
Ta strona używa ciasteczek (cookies), dzięki którym nasz serwis może działać lepiej. Akceptuję