
DOLICE - Piękny dom wolnostojący 260m2 + ogródek
DOM NA SPRZEDAŻ Dolice, Centrum
Dom w Dolicach ul. Wiejska - wyjątkowa inwestycja i komfortowe miejsce do życia
Cena: 1 050 000 zł - oferta atrakcyjna i wyjątkowa na lokalnym rynku!
Przedstawiamy Państwu przestronny, zadbany dom o ogromnym potencjale inwestycyjnym i mieszkalnym, położony w malowniczej miejscowości Dolice (woj. zachodniopomorskie, powiat stargardzki).
Lokalizacja zapewnia spokój i kontakt z naturą, a zarazem dogodny dojazd do większych ośrodków miejskich - Stargard ok. 20-30 km oraz Szczecin ok. 60 km od centrum województwa.
Lokalizacja - cisza, spokój i doskonały dojazd
Dom usytuowany jest przy ulicy Wiejskiej w Dolicach, co gwarantuje:
łatwy dojazd drogą publiczną i komunikację z sąsiednimi miejscowościami,
bliskość terenów zielonych i przyrodniczych charakter okolicy,
dobry dojazd do większych ośrodków takich jak Stargard czy Szczecin, co stanowi ogromny atut zarówno dla mieszkańców, jak i inwestorów.
Dolice to miejscowość z historią i rozwijającą się społecznością, położona w spokojnej gminie o charakterze wiejskim, z dostępem do lokalnych usług i infrastruktury publicznej.
Opis nieruchomości
Ten solidnie zbudowany dom o funkcjonalnym układzie to oferta, która łączy komfort mieszkania z możliwościami prowadzenia działalności lub inwestycji.
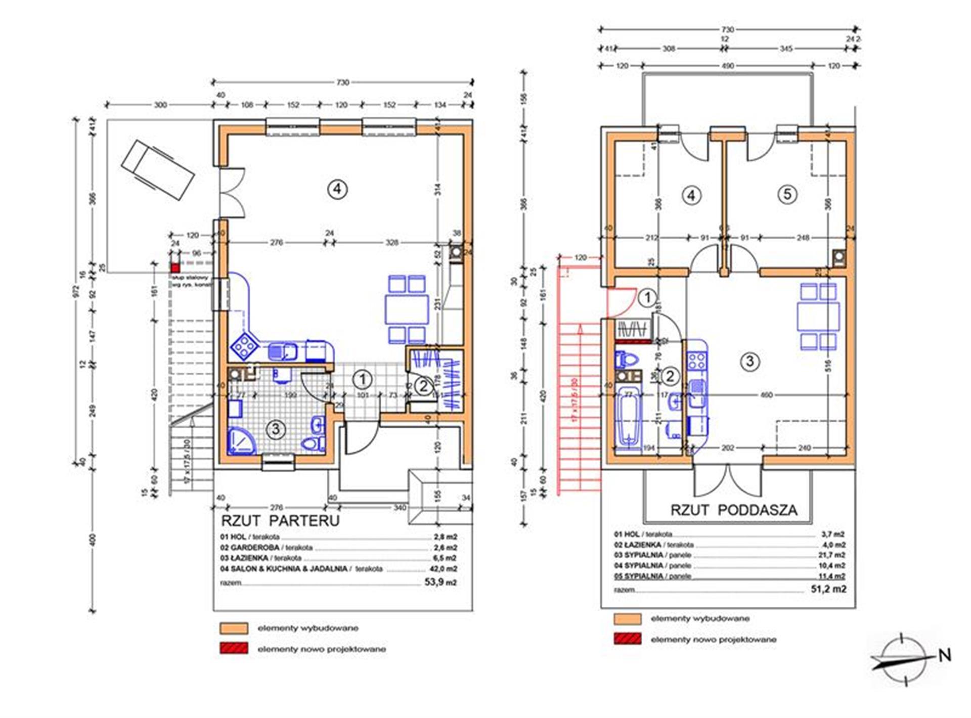
Powierzchnia i kondygnacje:
Piwnica: korytarz, magazyn, szatnia, biuro, toaleta, kotłownia oraz pomieszczenie gospodarcze - idealne na cele użytkowe lub działalność,
Parter: wiatrołap, szatnia, przestronny pokój 67 m2, kuchnia oraz 2 toalety - możliwość prowadzenia działalności usługowej lub adaptacji pod różne cele,
1 piętro: pokój 30 m2, pokój 15 m2, pokój 12 m2, kuchnia 17 m2, korytarz, garderoba, łazienka i hol - świetna przestrzeń mieszkalna,
Poddasze użytkowe: 60 m2 - do dowolnej aranżacji,
jedno z pięter jest obecnie zamieszkiwane i gotowe do wprowadzenia od zaraz.
Dzięki wcześniej prowadzonej działalności przedszkolnej, w budynku zachował się układ z osobnymi wejściami, sanitariatami, kuchnią, salami oraz zapleczem biurowym i magazynowym, co stwarza dodatkowe możliwości funkcjonalne.
Działki i zabudowania
- Dom znajduje się na własnościowej działce,
- Do nieruchomości przynależy również druga działka dzierżawiona, co zwiększa możliwości zagospodarowania terenu,
- Całość zagospodarowana: kostka brukowa wokół domu, wiaty na auta, pełne ogrodzenie, brama automatyczna na pilota - bezpieczeństwo, wygoda i estetyka na najwyższym poziomie.
Standard i instalacje
Budynek jest w pełni wyremontowany, zadbany i ogrzewany gazowo - co przekłada się na niskie koszty utrzymania (średnio ok. 600 zł/miesiąc).
- Ogrzewanie podłogowe na parterze,
- Nowoczesne okna PCV,
- Ciągłość i dbałość o właściwą temperaturę - ogrzewany cały rok.
Możliwości inwestycyjne
Dom idealnie nadaje się do:
* prowadzenia działalności usługowej lub opiekuńczej (np. dom seniora, dom opieki, przychodnia, żłobek),
* zamieszkania dla kilku rodzin,
* prowadzenia biznesu z częścią mieszkalną i usługową.
Dzięki dwóm osobnym wejściom oraz podziałowi przestrzeni, budynek gwarantuje pełną funkcjonalność i elastyczność aranżacji.
Podsumowanie
** Nieruchomość z ogromnym potencjałem - komfortowa, zadbana i wszechstronna,
** Świetna lokalizacja w Dolicach z dogodnym dojazdem do Stargardu i Szczecina,
** Możliwość adaptacji na działalność inwestycyjną lub wielorodzinną,
** Cena 1 050 000 zł - bardzo atrakcyjna w stosunku do możliwości i standardu.
Serdecznie zapraszam do kontaktu- z przyjemnością pokażemy Państwu tą wyjątkową nieruchomość!
tel. 516831403 Aurelia
"Opis nieruchomości zawarty w niniejszej ofercie został sporządzony na podstawie informacji przekazanych nam przez stronę sprzedającą. Zwracamy uwagę, że mogą one zawierać błędy lub nieścisłości. W przypadku zainteresowania ofertą zalecamy osobistą weryfikację tych informacji. Oferta ta nie stanowi oferty w rozumieniu przepisu art. 66 i nast. kodeksu cywilnego."
------------------------------------------
Mikulski Nieruchomości - licencjonowana sieć biur nieruchomości. Baza sprawdzonych nieruchomości. Nasza firma posiada 7 oddziałów. Pracujemy w systemach wymiany ofert z biurami nieruchomości na terenie całej Polski. Posiadamy polisę OC. Obsługujemy teren całego województwa zachodniopomorskiego. Nasz skład liczy blisko 40 osób.
Dobierzemy dla Państwa najtańszy kredyt na zakup każdej nieruchomości. Nie musisz kupować z nami nieruchomości, by otrzymać świetny kredyt! W ofercie mamy ponad 20 banków! Zadzwoń po kredyt hipoteczny już dziś: +48 790 588 531
CENTRALA FIRMY:
+48 530 855 003
[email protected]
Nasze oddziały:
Oddział GOLENIÓW
ul. M. Konopnickiej 76
72-100 Goleniów
Tel. +48 91 418 56 57
Oddział STARGARD
ul. Mikołaja Reja 8/1
73-110 Stargard
Tel. +48 91 577 07 57
Oddział NOWOGARD
ul. Bankowa 3B/1
72-200 Nowogard
Tel. +48 91 307 66 87
Oddział SZCZECIN
ul. Łaziebna 1, U1/1
70-557 Szczecin
Tel. +48 91 307 91 64
Oddział ŚWINOUJŚCIE
ul. Bolesława Chrobrego 5B
72-600 Świnoujście
Tel. +48 91 307 89 01
Oddział KOŁOBRZEG
ul. Mariacka 38/2
78-100 Kołobrzeg
Tel. +48 94 700 00 23
Zapraszamy do naszych oddziałów!
www.mikulski-nieruchomosci.pl
:: Oferta wysłana z programu mediaRent (media-rent.eu) ::
1 050 000 PLN
11
260,00 m2 Zobacz ofertę