MIERZYN DOM SPRZEDAŻ za cenę 819 000 zł - DobryAdres.pl - ogłoszenia nieruchomości Szczecin. Sprzedaż mieszkań, domów, działek i lokali użytkowych.

‹ Wróć do listy ofert

Bliźniaki w Mierzynie

Dom na sprzedaż - Mierzyn

oferta była przeglądana 250 razy

819 000 PLN notatnik

cena za m2 6 815 PLN

  • ZDJĘCIA
Bliźniaki w Mierzynie (1)Bliźniaki w Mierzynie (2)Bliźniaki w Mierzynie (3)Bliźniaki w Mierzynie (4)
Aneta Silska
(BRO-WIE Sp. z o.o.)
nr licencji: 3492

tel.: 507812947
email: [email protected]
informacje ogólne
Symbol
BRW21243
Rodzaj rynku
PIERWOTNY
Rodzaj domu
BLIŹNIACZY
Liczba pokoi
4
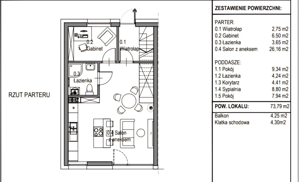
Powierzchnia całkowita
117, 25 m²
Powierzchnia użytkowa
73, 79 m²
Powierzchnia działki
170, 00 m²
Rok budowy
2025
Ilość pięter
1
Standard
BARDZO WYSOKI STANDARD
Materiał ścian
CEGŁA
Pokrycie dachu
DACHÓWKA CERAMICZNA
Cena za m2
6 814, 50 PLN
Cena cena w innych walutach
819 000, 00 PLN
informacje dodatkowe
Droga dojazdowa
ASFALTOWA
Źródło c.w.
PIEC GAZOWY
Osiedle zamknięte
Garaż
instalacje
Monitoring
Energia elektryczna
Podłączony gaz
Podłączony wodociąg
Podłączona kanalizacja
Opis oferty


Nowoczesne apartamenty w samym sercu Mierzyna, CENA od 699.000 do 769.000 zł.

Urokliwe, kameralne osiedle w Mierzynie tworzyć będzie osiem nowoczesnych energooszczędnych domów dwurodzinnych, w których zaprojektowano szesnaście apartamentów. Lokale 5-pokojowe, każdy o powierzchni użytkowej po 73,79 m2 (powierzchnia całkowita lokalu wynosi: 117,25 m kw.), posiada balkon i przydomowym ogródek. Do każdego apartamentu przynależą dwa miejsce postojowe przed budynkiem. Standard wykończenia lokali -deweloperski i obejmuje wykonanie m in.: ogrzewania podłogowego w każdym z pomieszczeń, systemu domofonowego i instalacji pod kominek. Na lokal przysługuje 5-letnia rękojmia od dewelopera. Osiedle całkowicie ogrodzone, w którym przewidziano dwa osobne wjazdy z bramą otwieraną na pilota. Inwestycję wyróżnia niezaprzeczalnie interesująca i gustowna architektura z dozą elegancji. Energooszczędność domów mają zapewnić przyjęte rozwiązania architektoniczne: izolacje ścian i podłóg, stolarka okienna. Dla miłośników dwóch kółek pomyśleliśmy o wiacie osiedlowej ze stojakami dla rowerów. Zakończenie prac budowlanych całego osiedla nastąpi w trzecim kwartale 2025 roku.


Atuty nieruchomości:

Funkcjonalny rozkład pomieszczeń
Powierzchnie lokali: 73,79 m kw. (powierzchnia całkowita: 117,25 m kw.)
Do każdego lokalu przynależy balkon i ogródek
Ponadnormatywna wysokość pomieszczeń na parterze 275 cm, na I piętrze 260 cm
W standardzie wykonana: ogrzewanie podłogowe i instalacja pod kominek.
Dwa miejsca postojowe GRATIS
Wiata osiedlowa ze stojakami na rowery
Idealna lokalizacja: blisko ścieżek rowerowych, terenów sportowych i rekreacyjnych
Dojazd od ul. Topolowej nową infrastrukturą drogową

Zapraszam na prezentację.





Oferta wysłana z programu dla biur nieruchomości ASARI CRM (asaricrm.com)

Aneta Silska
(BRO-WIE Sp. z o.o.)
nr licencji: 3492

507812 (pokaż)
[email protected]

telefon

email

nie wypełniaj

zapytanie

Podobne oferty

notatnik
Karnice
822 000 PLN 156 m2
Karnice-dom wolnostojący gotowy do zamieszkania
DOM NA SPRZEDAŻ Karnice,
Wyjątkowy dom wolnostojący w prestiżowej lokalizacji - Karnice | 9 km od Rewala Agencja Nieruchomości ma zaszczyt zaprezentować reprezentacyjny dom wolnostojący, położony w spokojnej i zielonej miejscowości Karnice, w województwie zachodniopomorskim. To propozycja skierowana do Klientów poszukujących harmonii pomiędzy komfortem życia, prywatnością oraz bliskością Bałtyku. Nieruchomość została wybudowana w 2015 roku i stanowi połączenie solidnej architektury, nowoczesnych rozwiązań technicznych oraz ponadczasowej elegancji. Dom wyróżnia się starannie zaprojektowaną bryłą oraz funkcjonalnym układem przestrzeni, który doskonale odpowiada potrzebom zarówno rodziny, jak i inwestora. Wnętrza są przestronne, jasne i doskonale doświetlone, co tworzy przyjemną atmosferę codziennego życia. Niewątpliwym atutem nieruchomości są trzy balkony, oferujące dodatkową przestrzeń relaksu oraz możliwość pełnego korzystania z uroków otaczającej przyrody. Komfort użytkowania zapewnia centralne ogrzewanie gazowe (CO) oraz miejskie przyłącze wody, gwarantujące wygodę, niezawodność i niskie koszty eksploatacyjne. Cała posesja została estetycznie ogrodzona , metalowym ogrodzeniem, co podkreśla prestiż nieruchomości oraz zapewnia poczucie bezpieczeństwa i prywatności. Lokalizacja stanowi jeden z kluczowych atutów oferty - zaledwie około 9 km od nadmorskiego Rewala, co umożliwia szybki dostęp do plaż, infrastruktury turystycznej i atrakcji wybrzeża, jednocześnie pozwalając cieszyć się ciszą oraz spokojem poza głównymi kurortami. To nieruchomość idealna jako: - komfortowy dom całoroczny - ekskluzywna rezydencja wakacyjna - atrakcyjna inwestycja pod wynajem Oferta dla Klientów ceniących jakość, przestrzeń i prestiżową lokalizację. Opłaty: - gaz 800zł 2 m-ce - prąd 70zł 2 m-ce - woda 60zł 1m-c - podatek od nieruchomości 300 zł/ rok Serdecznie polecam i zapraszam na prezentację Aneta Garbacz tel. 660-184-431 "Opis nieruchomości zawarty w niniejszej ofercie został sporządzony na podstawie informacji przekazanych nam przez stronę sprzedającą. Zwracamy uwagę, że mogą one zawierać błędy lub nieścisłości. W przypadku zainteresowania ofertą zalecamy osobistą weryfikację tych informacji. Oferta ta nie stanowi oferty w rozumieniu przepisu art. 66 i nast. kodeksu cywilnego." ------------------------------------------ Mikulski Nieruchomości - licencjonowana sieć biur nieruchomości. Baza sprawdzonych nieruchomości. Nasza firma posiada 7 oddziałów. Pracujemy w systemach wymiany ofert z biurami nieruchomości na terenie całej Polski. Posiadamy polisę OC. Obsługujemy teren całego województwa zachodniopomorskiego. Nasz skład liczy blisko 40 osób. Dobierzemy dla Państwa najtańszy kredyt na zakup każdej nieruchomości. Nie musisz kupować z nami nieruchomości, by otrzymać świetny kredyt! W ofercie mamy ponad 20 banków! Zadzwoń po kredyt hipoteczny już dziś: +48 790 588 531 CENTRALA FIRMY: +48 530 855 003 [email protected] Nasze oddziały: Oddział GOLENIÓW ul. M. Konopnickiej 76 72-100 Goleniów Tel. +48 91 418 56 57 Oddział STARGARD ul. Mikołaja Reja 8/1 73-110 Stargard Tel. +48 91 577 07 57 Oddział NOWOGARD ul. Bankowa 3B/1 72-200 Nowogard Tel. +48 91 307 66 87 Oddział SZCZECIN ul. Łaziebna 1, U1/1 70-557 Szczecin Tel. +48 91 307 91 64 Oddział ŚWINOUJŚCIE ul. Bolesława Chrobrego 5B 72-600 Świnoujście Tel. +48 91 307 89 01 Oddział KOŁOBRZEG ul. Mariacka 38/2 78-100 Kołobrzeg Tel. +48 94 700 00 23 Zapraszamy do naszych oddziałów! www.mikulski-nieruchomosci.pl :: Oferta wysłana z programu mediaRent (media-rent.eu) ::
822 000 PLN
5 156,00 m2 Zobacz ofertę
notatnik
SZCZECIN, ARKOŃSKIE
820 000 PLN 99 m2
Parter domu z ogrodem os. Arkońskie Szczecin
DOM NA SPRZEDAŻ SZCZECIN, ARKOŃSKIE
Ofertą sprzedaży jest niezwykle urokliwy parter poniemieckiej willi usytuowanej na osiedlu Arkońskie - Niemierzyn w Szczecinie. Budynek stanowi perełkę architektoniczną i posiada przepiękną działkę. Dom ma zachowanych wiele poniemieckich, oryginalnych elementów np. niektóre okna , schody, drzwi. Dach pokryty jest oryginalną poniemiecką dachówką ceramiczną karpiówką. Budynek wymaga remontu. Parter domu ma okna PCV dwuszybowe oraz drzwi wejściowe drewniane. Na klatce schodowej są stare, ale znakomicie zachowane poręcze schodów drewnianych oraz stopnie. Ogrzewanie : piec na paliwo stałe, tj. węgiel, drewno. Gorąca woda z pieca gazowego jednoobiegowego. Parter ma powierzchnię całkowitą 98,97 m2 i składa się z czterech pokoi, kuchni, przedpokoju i łazienki. Z kuchni jest wejście do piwnicy oraz do ogrodu. Sypialnia ma również wyjście na taras. Nieruchomość ma wyjątkowy klimat. Salon to dwa ogromne pomieszczenia połączone starymi, poniemieckimi, przesuwnymi drzwiami. Nieruchomość posiada garaż wielkości 15m2 oraz piwnice. Atutem nieruchomości jest lokalizacja. W najbliższej okolicy znajduje się park Chopina, las Arkoński w odległości 200 metrów, Syrenie Stawy, kompleks basenowo - rekreacyjny Arkonka. Dookoła jest dużo miejsc spacerowych oraz ścieżek rowerowych. Dojazd do miasta zapewnia tramwaj linii 3 oraz autobus numer 80. Dojazd samochodem do centrum miasta zajmuje około 15 minut. Dom położony jest na wzgórzu z ekspozycją południowozachodnią, z którego roztacza się przepiękny widok. Do nieruchomości są dwa wejścia z dwóch ulic, co jest bardzo wygodne. Działka ,na której jest posadowiony dom w całości ma 1074 m2.Właściciel przedmiotowej nieruchomości posiada udział wynoszący 67% w częściach wspólnych budynku oraz nieruchomości gruntowej. Ważne: Został ustalony sposób użytkowania części wspólnych nieruchomości oraz działki . Rozkład nieruchomości : klatka schodowa - 3,8m2 korytarz - 8,5m2 oddzielna kuchnia z wejściem do piwnicy oraz do ogrodu - 9,6m2 wiatrołap przy kuchni - 2m2 sypialnia z wyjściem do ogrodu - 13,8m2 sypialnia - 19m2 salon - 29m2 jadalnia - 11,5m2 łazienka z oknem - 4,6m2 garaż - 15m2 The offer for sale is an extremely charming ground floor of a post-German villa located in the Arkońskie - Niemierzyn housing estate in Szczecin. The building is an architectural gem and has a beautiful plot. The house has many preserved post-German, original elements, e.g. some windows, stairs, doors. The roof is covered with original post-German ceramic roof tiles. The building requires renovation. The ground floor of the house has double-glazed PVC windows and a wooden entrance door. On the staircase there are old, but perfectly preserved wooden staircase handrails and steps. Heating: solid fuel stove, i.e. coal, wood. Hot water from a single-circuit gas stove. The ground floor has a total area of 98.97 m2 and consists of four rooms, a kitchen, a hall and a bathroom. From the kitchen there is an entrance to the basement and the garden. The bedroom also has an exit to the terrace. The property has a unique atmosphere. The living room is two huge rooms connected by old, German, sliding doors. The property has a 15m2 garage and basements. The advantage of the property is its location. In the immediate vicinity there is Chopin Park, the Arkoński forest 200 meters away, Syrenie Stawy, the Arkonka swimming pool and recreation complex. There are many walking places and bicycle paths around. Access to the city is provided by tram line 3 and bus number 80. A drive to the city center takes about 15 minutes. The house is located on a hill with a south-west exposure, from which there is a beautiful view. There are two entrances to the property from two streets, which is very convenient. The plot on which the house is situated is 1074 m2 in total. The owner of the subject property has a 67% share in the common parts of the building and the land property. Important : The method of use of the common parts has been established . Property layout: staircase - 3.8m2 corridor - 8.5m2 separate kitchen with entrance to the basement and garden - 9.6m2 vestibule by the kitchen - 2m2 bedroom with access to the garden - 13.8 m2 bedroom - 19m2 living room - 29m2 dining room - 11.5m2 bathroom with window - 4.6m2 garage - 15m2 Oferta wysłana z programu dla biur nieruchomości ASARI CRM (asaricrm.com)
820 000 PLN
4 98,97 m2 Zobacz ofertę
notatnik
KAMIEŃ POMORSKI
828 000 PLN 240 m2
Połowa bliźniaka w atrakcyjnej lokalizacji
DOM NA SPRZEDAŻ KAMIEŃ POMORSKI,
Zapraszamy do zapoznania się z ofertą połowy domu w zabudowie bliźniaczej położonego za spokojnym osiedlu w Kamieniu Pomorskim. Zaledwie 10 km (ok. 15 minut) od Morza Bałtyckiego. Przestronny dom, o funkcjonalnym rozkładzie, wybudowany w latach 80"tych, w technologii tradycyjnej. Budynek 4-kondygnacyjny (piwnica z 2 garażami, 3 kondygnacje mieszkalne - 2 piętra + poddasze) o pow. całkowitej 240,32 m2, pow. użytkowej 183,97 m2 (w tym pow. mieszkalna 150,01 m2 i pow. garaży 33,96 m2). Dom położony na spokojnym osiedlu, w niedalekiej odległości od lasu. Dojazd drogą publiczną. To doskonała nieruchomość dla rodziny 2+2 - 2+3. Usytuowany na 2 działkach o łącznej pow. 355 m2, o wymiarach 12 m x 25 m. Bezpośredni dostęp do drogi publicznej. Rozkład pomieszczeń: Parter - pow. użytkowa 60,31 m2, w tym - przestronny salon z wyjściem na taras i ogród - 19,58 m2, - kuchnia z jadalnią - 28,35 m2; - łazienka/wc - 1,47 m2, - przedpokój - 6,88 m2, - wiatrołap - 4,03 m2, I piętro - pow. użytkowa 51,55 m2, w tym: - 3 sypialnie (19,12 m2, 12,0 m2, 13,29 m2), w tym jedna z balkonem, - łazienka - 2,96 m2, - przedpokój - 4,18 m2, Poddasze o pow. użytkowej 38,15 m2, w tym: - przestronny pokój - 20,32 m2, - przedpokój - 5,04 m2, - 2 pom. gospodarcze - 9,93 m2 i 2,86 m2. Podjazd na posesji z kostki polbrukowej. Działka w całości ogrodzona, zagospodarowana STANDARD WYKOŃCZENIA: - ściany gładzone, malowane/tapeta, - na podłogach w pokojach i korytarzach parkiet, w kuchni, jadalni i łazienkach płytki, - okna PCV, 2 szybowe w kolorze białym, - parapety pcv, - system ogrzewania centralnego - piec gazowy, grzejniki, - instalacja wod-kan, - instalacja elektryczna, - dach pokryty blachodachówką - docieplenie styropianem - materiał konstrukcyjny - suporex MEDIA - prąd, - światłowód, - kanalizacja deszczowa, - sieć miejska - wodna i kanalizacja sanitarna, - gaz. Kamień Pomorski to miasto - uzdrowisko położone nad brzegiem Zalewu Kamieńskiego, w północno zachodniej części województwa zachodniopomorskiego. Siedziba powiatu kamieńskiego. Zlokalizowany jest tu port morski. Rozlewiska wodne (cieśnina Dziwna i jej części: Zalew Kamieński, Zatoka Cicha) są miejscami do uprawiania sportów wodnych i czynnego wypoczynku na wodzie (żeglarstwa, kajakarstwa, windsurfingu oraz wędkarstwa). Przez miasto przechodzi droga wojewódzka nr 107, która łączy miasto z drogą krajową nr 3 oraz biegnie w kierunku wybrzeża (Dziwnówek). Na południe od miasta droga ta łączy się z drogą wojewódzką nr 106 łączącą Kamień Pomorski z Golczewem i drogą krajową nr 6. Do miasta prowadzi także droga wojewódzka nr 103, odchodząca z Trzebiatowa. W mieście są przedszkola, szkoły podstawowe, Liceum Ogólnokształcące oraz Zespół Szkół Ponadpodstawowych, ośrodek zdrowia, szpital, liczne sklepy, zakłady usługowe, stacja benzynowa, lokale gastronomiczne. W mieście znajduje się stacja kolejowa, z której odjeżdżają pociągi do Wysokiej Kamieńskiej i Szczecina, gdzie można z przesiadką kontynuować podróż do Międzyzdrojów, Świnoujścia, Kołobrzegu oraz miast centralnej Polski. Odległości/czas: - Szczecin - 86 km (ok. 1 h) - Kołobrzeg - 90 km (ok. 1 h) - Międzyzdroje - ok. 40 km (ok. 30 min.) - Świnoujście - 57 km (50 min.) - Berlin - 228 km (ok. 2h 40min.) - Koszalin - 130 km (1h 30 min.) - Dziwnów - 13 km (15 min.). Koszty związane z nabyciem: - podatek 2% PCC (lub ewentualne zwolnienie w przypadku spełnienia wymogu ustawowego), taksa notarialna, opłata za wypisy, opłaty sądowe, - wynagrodzenie biura nieruchomości za usługę pośrednictwa w nabyciu. ZAPRASZAMY NA PREZENTACJE i DO SKŁADANIA OFERT ZAKUPU !!! Jesteśmy członkiem Zachodniopomorskiego Stowarzyszenia w Obrocie Nieruchomościami oraz Zachodniopomorskiego Systemu Wymiany Ofert. Posiadamy obowiązkowe ubezpieczenie od odpowiedzialności cywilnej. Informujemy, że administratorem danych osobowych, pozyskanych na potrzeby nawiązania kontaktu/udzielenia odpowiedzi na zgłoszenie/zapytanie w sprawie oferty nieruchomości będzie firma Mint Invest Spółka Cywilna Anna Boćko, Karolina Czerwińska-Karmazyn z siedzibą w Goleniowie. Treść niniejszego ogłoszenia nie stanowi oferty handlowej w rozumieniu Kodeksu Cywilnego art. 66 §1. Treść ma charakter informacyjny i została utworzona na podstawie oświadczeń właściciela nieruchomości. Zalecamy ich osobistą weryfikację. Kontaktując się z naszą firmą Klient wyraża zgodę na przetwarzanie danych osobowych zgodnie z przepisami ustawy z dnia 29 sierpnia 1997 roku o ochronie danych osobowych / Dz.U.Nr. 133 poz. 883/. Klientowi przysługuje prawo do wglądu do swoich danych osobowych i ich aktualizacji. Zdjęcia oraz filmy w ogłoszeniach są własnością Mint Invest Spółka Cywilna Anna Boćko, Karolina Czerwińska-Karmazyn z siedzibą w Goleniowie, co oznacza zakaz kopiowania całości lub fragmentów bez uzyskania odpowiedniej zgody. Oferta wysłana z programu dla biur nieruchomości ASARI CRM (asaricrm.com)
828 000 PLN
5 240,32 m2 Zobacz ofertę