MIERZYN DOM SPRZEDAŻ za cenę 799 000 zł - DobryAdres.pl - ogłoszenia nieruchomości Szczecin. Sprzedaż mieszkań, domów, działek i lokali użytkowych.

‹ Wróć do listy ofert

Nowe bliźniaki Mierzyn

Dom na sprzedaż - Mierzyn

oferta była przeglądana 104 razy

799 000 PLN notatnik

cena za m2 10 797 PLN

  • ZDJĘCIA
Nowe bliźniaki Mierzyn (1)Nowe bliźniaki Mierzyn (2)Nowe bliźniaki Mierzyn (3)Nowe bliźniaki Mierzyn (4)Nowe bliźniaki Mierzyn (5)
Michał Romaniuk
(Szczecińskie Centrum Nieruchomości s.c.)
nr licencji: 9391

tel.: 606 280-280
email: [email protected]
informacje ogólne
Symbol
SCN22884
Rodzaj rynku
PIERWOTNY
Rodzaj domu
BLIŹNIACZY
Liczba pokoi
5
Powierzchnia całkowita
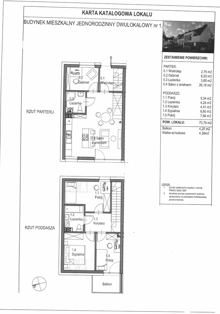
74, 00 m²
Powierzchnia użytkowa
74, 00 m²
Powierzchnia działki
120, 00 m²
Rok budowy
2025
Ilość pięter
1
Standard
DO WYKOŃCZENIA
Materiał ścian
BLOCZKI
Rodzaj okien
POŁACIOWE, PCV
Cena za m2
10 797, 30 PLN
Cena cena w innych walutach
799 000, 00 PLN
informacje dodatkowe
Droga dojazdowa
ASFALTOWA
Źródło c.w.
PIEC GAZOWY
Ogrzewanie
C.O. GAZOWE
Garaż
Balkon
instalacje
Energia elektryczna
Podłączony gaz
Podłączony wodociąg
Opis oferty
Wybudowane, w standardzie deweloperskim domy w zabudowie bliźniaczej zlokalizowane w Mierzynie. Do każdego apartamentu przynależą dwa miejsce postojowe przed budynkiem. Standard wykończenia lokali deweloperski i obejmuje wykonanie m in.: ogrzewania podłogowego w każdym z pomieszczeń, systemu domofonowego i instalacji pod kominek. Na lokal przysługuje 5-letnia rękojmia od dewelopera. Osiedle całkowicie ogrodzone, w którym przewidziano dwa osobne wjazdy z bramą otwieraną na pilota. Inwestycję wyróżnia niezaprzeczalnie interesująca i gustowna architektura z dozą elegancji. Energooszczędność domów mają zapewnić przyjęte rozwiązania architektoniczne: izolacje ścian i podłóg, stolarka okienna.
Urokliwe, kameralne osiedle w Mierzynie tworzyć będzie osiem nowoczesnych energooszczędnych domów dwurodzinnych, w których zaprojektowano szesnaście apartamentów. Lokale 5-pokojowe, każdy o powierzchni 73,79 m2, posiada balkon i przydomowy ogródek (powierzchnia działki wynosi w zależności od budynku wynosi między 115 a 250m2). Do każdego apartamentu przynależą dwa miejsce postojowe przed budynkiem. Standard wykończenia lokali deweloperski i obejmuje wykonanie m in.: ogrzewania podłogowego w każdym z pomieszczeń, systemu domofonowego i instalacji pod kominek. Na lokal przysługuje 5-letnia rękojmia od dewelopera. Osiedle całkowicie ogrodzone, w którym przewidziano dwa osobne wjazdy z bramą otwieraną na pilota. Inwestycję wyróżnia niezaprzeczalnie interesująca i gustowna architektura z dozą elegancji. Energooszczędność domów mają zapewnić przyjęte rozwiązania architektoniczne: izolacje ścian i podłóg, stolarka okienna. Na osiedlu postawiona będzie wiata ze stojakami dla rowerów.

Standard wykończenia budynku i lokali:

KONSTRUKCJA
Ława fundamentowa
Ściany fundamentowe z bloczków betonowych na zaprawie cementowo –wapiennej
Izolacja przeciwwilgociowa pionowa i pozioma
Płyta stropowa betonowa wylewana
Schody wewnętrzne betonowe, zbrojone w całości wylewane na budowie
Ściany nośne zewnętrzne murowane z bloczków silikatowych
Ściany nośne wewnętrzne działowe murowane z bloczków silikatowych
Konstrukcja dachu krokwiowo – jętkowa z drewna
Płyta balkonowa betonowa
Kominy wentylacyjne z kształtek systemowych
IZOLACJE
Izolacje przeciwwilgociowe i przeciwwodne:
Fundamenty, ściany w gruncie – papa termozgrzewalna, izolacje powłokowe typu lekkiego
Dach – folia paraizolacyjna, pokrycie dachówką ceramiczną płaską
Płyta balkonowa – mata uszczelniająca
2. Izolacje termiczne:

Ściany fundamentowe – styropian
Strop w budynku – styropian
Ściany zewnętrzne części podziemnych – płyty ze styropianu o obniżonej chłonności
Ściany zewnętrzne części nadziemnych – styropian
Płyta balkonowa – styropian
Dach – wełna mineralna
WYKOŃCZENIE ZEWNĘTRZNE
Elewacja wykonana metodą lekko-mokrą, wykończona tynkiem cienkowarstwowym mineralnym
Obróbki blacharskie tytan cynk
Balustrada balkonowa – stalowa ocynkowana malowana proszkowo, wypełnienie z siatki cięto ciągnionej
Płyta balkonowa – wylewka – jastrych cementowy
Parapety zewnętrzne z kamienia
Rynny i rury spustowe PCV
Kominy ponad dachem tynkowane
Oświetlenie terenu od frontu/numer porządkowy na elewacji
STOLARKA
Stolarka okienna i drzwiowa (balkonowa) dwukomorowa PVC Premium, szklenie trzy szybowe
Wyłaz dachowy
Okna połaciowe obrotowe
Drzwi zewnętrzne z naświetlem w skrzydle z dwoma zamkami wyposażone w bolce antywłamaniowe
kasety RKS w oknach na parterze przygotowane do montażu rolet zewnętrznych ( bez pancerzy)
WYKOŃCZENIE WEWNĘTRZNE
Podłogi – wylewka jastrych cementowy zatarty na ostro w systemie ogrzewania podłogowego
Ściany działowe gr. 12 cm z bloczków silikatowych, tynk gipsowy maszynowy
Tynk gipsowy na ścianach murowanych i na stropie nad parterem
Sucha zabudowa z płyt GK stropu i skosów poddasza użytkowego na ruszcie stalowym (bez szpachlowania łączeń)
INSTALACJA WEWNĘTRZNA: WODNA, KANALIZACYJNA i C.O.
Woda doprowadzona do punktów poboru wody w łazienkach i kuchni, zakończona zaworami
Kanalizacja rozprowadzona pod przybory łazienkowe i kuchenne z rur PCV
Podejście pod miskę ustępową wykonane na wysokości przystosowanej do montażu spłuczki podtynkowej na stelażu, bez montażu armatury
Ogrzewanie w systemie podłogowym, zasilane kotłem gazowym kondensacyjnym (dwufunkcyjnym) dodatkowo w łazienkach grzejnik drabinkowy
Szachty instalacyjne odkryte (niezabudowane)
INSTALACJA WEWNĘTRZNA: ELEKTRYCZNA, RTV, INTERNETOWA, INTELIGENTNY DOM, DOMOFONOWA
Instalacja gniazd i oświetlenia podtynkowa z osprzętem ramkowym ( bez opraw oświetleniowych, sufitowych i kinkietowych)
Wewnętrzna tablica bezpiecznikowa (natynkowa) oraz skrzynka ZK ustawiona na granicy działki
Podejście pod zasilanie kuchni zakończone puszką instalacyjną wtynkową (bez kuchenki)
Okablowanie RTV/Internet rozmieszczone wg dokumentacji projektowej wraz z osprzętem ramkowym, nie podłączone do sieci zewnętrznej
Okablowanie pod montaż osprzętu Inteligentnej Automatyki Domu (opcja montażu systemu za dopłatą)
Instalacja domofonowa bez osprzętu
POZOSTAŁE INSTALACJE WEWNĘTRZNE
Instalacja wentylacji grawitacyjnej
Komin spalinowy od kominka
TEREN ZEWNĘTRZNY
Teren działki ogrodzony od strony ulicy ogrodzeniem systemowym panelowym wyposażonym w dwie furtki i dwie bramy wjazdowe , słupki ogrodzenia betonowe. Ogrodzenie od strony sąsiednich działem wykonana z siatki powlekanej na słupkach stalowych
Powierzchnie utwardzone stanowią – drogi wewnętrzne wykończone kostką betonową
Dojścia do budynków, miejsca gromadzenia odpadów oraz miejsca postojowe dla samochodów (bez zadaszenia) wykończone kostką polbruk – ekol
Oświetlenie wewnętrzne terenu – latarnie osiedlowe
Teren działki wokół budynków wyrównany i uprzątnięty
INSTALACJE ZEWNĘTRZNE
Kanalizacja sanitarna – odprowadzenie ścieków do szczelnego zbiornika bezodpływowego
Kanalizacja deszczowa – odprowadzenie wód opadowych do zbiorników retencyjnych na wodę deszczową
Woda zimna zasilana z wodociągu, komora wodomierzowa na terenie działki
Instalacja gazowa z sieci gazowej, szafka z zaworem główny i gazomierzem znajduje się w granicy działki przy ogrodzeniu frontowym
Instalacja elektryczna – szafa licznikowa budynku i szafka administracyjna znajdują się w granicy działki przy ogrodzeniu frontowym
Zakończenie budowy całego osiedla łącznie ośmiu budynków-XII 2025r.



Powyższa propozycja nie jest ofertą handlową w rozumieniu przepisów Kodeksu Cywilnego, a podane w niej informacje są spisane według zapewnień właściciela nieruchomości i zaleca się ich osobiste sprawdzenie.

Oferta wysłana z programu dla biur nieruchomości ASARI CRM (asaricrm.com)

Michał Romaniuk
(Szczecińskie Centrum Nieruchomości s.c.)
nr licencji: 9391

606 280- (pokaż)
[email protected]

telefon

email

nie wypełniaj

zapytanie

Podobne oferty

notatnik
MIERZYN
799 000 PLN 74 m2
Nowe bliźniaki Mierzyn
DOM NA SPRZEDAŻ MIERZYN,
Wybudowane, w standardzie deweloperskim domy w zabudowie bliźniaczej zlokalizowane w Mierzynie. Do każdego apartamentu przynależą dwa miejsce postojowe przed budynkiem. Standard wykończenia lokali deweloperski i obejmuje wykonanie m in.: ogrzewania podłogowego w każdym z pomieszczeń, systemu domofonowego i instalacji pod kominek. Na lokal przysługuje 5-letnia rękojmia od dewelopera. Osiedle całkowicie ogrodzone, w którym przewidziano dwa osobne wjazdy z bramą otwieraną na pilota. Inwestycję wyróżnia niezaprzeczalnie interesująca i gustowna architektura z dozą elegancji. Energooszczędność domów mają zapewnić przyjęte rozwiązania architektoniczne: izolacje ścian i podłóg, stolarka okienna. Urokliwe, kameralne osiedle w Mierzynie tworzyć będzie osiem nowoczesnych energooszczędnych domów dwurodzinnych, w których zaprojektowano szesnaście apartamentów. Lokale 5-pokojowe, każdy o powierzchni 73,79 m2, posiada balkon i przydomowy ogródek (powierzchnia działek wynosi w zależności od budynku od 115 do 250m2). Do każdego apartamentu przynależą dwa miejsce postojowe przed budynkiem. Standard wykończenia lokali deweloperski i obejmuje wykonanie m in.: ogrzewania podłogowego w każdym z pomieszczeń, systemu domofonowego i instalacji pod kominek. Na lokal przysługuje 5-letnia rękojmia od dewelopera. Osiedle całkowicie ogrodzone, w którym przewidziano dwa osobne wjazdy z bramą otwieraną na pilota. Inwestycję wyróżnia niezaprzeczalnie interesująca i gustowna architektura z dozą elegancji. Energooszczędność domów mają zapewnić przyjęte rozwiązania architektoniczne: izolacje ścian i podłóg, stolarka okienna. Na osiedlu postawiona będzie wiata ze stojakami dla rowerów. Standard wykończenia budynku i lokali: KONSTRUKCJA Ława fundamentowa Ściany fundamentowe z bloczków betonowych na zaprawie cementowo -wapiennej Izolacja przeciwwilgociowa pionowa i pozioma Płyta stropowa betonowa wylewana Schody wewnętrzne betonowe, zbrojone w całości wylewane na budowie Ściany nośne zewnętrzne murowane z bloczków silikatowych Ściany nośne wewnętrzne działowe murowane z bloczków silikatowych Konstrukcja dachu krokwiowo - jętkowa z drewna Płyta balkonowa betonowa Kominy wentylacyjne z kształtek systemowych IZOLACJE Izolacje przeciwwilgociowe i przeciwwodne: Fundamenty, ściany w gruncie - papa termozgrzewalna, izolacje powłokowe typu lekkiego Dach - folia paraizolacyjna, pokrycie dachówką ceramiczną płaską Płyta balkonowa - mata uszczelniająca 2. Izolacje termiczne: Ściany fundamentowe - styropian Strop w budynku - styropian Ściany zewnętrzne części podziemnych - płyty ze styropianu o obniżonej chłonności Ściany zewnętrzne części nadziemnych - styropian Płyta balkonowa - styropian Dach - wełna mineralna WYKOŃCZENIE ZEWNĘTRZNE Elewacja wykonana metodą lekko-mokrą, wykończona tynkiem cienkowarstwowym mineralnym Obróbki blacharskie tytan cynk Balustrada balkonowa - stalowa ocynkowana malowana proszkowo, wypełnienie z siatki cięto ciągnionej Płyta balkonowa - wylewka - jastrych cementowy Parapety zewnętrzne z kamienia Rynny i rury spustowe PCV Kominy ponad dachem tynkowane Oświetlenie terenu od frontu/numer porządkowy na elewacji STOLARKA Stolarka okienna i drzwiowa (balkonowa) dwukomorowa PVC Premium, szklenie trzy szybowe Wyłaz dachowy Okna połaciowe obrotowe Drzwi zewnętrzne z naświetlem w skrzydle z dwoma zamkami wyposażone w bolce antywłamaniowe kasety RKS w oknach na parterze przygotowane do montażu rolet zewnętrznych ( bez pancerzy) WYKOŃCZENIE WEWNĘTRZNE Podłogi - wylewka jastrych cementowy zatarty na ostro w systemie ogrzewania podłogowego Ściany działowe gr. 12 cm z bloczków silikatowych, tynk gipsowy maszynowy Tynk gipsowy na ścianach murowanych i na stropie nad parterem Sucha zabudowa z płyt GK stropu i skosów poddasza użytkowego na ruszcie stalowym (bez szpachlowania łączeń) INSTALACJA WEWNĘTRZNA: WODNA, KANALIZACYJNA i C.O. Woda doprowadzona do punktów poboru wody w łazienkach i kuchni, zakończona zaworami Kanalizacja rozprowadzona pod przybory łazienkowe i kuchenne z rur PCV Podejście pod miskę ustępową wykonane na wysokości przystosowanej do montażu spłuczki podtynkowej na stelażu, bez montażu armatury Ogrzewanie w systemie podłogowym, zasilane kotłem gazowym kondensacyjnym (dwufunkcyjnym) dodatkowo w łazienkach grzejnik drabinkowy Szachty instalacyjne odkryte (niezabudowane) INSTALACJA WEWNĘTRZNA: ELEKTRYCZNA, RTV, INTERNETOWA, INTELIGENTNY DOM, DOMOFONOWA Instalacja gniazd i oświetlenia podtynkowa z osprzętem ramkowym ( bez opraw oświetleniowych, sufitowych i kinkietowych) Wewnętrzna tablica bezpiecznikowa (natynkowa) oraz skrzynka ZK ustawiona na granicy działki Podejście pod zasilanie kuchni zakończone puszką instalacyjną wtynkową (bez kuchenki) Okablowanie RTV/Internet rozmieszczone wg dokumentacji projektowej wraz z osprzętem ramkowym, nie podłączone do sieci zewnętrznej Okablowanie pod montaż osprzętu Inteligentnej Automatyki Domu (opcja montażu systemu za dopłatą) Instalacja domofonowa bez osprzętu POZOSTAŁE INSTALACJE WEWNĘTRZNE Instalacja wentylacji grawitacyjnej Komin spalinowy od kominka TEREN ZEWNĘTRZNY Teren działki ogrodzony od strony ulicy ogrodzeniem systemowym panelowym wyposażonym w dwie furtki i dwie bramy wjazdowe , słupki ogrodzenia betonowe. Ogrodzenie od strony sąsiednich działem wykonana z siatki powlekanej na słupkach stalowych Powierzchnie utwardzone stanowią - drogi wewnętrzne wykończone kostką betonową Dojścia do budynków, miejsca gromadzenia odpadów oraz miejsca postojowe dla samochodów (bez zadaszenia) wykończone kostką polbruk - ekol Oświetlenie wewnętrzne terenu - latarnie osiedlowe Teren działki wokół budynków wyrównany i uprzątnięty INSTALACJE ZEWNĘTRZNE Kanalizacja sanitarna - odprowadzenie ścieków do szczelnego zbiornika bezodpływowego Kanalizacja deszczowa - odprowadzenie wód opadowych do zbiorników retencyjnych na wodę deszczową Woda zimna zasilana z wodociągu, komora wodomierzowa na terenie działki Instalacja gazowa z sieci gazowej, szafka z zaworem główny i gazomierzem znajduje się w granicy działki przy ogrodzeniu frontowym Instalacja elektryczna - szafa licznikowa budynku i szafka administracyjna znajdują się w granicy działki przy ogrodzeniu frontowym Zakończenie budowy całego osiedla łącznie ośmiu budynków-XII 2025r. Powyższa propozycja nie jest ofertą handlową w rozumieniu przepisów Kodeksu Cywilnego, a podane w niej informacje są spisane według zapewnień właściciela nieruchomości i zaleca się ich osobiste sprawdzenie. Oferta wysłana z programu dla biur nieruchomości ASARI CRM (asaricrm.com)
799 000 PLN
5 74,00 m2 Zobacz ofertę
notatnik
DOBRA
799 000 PLN 120 m2
Nowoczesny bliźniak Dobra PROMOCJA!
DOM NA SPRZEDAŻ DOBRA,
Do sprzedania nowo powstająca inwestycja domu jednorodzinnego w zabudowie bliźniaczej. Dom powstaje na osiedlu domów jednorodzinnych w Dobrej przy ulicy Rycerskiej. bliskość lasu, możliwość odbywania długich spacerów i obcowania bezpośrednio z naturą to codzienna atrakcja opisywanego terenu. Nowocześnie zaprojektowana nieruchomość z pełnym piętrem bez skosów. Na powierzchnię 120 m składają się: parter w skład którego wchodzi: hol, pomieszczenie gospodarcze, łazienka razem z WC, oddzielna kuchnia oraz salon, piętro stanowią: trzy sypialnie, garderoba i łazienka razem z WC. Dom budowany z bloczków sylikatowych ocieplony styropianem grafitowym 15 cm, powierzchnia dachowa ocieplana pianą PUR. W całości domu ogrzewanie podłogowe zasilane piecem gazowym dwuobiegowym. Każdy lokal wyposażony w przydomową, bezzapachową oczyszczalnię ścieków biologicznie czynną. Do każdego lokalu przynależy działka wielkości 389m, dwa miejsca postojowe. Możliwość zbudowania wiaty jako dodatkowego miejsca na swoje wymarzone auto. Całość posesji ogrodzona. Planowany termin zakończenia prac budowlanych IV kwartał 2025 roku. Możliwość podpisania umowy z zachowaniem stałej niezmiennej ceny. Jest możliwość wybudowania dodatkowo wiaty garażowej w kwocie 25k. zł. Gotowy dom jesteśmy w stanie zaprezentować już zamieszkały z aranżacją wnętrza. Zainteresowane osoby zapraszam do kontaktu z maklerem prowadzącym. Oferta wysłana z programu dla biur nieruchomości ASARI CRM (asaricrm.com)
799 000 PLN
4 120,00 m2 Zobacz ofertę